查看完整案例

收藏

下载
乡村铺子位于村口,方案试图恢复中国传统乡村的“村口”空间,把村口一栋老房子改造成公共活动的空间场所,希望用一些传统的布局法和工法完成对村口传统的重建,重新塑造村口的公共性。
The Rural shop is located in the village entrance. The program tried to restore the traditional Chinese “Rural Entrace Space” by converting an old house into a public space, hoping to use some traditional arrangements and construction methods to reshape the publicity of the village.
▼ 村落鸟瞰,乡村铺子位于村口与城市道路相连的广场处,Birdview, The Rural shop is located in the village entrance connecting to the city road
在传统的乡村里,村口是村落和自然的分界点,有标志和分隔功能,有交通组织功能,有休闲集会功能。通常村口要有棵大树,还有个亭子,村中有个广场,村边有宗祠和家庙,才能说是完整的村子。有的村口道路穿过一个小房子,叫路亭,供村民和过客休息,这类建筑大多为村里宗族机构组织,由村民集资兴建或由个人捐造。有些地方村口是个广场,作为辨认道路、计算脚程的参照,还可以作为集市,在特定时间也可以供应茶、暑药或草鞋。
In the traditional villages, the entrance was the division of country and nature, which undertook functions of signs , separation, traffic organization, leisuring and gathering. Usually the rural entrance should have a big tree, a pavilion, a square and a temple, only in this way can be said to be a complete village. A small house passed through by rural roads was called Road Pavilion, set for the villagers and passers-by to have a rest. Most of these buildings were owned by village clan organizations, built by the villagers raised funds or donated by the individuals. In some places the village entrace was a square, not only served as the identification of roads, the calculation of the foot of the reference, but also served as a market at a specific time, supplying tea, summer medicine or straw sandals.
▼ 建筑沿主街立面,The main street facade
设计试图恢复“村口”的公共性,把村口空间重建作为乡村文化生活重建的一个部分。原村口建筑是一间一层的普通的三开间房屋,面宽11 米,进深7 米。设计按照宅基地原址重建这个房子,并在外侧结合村口景观广场和大树,加建一个6×4.8 米的公共性廊子供村民和过往游人休息交流。
The design attempted to restore the publicity of the rural entrance, and regarded it as a part of the reconstruction of rural cultural life. The original village building was an ordinary three-bay house, 11 meters wide, 7 meters deep. According to the orginal site, we built a 6 m x4.8 m public gallery for villagers and past visitors to rest and communicate in the outside combined with the village landscape plaza and trees.
▼ 乡村铺子与村口景观广场、水景和大树相结合,The Rural shop communicate in the outside combined with the village landscape plaza, water feature and trees
▼ 河边平台、广场与建筑,The waterside platform, plaza and the Rural shop
▼ 北侧看与相邻建筑关系,The shop and the original building next to it / 建筑与南侧凉亭,The pavilion south to the building
屋架采取了传统中国的木构做法,希望尽量使它的形式能回溯传统地方性格,体现江南本土的建造体系。设计参考了皖南和婺源乡村的一些公共建筑形式,如路亭、廊桥等,这些乡村建筑类型是过去江南乡村曾经普遍存在的,只不过在皖南和婺源这些地方,因交通不便等原因这些乡村建筑被保留了下来,基本可以把它们理解成江南乡村过去普遍的的样子。
We chose the traditional Chinese wood structure as roof frame, hoping to make the form back to the traditional local character, reflecting the construction of the local system. The design also refered to public buildings in the Wannan and Wuyuan villages, such as pavilions, bridges, etc. These rural construction types had been widespreaded in the past Jiangnan villages. Thanks to Traffic inconvenience and other reasons, , these rural buildings were retained in southern Anhui such as Wuyuan village.The basic form could be understood as the Jiangnan village in the past in general.
▼ 屋架采取了传统中国的木构做法,The traditional Chinese wood structure as roof frame
▼ 屋顶结构分析,The diagram of the roof structure
▼ 细部,Details
样式选择之后,进行了少量现代设计的改进,让结构更加合理。室外的廊子延伸到室内,室内外部分结构是一致的。如今乡村铺子已落实南京当地的经营者进驻, 平日里进行传统农产品的展示与售卖,周末时结合村口的景观广场会成为村民和游客买卖物品的乡村集市。
After style selection, modern design improvements were added to make the structure more reasonable. Outdoor corridors extended into the interior, indoor and outdoor structures were the same. Today local managers in Nanjing have participated in the village shop. In the weekdays traditional agricultural products will be sold and in display and in the weekends it will be a rural market in combination with the village’s entrance square for villagers and tourists buying and selling goods.
▼ 模型,Model
▼ 总平面图,Master Plan
▼平面图,Plan
▼ 南侧立面,South Elevation
▼ 西立面,West Elevation
▼ 剖面图,Section
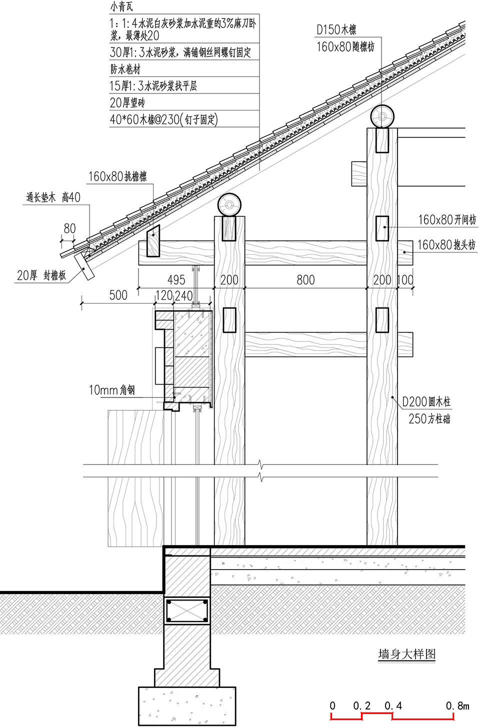
▼ 梁架大样,Detail design of the roof structure / 墙身大样,Detail design of the wall structure
▼ 砖砌大样,Brick Construction
设计单位:南京大学建筑规划设计研究院/周凌工作室
建筑师:周凌
地点:江苏省南京市栖霞区桦墅村周冲
设计时间:2014.9
竣工时间:2015.6
业主:东联(上海)创意设计发展有限公司
设计团队:仇高颖、殷奕、吴仕佳、全萍、吴超楠
基地面积:668㎡
建筑面积:150.68㎡
结构形式:砖木结构
摄影: 侯博文、周凌
A Rural Shop at Huashu Village, Nanjing
Project information:
Design Studio: Architects Institute of Architecture Design & Planning CO. Ltd, Nanjing University /Atelier Zhouling
Chief Designer:ZHOU Ling
Location: Zhouchong, Huashu Village, Qixia District, Nanjing, Jiangsu Province
Design team: QIU Gaoying, YIN Yi, WU Shijia, QUAN Ping, WU Chaonan
Project Year:09/2014– 06/2015
Site Area: 668 square meters
Area: 150.68 square meters
Structure: Brick and Wood
Photo: Hou Bowen
客服
消息
收藏
下载
最近
































