查看完整案例

收藏

下载
新青年公社是一座混合型青年居住社区,位于万科松花湖度假区的边缘,与自然村落接壤。建筑可容纳800人,上层居住着万科员工,中层租赁给镇上个体经营者,首层供学生等营地活动使用,并向周边村民开放。该项目已获得世界建筑WA居住贡献奖的佳作奖并入围设计实验奖和社会公平奖。
New Youth Commune, a mixed youth community on the edge of Vanke Songhua Lake Resort bordering natural villages, contains 800 people with the upper space for Vanke staff, the middle rented to self-employed townspeople and the ground facilitating camping students and open to surrounding villagers.
▼北侧山景,mountain view from the north side
▼视频,Video
基于对青年”蚁族”群居问题的梳理,与对胡同、筒子楼、城中村等中国独有的“混居”现象的研究,建筑师在了解青年社群生命力的内在机制后,希望重构一种空间范式,以实现群居模式中人与人关系的重构。
Addressing the ant tribe problem, having investigated the mixed dwelling phenomena peculiar to China from hutong, tube-shaped apartment to village-in-city and comprehended the inner dynamics of youth communities, the architect proposes a new spatial paradigm restructuring interpersonal relations in a gesellschaft.
▼从小路看篮球场,view from the pathway to the basketball court
▼从篮球场看东立面,view from basketball court to east facade
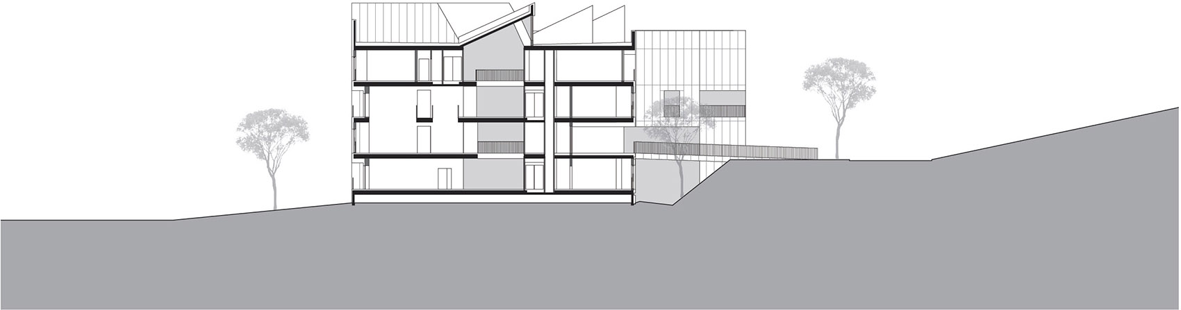
设计突破了一般集体居住的模型,将建筑体量折一为四,形成外表错落、内在连续的整体。廊桥、楼梯、阶梯座位介入通高中庭,塑造出一条如开放街巷般丰富多变的公共流线,串联起中庭及两侧的各级邻里共享空间,满足了当代年轻人衣食住行可能利用到的空间形式。如此,一个简单而灵活的框架中,新的空间理念与日常生活相融,人们出入于不同层级的个人-共享-集体区域,时有不期而遇,社群自然生长。
The ordinary residential pattern is mutated into a quartet, externally undulating and internally interlocked. Bridges, stairs and tiered seating around the full-height atriums compose an open-street-like public route connecting all communal spaces for varied daily utilities. Thus, the simple and flexible framework blends innovative spaces into daily lives, encouraging inter-level encounters among the private, shared and collective zones and finally the community growth.
▼主入口桥,main entrance bridge
▼主入口桥下下沉庭院,Sunken playground under the entrance bridge
▼南立面局部,South facade partial
项目有效回应了当代现实的混杂性,提出一种社群共生的新范式:在个人平等自足的基础上,经由空间的多元共享,促发互助合作、与周边环境积极互动,进而生长出一种当代“新青年”的社群原型。
The project responds to the hybrid contemporaneity and proposes a new paradigm for community symbiosis: mutual cooperation and positive environmental interaction through inter-spatial sharing based on equality and self-sufficiency – a prototype community for contemporary ‘new youths’.
▼中庭内立面,interior facade in the atrium
▼中庭公共空间,public atrium space
▼入口处大台阶,the step seats near the entrance
▼邻里公共空间,neighborhood shared space
▼中庭内日常活动,daily activities in the atrium
此实践是一系列当代城市空间模式研究的实验性建筑之一,该系列另有“超胡同”和“重启宅”,旨在分析当代城市空间生产的自发演变,推导出在现今行之有效的新社会-文化-空间复合原型。
The practice continues [META:HUTONGS] and Reset Apartment, a series of experiments that analyses the spontaneous evolution of urban space production and elicits a valid composite social-cultural-spatial archetype.
▼共享居住模式演化,evolution of share-living typology
▼区位图,location
▼平面图,plan
▼剖面图,section
项目名称:新青年公社
地点:吉林,松花湖
时间:设计2014年12月;竣工2015年12月
业主:万科松花湖度假区
功能:混合居住社区
面积:10,000平米
进度:已建成
设计团队:王硕,张婧,曹世彪,兰添,吴亚萍,赵宇
照明咨询:韩晓伟
摄影:方淳,陈溯
Project Name: NEW YOUTH COMMUNE
LOCATION: Ji Lin, Songhua Lake
DATE: Design 2014/12; Complete 2015/12
CLIENT: Vanke Songhua Lake Resort
PROGRAM: Mixed Residential Community
AREA: 10,000 sqm
STATUS: Construction Complete
DESIGN TEAM: Wang Shuo, Zhang Jing, Cao Shibiao, Lan Tian, Wu Yaping, Zhao Yu
LIGHTING CONSULTANT: Han Xiaowei
PHOTOGRAPH: Chen Su, Fang Chun
客服
消息
收藏
下载
最近

























