查看完整案例

收藏

下载
缘起 ORIGINATION
项目位于贵州北部山区,隶属于桐梓县的中关村。不同于北京中关村,这里经济落后,地处偏远,距离最近的县城也有一小时车程的山路。
初到中关村,村里的孩子们引起了我们的注意,他们父母多在城里打工,留给爷爷奶奶来照顾吃住。由于经济条件和意识的局限,使得父母只关心孩子会不会“长大”,无力关心孩子怎样“成长”。而扶贫政策指导下的乡建,大多围绕产业、文化、就业等问题展开,建设大潮并没有直接惠及孩子们。
我们希望能为村里的孩子做点什么,能够让他们感受到温暖和亲切的事。我们决定从建设儿童乐园开始。
▼ 乙未园——因为这次乡建工作开始于乙未年,建筑师和村民一起想了这个名字。
YI WEI GARDEN. We thought of the special name with the villagers together since the project started in this year.
The case is located on the north of Guizhou’s mountainous regions and attached to Zhongguan County of Tongzi Province. Different from Beijing Zhongguancun, this place has the properties of backward economy, remotive location and an hour’s drive of mountain road to the nearest town.
The children in the village caught our attention when we first arrived there. Their parents mostly work in the city, leaving them to grandparents to be taken care of. Because of the economic conditions and limitations of consciousness, those parents only care about the children’s grow-up instead of how-to-grow. And poverty alleviation policy under the guidance of township construction always focus on the problems of industry, culture, employment and so on. Construction tide does not benefit the children directly.
We hoped to do something for those children in the village to let them feel warm and kind. So we decided to start with a playground.
方案设计 PROJECT DESIGN
方案的成形来自多方面的考虑,空间上满足乡村儿童活动的需求,材料和施工则注重低成本、低技术建设,更深远的意义则是我们对于儿童环境教育的考虑。
The design strategy came from many considerations, including meeting the needs of rural children’s activities, focusing on construction of low cost and technology. What’s more, we considered far more significance about environmental education for children here.
▼俯瞰,Birdview
材料的选择——乡村建设是“修旧起废”的智慧
MATERIAL CHOSING-RURAL CONSTRUCTION IS THE WISDOM OF RECYCLING
在乡村建设过程中,产生的尾料、废料,以及拆除卸的旧物,大量堆积于场地中。我们决定用这些来“拼凑”儿童乐园。
In the process of rural construction, a large number of leftover materials, wastes, and dismantled old things were accumulated in the field. We decided to use them to assemble the children’s playground.
▼轴测图。方案结合了原有地形,利用高差将场地划分为四级台地,放置环形栈道形成独立交通,并串联场地内的游乐设施。
AXONOMETRIC PROJECTION. The project was a combination of the original terrain, which taking the advantage of elevation difference to divide the place into 4 platform sites. The ring road was placed to link up the independent traffic system and the tandem amusement facilities.
“现代化”使得都市生活不得不嵌入巨大城市运行的节奏中,人尺度的动作早已失去了意义。正如这些零散的工程尾料,无法达到建设材料的标准规格,也很难再以“材料”的身份嵌入建设的流程当中。但是,在乡村,设计回归到人的尺度。“模数、标准“等要求显得无力。所有的设计和施工都可以“因材而异”。这正是乡村生活的智慧,可以缝缝补补,可以拼拼凑凑,一切发生皆是“因缘际会”。正因这样,才会有不同于城市,生动而丰富的乡村世界。
乡村儿童乐园,其空间和设施的设计有更大的自由。方案在设计中尽量容纳了更多的“废料”。材料的“杂乱”反而能够激发体验的丰富性。配合当地施工技术,更能给场地增添本土的特征。
Moderniz makes urban life be embedded into the high speed of huge city. Actions in human scale have already lost its meaning. These scattered engineering leftoverbits can’t achieve the standard of construction. However, design returns to human scale in the rual. Modulus and standard requirements appear to be weak here. All designs and constructions change owing to different materials. This is the wisdom of life in the countryside. it can be filleted and pieced together. Everything happens is karma. Because of this, country life is vivid and rich, which is different from the city.
A rural children’s playground has more freedom in the design of space and facilities. The project accommodated those wastes as more as possible. The messy materials motivated the richness of experience. Working in with local construction technology, the site could be given more local characteristics.
▼ 利用建设废料打造生动而丰富的乡村世界,沙坑和水泥管(摄影:丁沁)。
A vivid and rich country life constructed by “wastes”, The sandpit and cement pipes.
参与式营造——关系的产生是两段时间的缝合
PARTICIPATORY CONSTRUCTION-RELATIONSHIP IS THE SUTURE OF TWO PERIODS OF TIME
我们试图让村民参与到项目的建设当中,一是希望获得因某些“不确定性”而产生的有趣结果。二是希望参与建设的过程能让人与场地产生天然的联系。设计中留有大量的空白,为村民的参与提供了可能性。号召村民来参与建设并没有花费太多组织精力,仅仅是提供机会,便吸引了大量的小朋友和村民前来。我们准备了颜料和水泥,允许村民空白的地方写写画画,小朋友在水泥上印下植物的叶子,和自己的手掌、脚印,以及歪歪扭扭的字迹。
We tried to make the villagers participate in the construction of this project, aiming for some interesting results of the uncertainty. Also, we hoped the process can naturally connect the villagers with the site.
The design provided possibilities for the participation of villagers. It didn’t cost too much time in organizing the villagers to take part in the construction since opportunities could easily attract large numbers of children and villagers to come. We had prepared them with pigments and cement to draw at blank place.
Children printed plant leaves, palms, footprints and writings on the cement.
▼ 参与施工建设的是当地村民与儿童。
Villagers and kids participated in construction.
参与建设的结果充满惊喜。就像是没有哪个设计师可以在自己的项目中画出两个道教神符。
The result of participation was full of surprises. None of the designers could draw two Taoist in his project rune.
▼ 老支书是村里的文化人,他坐在地上一个多小时,在水泥管上画神符。他认真的神态,让我们愿意相信这古老的信仰会有神奇的力量。(共两个,分别寓意安神和保平安)
The old branch secretary was the literate one in the village. He sat on the floor for more than an hour to draw amulets on cement pipes. The serious expression on his face made us believe that this ancient beliefs truelly can have magical powers.
是人赋予场地温度,抑或是场地给人以记忆与牵挂。参与让不同生命的两段时间缝合在一起,这便是人与人,人与场地之间关系的产生。
People give sites warmth and sites give people memory and concern. Participations suture two periods of time of different lifes. This is the beginning of relationship between people and sites.
▼ 小朋友参与制作的水泥砖砌在了乐园的矮墙上。
The cement bricks made by children were built on the wall.
智慧的延续——教育是潜移默化的影响
THE CONTINUATION OF WISDOM-EDUCATION IS THE SUBTLE INFLUENCE
此次建设中,我们用旧物与废料来营造儿童乐园,将乡村生活中节约与循环利用的思想,在这个乐园中以可见的方式呈现出来。场地中“资源回收中心”的设计,正是对于此次尝试的总结。
During this construction, we used old and waste materials to build children’s playground and brought out a visible form to the thought of saving and recycling in rural life. The design of the resource recycling center in the site was exactly a try.
▼ 资源回收中心建成效果——外观,Final appearance
“资源回收中心”以红砖做为基础,方钢为骨架,表皮采用了工地常见的竹跳板。材料易得且施工简单。
建筑内可以收集玻璃、金属、纸张等常见材料。小朋友在穿过建筑时能看到关于“资源回收再利用”的完整介绍。可以系统的了解资源回收再利用的做法及其对乡村环境改善的意义。
Resources recycling center was made up with red bricks, steel skeletons, bamboo springboards which were usually seem on site. The materials were accessible and the construction was easy.
Glasses, metal, papers and other common materials were collected in this architecture. Children could read the detailed introduction of resources recycling when they were passing the building. They could get to know the recycling system and its significance in the improvement of rural environment.
▼ 资源回收中心建成效果——内部,Interior
卢梭说:最好的教育就是,学生看不到教育的发生,却实实在在的影响着他们的心灵。
这正是我们此次设计资源回收中心的企图,希望乡村中关于“节约”的智慧能成为一种习惯在下一代身上延续。
Jean Jacques Rousseau said that the best education is that students can’t see the happening of education, but it is really effect their spirit. This was exactly the intention we designed the recycling center. We hoped the wisdom of saving can become a habit continued on the next generation in the village.
▼ 资源回收中心建成效果——垃圾填埋断面展示,Trash landfill section
▼ 资源回收中心运营示意图。建筑分为内外两条流线,旧物投放池也向内外两侧开口。内侧可供参观和投放旧物的人群使用(红色虚线)。外侧则可以有车辆通过,运走旧物以便集中处理。
Recycling center operation mode. The architecture has two streams of traffic lines inside and outside. Waste pools also have openings on both sides. The inner side is for visiting and use (red dashed). The outer side allows vehicles to pass by and take away wastes for centralized disposal.
成果——“场地”到“场所”的转变
RESULT-THE TRANSFORM FROM A SITE TO A PLACE
开园的那天,安静的山村再次被扰动起来,几乎所有的小朋友都来到了这里。我们注意到一个时常被孤立的小朋友跟大家在一起玩秋千。一个眼神的交汇,他冲我们开心的笑了。在回去的路上,他从身后跑过来,递来一个“八月瓜”(当地山上的野果)。朋友说这是要感谢我们吧。细想来,或许是我们做的事让他感觉亲切而已。
On the morning of opening, the quiet village was disturbed again. Almost all the children came here. We noticed a once isolated child playing on the swings with others. On a look of intersection, he smiled at us. On the way we went back, he came running from behind and gave us an August melon (a kind of local wild fruit). Friends said he was saying thanks to us. Fine, maybe we did make him feel warm.
▼ 水管做的传声筒,
The mouthpiece made of water pipes
看到乐园里热闹的景象,想起前人在讨论“场所精神”时提到,人对场地产生“认同感”“归属感”等情感,“场地(site)”因此变成“场所(place)”。设计师并没有魔力能让一块场地直接转变为场所,项目的落成不是这个转变的结束,而是开始。
我们能做的只是提供一个让村民愿意接受的场地,愿意开始在这块场地上生活。我们是播种者和身体力行的示范者。
Seeing the lively scene on the playground, I thought of the previous mentioned when discussing place spirit. A Site becomes a place when people here begin to have the senses of identity and belonging.
Designers have no magic power to make a site directly transform into a place. The project completion is not the end, but the beginning. What we can do is to provide a site villagers willing to accept, willing to start life on. We are sowers and physically fuglemen.
▼ 这个年纪的年轻人平时在村里很少见到,乐园建成后常常看到他们坐在这里聊天、看人。The Young of this age seldom appeared. Now They were usually seen chatting here after the construction of children’s playground.
一棵树摇动另一棵树,一朵云推动另一朵云,一个灵魂唤醒另一个灵魂。生成自由,唤醒生命。这正是我们来到农村,住在农村的意义。
希望我们的工作,能给这里的村民带来一点点好的改变,希望我们的建设不辜负这块的土地。
One tree Shake another. One cloud drives another. One soul awakens another. Generate freedom and awaken life. This is why we came to the countryside and lived here.
We hope our work can bring a little bit of good change to the villagers here. We hope the construction can live up to expectations of this piece of land.
▼ 总平面图,Master Plan
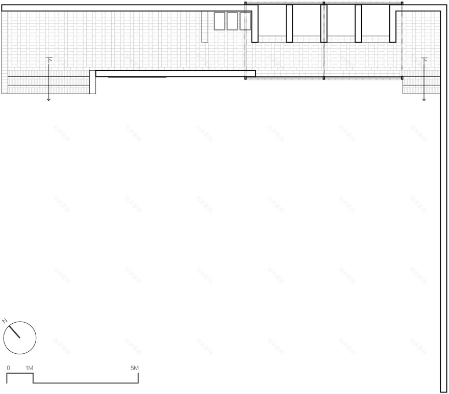
▼ 平面图,Plan
▼ 资源回收中心平面图Plan. 建筑主体占地45平米。为长15米,宽3米的线性空间。
An area of 45m2. It’s a linear space of 15m long and 3m wide /
资源回收中心分解图Exploded view. 建筑主体为红砖基础、方钢框架、竹跳板表皮三重结构。
The architecture is composed of red brick foundation, square steel skeleton and bamboo springboard.
▼ 资源回收中心剖面图,Section
项目信息:
设计师:傅英斌、闫璐、张浩然
Design Team: Fuyingbin、 Yanlu 、Zhanghaoran
建造时间:2016.07-2016.08
Project Year:07/2016. -08/2016
项目地点:贵州省 桐梓县 中关村
Location: Zhongguancun Tongzi county Guizhou province
材料:红砖、混凝土预制板、方钢、旧轮胎、废弃水泥管、废弃水管、竹跳板、木材等
Material:red brick、reinforced concrete prefab、square steel、used tire、used cement pipe、used water pipe、bamboo board、wood …
总面积:1200平米
Area: 1200 square meters
建筑面积:45平米
Areas of building: 45 square meters
客服
消息
收藏
下载
最近


































