查看完整案例

收藏

下载
建筑前身为一座建于十九世纪后半的被废弃的谷仓,它最早位于瑞士val d’entremont 内的praz-de-fort村庄入口处,在后来的改造中被拆迁到距原址几公里的saleinaz山谷中。
built in the second half of the 19th century, the barn was originally situated at the entrance to the village of praz-de-fort in the val d’entremont, and had been abandoned. As part of the conversion process, it was first dismantled and then rebuilt a few kilometres further into the valley, at saleinaz.
▼建筑外观,external view of the building ©Thomas Jantscher
原有建筑中开向阳台的门被保留并换成了玻璃,立面上新的开口数量被控制在最小,根据位置不同,或与周边的自然环境相协调,或依据建筑的外观设置,在提升空间舒适性的同时,保留了谷仓原本的特征。建筑师适当增加了原建筑外部用来晾晒谷物的走廊上的横向栏杆,使外墙更加同质并且更接近原先的外观,为使用者提供了更为亲密的空间氛围。
As the only existent openings were doors that gave access to the different balconies, these were retained and glazed. The number of additional new openings was minimised, to avoid detracting from the character of the barn while making it more comfortable. The new openings were positioned in such a way as to create a relationship either with the natural surroundings outside or with the original envelope, depending on the position. The external bands formed by the existent ruchines (wheat-drying galleries) have been made slightly more dense with a view to making the outer walls more homogeneous and keeping the barn closer to its original appearance, as well as offering an intimacy for the users of the internal spaces.
▼立面上少设新开口,尽量保留谷仓外观,minimiased new opennings on the facade to maintain the appearance of the barn ©Thomas Jantscher
建筑的地基用清水混凝土重新打造,让人想起曾经的石材基础。新的地基通过沿外墙内缘设置的玻璃带与谷仓连接,在将自然光引入地下空间的同时,削弱了地基的存在感,使建筑显得更为轻盈。
the base, which has been reconstructed in exposed concrete, recalls the stone used for the original base. This new base is connected to the barn by a band of glazing which is set back from the external wall so as to make it inconspicuous. This band of glazing enables natural light to reach the areas situated in the base.
▼清水混凝土地基,通过玻璃带与建筑本体相连,exposed concrete base which if connected to the barn by a glazing band ©Thomas Jantscher
▼自然光透过玻璃带射入地下室,the band of glazing brings natural light into the base area ©Thomas Jantscher
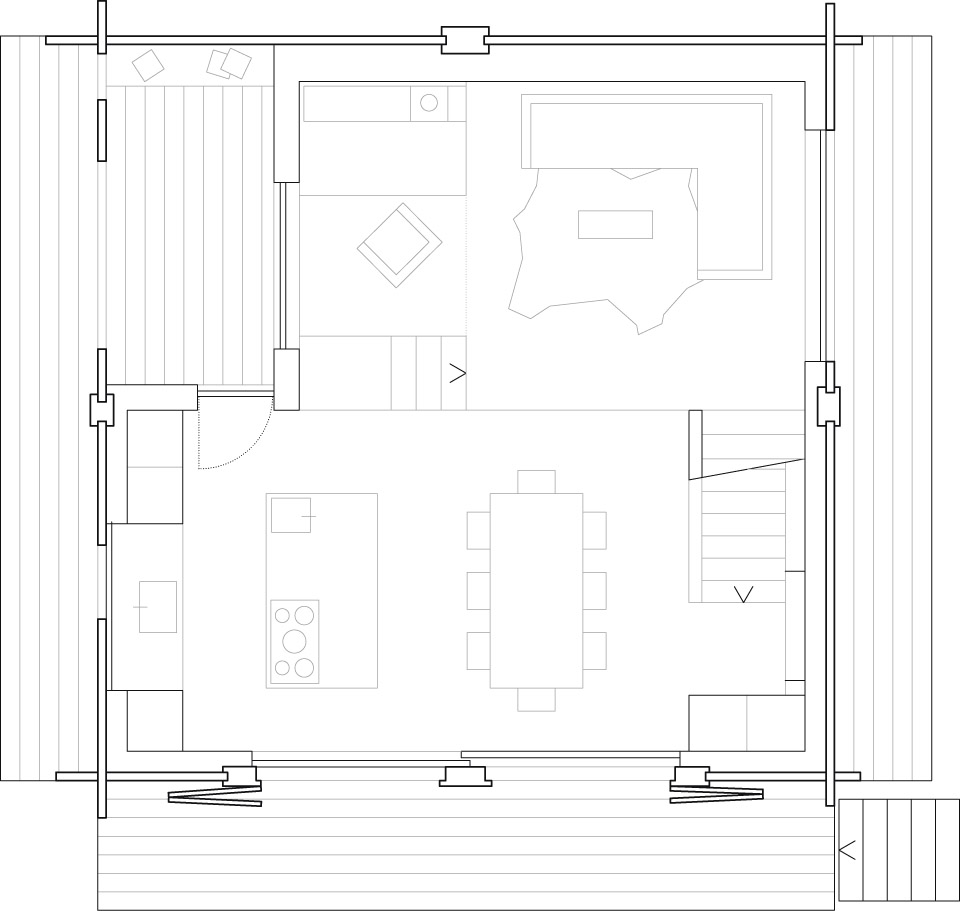
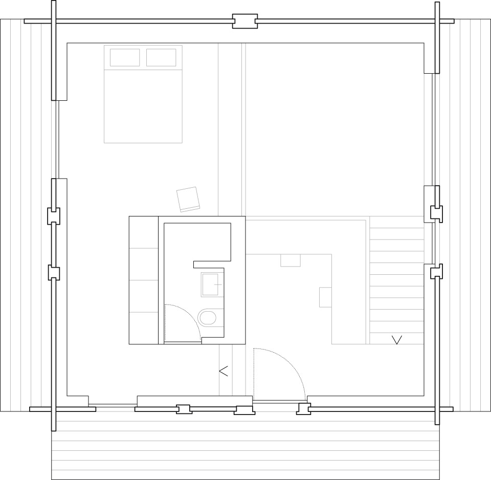
建筑师在保留了老谷仓外观的同时,对其内部进行了彻底的翻新,建造了全新的独立结构及内表皮,将新旧部分分隔开来,创造了丰富而又宽敞的室内空间,整个居住部分都是开放且连续的,仅通过高差划分不同的功能,加强了区域间的相互交流。最为私密的卧室和办公室被设置在了客厅和厨房的上方。室内墙面和地面均由橡木板构成,与之形成鲜明对比的地下空间则采用石材铺面,和地基的材质相呼应。
a new independent structure and an internal skin were constructed inside the envelope formed by the old barn. This separation from the external structure enabled a rich spatial mix to be created via open half-storeys communicating with one another. The dwelling was therefore treated as a single open and continuous space, organised via the differences in level. The bedroom and office, which are the most private spaces, were created in the upper part of the barn, above the living areas and the kitchen. The new internal skin of the barn consists of oak panels, with the spaces in the base providing a contrast through the use of materials that recall the external stone.
▼入口餐厅和厨房,dining area and kitchen at the entrance ©Thomas Jantscher
▼由高差划分出厨房和客厅,living area and kitchen are defined by differnt levels ©Thomas Jantscher
▼从客厅看向餐厅,view from the living area ©Thomas Jantscher
▼木制室内和石材铺面的地下卫生间形成鲜明对比,wooden interior contrast with the stone-decorated bathroom in the base ©Thomas Jantscher
▼夜景,night view ©Thomas Jantscher
▼一层平面图,first floor plan
▼二层平面图,second floor plan
▼地下层平面图,basement plan
▼剖面图,sections
Client: private
Programme: bedrooms, wc, bathrooms, kitchen, living room, terrace, larder, woodshed, plant rooms
Dates: project 2014, execution 2015-2016
Volume (sia 116 standard): 775 m3
Civil engineering: alpatec sa, martigny
Heating engineering: tecsa sa, conthey
Photographer: Thomas Jantscher
客服
消息
收藏
下载
最近





















