查看完整案例

收藏

下载
清控人居科技示范楼是在贵安新区政府支持下,清控人居建设集团与英国BRE机构合作的示范项目,目标为建成符合BREEAM标准的近零能耗示范实验建筑。建筑位于贵安新区生态文明创新园内西南角,整体坐西向东,与园区东北侧的优美的海绵城市生态景观延绵相接。整体建筑高度14m,总用地面积1826㎡,建筑面积701㎡,容积率0.38,建筑密度22%。建筑集展陈和游客接待中心一体,故在功能定位上,将地上两层划分为三大部分:大空间展陈区,对外接待会议区,以及内部办公区,而地下一层则作为设备机房以及储藏库房使用。本项目采用多系统并行建造方式,建筑主体由木建筑系统、轻钢箱体系统、设备系统、外表皮系统这四部分构成。
THE-Studio (Tsinghua Eco Studio) is the first demonstrating and experimental Nearly Zero Energy Building of the Gui’an Innovation Park in southwest China, which locates in the park’s entrance and connects with the constant ecological sponge city landscape, providing an extremely fascinating scenery for both users and visitors. Moreover, its two floors above ground can serve as large-space exhibition, VIP reception & conference and daily office, while one single underground floor can act as equipment and storage area.
▼建筑与园区东北侧的海绵城市生态景观,building and the ecological sponge city landscape
▼面向环境的整体设计,integrated design
示范楼不仅是一个整合可持续设计策略以及生态技术的示范实践项目,更是一个立足于中国西南温和地区的从建筑学角度出发的可持续建筑实验平台,以便持续检验各项设计方法与技术措施在当地气候、文化甚至经济条件下的可行性。
基于示范楼项目的特殊定位,团队在早期设计阶段就明确以被动式设计、可再生能源以及装配式建造技术为主要内容的建筑多系统整合的设计策略,以实现对本土生态环境系统破坏的最小化,与对室内舒适度以及能源利用效率的最大化。
THE-Studio is both a practical demonstration case which deeply integrates sustainable design strategies with ecological technologies, and an experimental platform for sustainable architecture based on the Moderate Zone in southwest China, aiming to examine whether the detailed design methods and building technologies can truly suit to the local conditions of climate, culture and even economy.
Oriented to the specific project positioning, the design team has developed the multi-system integrated design strategy from the very early design phase to minimize the negative impacts to local ecological system while maximizing the indoor comfort and energy efficiency.
▼建筑外观,external view
建筑的多系统整合 / Multi-system integration
示范楼的建筑多系统整合策略的应用体现于三个层面:多系统并行建造、乡土文化与可持续技术的整合、以及应用BIM整合平台。
The multi-system integration includes three levels: the paralleled construction systems, the integration of vernacular culture with sustainable technology and the BIM platform.
▼建筑沿街视角,view from the street
整体建筑由木建筑系统、轻钢箱体系统、设备系统、外表皮系统这四部分并行建造建造而成,以减少对场地的负面影响。其中,木建筑系统主要用于中央大空间的通高展示空间,轻钢箱体系统则作为南北的功能用房,其构件与节点均在工厂中完成预制并实现现场快速吊装,有效地节约整体建造时间与能源耗损。建筑的可持续设备系统(地道风管道系统、生物质锅炉系统、光伏光热能源系统、雨水收集系统以及智能控制监测系统等)则整合嵌装于建筑的双层表皮空腔之中,不仅便于对外展示并提高室内空间的灵活性,更能为后续实验平台中设备系统的增补、操作与检修提供空间与便利。模块化的双层表皮系统则整合了当地藤编工艺与工业预制技术从而实现快速装配,不仅使建筑高度体现贵州当地的风土特色,更在一定程度上刺激并带动了当地的传统工艺经济的发展。
BIM技术作为整合平台,贯穿运用于建筑全生命周期中,实现设计、建造与运维各个阶段的协同统筹,配合后续持续的建筑性能测试与监测反馈于前期整合设计策略。
Four building systems are implemented in parallel to accelerate whole construction process thus reducing negative interference to the site. Timber frameworks are employed in the large-space exhibition hall, while the prefab light-steel modules are used to shape functional space at both sides. All these structural components and joints are produced off-site and swiftly assembled on site, leading to a significant saving of time and energy. Sustainable service systems (air through tunnel, biomass heating, PVT system, rainwater collecting, control and monitoring, etc.) are mostly plugged into the cavity of façades, which can save installation time, increase indoor flexibility and provide potential space for additional equipment in future experiments. The modular double-skin façade system is a unique integration of vernacular rattan-weaving craftsmanship with industrial prefabrication technology, highly expressing site-specific characteristics while promoting local traditional industry and economy. BIM is also adopted as integrating platform throughout building’s whole life span, especially for coordination of construction, operation and maintenance phases.
▼建筑拆解图,exploded diagram
被动设计方法 / Passive design methods
示范楼采用被动式设计方法以回应当地的气候因素,如自然通风、太阳辐射控制以及自然光利用等等并整合体现于建筑本体层面。
The passive design methods responding to local climatic factors of natural wind, solar radiation and daylight are further contrived by the design team.
▼建筑入口,entrance
▼疏密不同的藤编幕墙,the rattan-weaving double skin with different patterns
示范楼采用了南北朝向的双坡屋面形式,将挺拔通高的展示中庭置于中央,相对封闭的功能房间置于两翼,并在屋顶处再局部拔高并设置通长的采光通风天窗,不但能加强建筑内风压与热压通风效果,同时为展厅提供了良好的自然采光,活跃中庭气氛。彩色的光线透过木屋架投射到两侧的展墙上,随着季节和时间进行光影变换,将外部自然环境的变化引入室内空间。
建筑外表皮系统由首层的双层通风玻璃幕墙以及二层的藤编双层表皮组成,不仅构建了建筑鲜明独特的外观形象,更属于典型的气候应答式设计。双层通风玻璃幕墙可根据外部环境昼夜性或者季节性的变化,通过对表皮通风口与开启扇的不同操作而达到预期的通风与热工性能表现。藤编双层表皮设计对贵州当地季节性太阳辐射与高频风压在各向立面上的作用效果进行软件模拟,进而开发疏密不同四种藤编纹样并在立面加以重组,继而将环境性能、外观形象、结构稳定性与材料耐久性整合一体。
示范楼还采用了地道风系统作为被动式的空气调节系统,从而有效利用自然冷热源为建筑在夏冬两季进行制冷与供暖,降低建筑能耗。其垂直送风管道集成于外表皮系统的空腔中并分散到各主要房间,提高其使用者的舒适度。
此外示范楼还大量应用诸如木材、钢材与秸秆板等可再生材料,并鼓励采用当地特有的乡土材料与工艺,例如将传统藤编工艺用于表皮系统,将青石材料用于室内地面铺设以及将毛石砌筑工艺用于室外围墙等等,均可在建筑全生命周期中有效降低建筑的碳足迹,并创造一种独特的建筑本土表现力。
Firstly, the large-space central exhibition hall with extra-raised ventilating skylights can truly act as a venting chimney to promote both wind and thermal pressure ventilations while providing adequate and colorful light for the interior. Secondly, the double-skin façades consisting of double-glazed façade at the first floor and the rattan-weaving double skin at the second floor are typical climate responsive design. The double-glazed façade can adapt to the seasonal and daily changes of the outdoor environment, through different operative modes of vents and windows to reach the expected thermal and ventilation performance. Four module patterns for the rattan-weaving double skin are also developed and arranged according to local solar radiation and wind pressure on each façade through software simulation, aiming to comprehensively integrate environmental performance, structural stability and material durability together. Thirdly, the building also adopts the underground air through tunnel as the passive air-conditioning system, which can largely reduce the energy consumption particularly in summer and winter. Its vertical venting ducts are further integrated in the air cavity of double-skin façade and distributed into the major working places, providing fresh air while creating indoor comfort. Fourthly, the building highly encourages usage of renewable materials such as timber, steel and wheat-straw board and promote the employment of vernacular materials and craftsmanship such as traditional rattan-weaving, blue-stone floor pavage and rubble wall masonry, which can both decrease the carbon footprint during whole life span and create a unique architectural self-expression.
▼疏密不同四种藤编纹样,four module patterns for the rattan-weaving double skin
▼分布,distribution
因此,示范楼积极回应当地气候因子,注重将可持续技术与建筑功能、空间和形式整体考虑,避免示范技术的简单堆砌。对被动式策略的因地选择,依据可持续原理对本土材料工艺进行重新挖掘,对先进的技术发展的关注以及主动式技术的适宜性选择,实现建筑空间体验、形式与性能表现的积极结合。建筑落成后,设计团队还针对建筑环境性能进行持续的测试与跟踪,肯定并反馈于前期设计与建造策略,为中国西南地区温和气候条件下可持续建筑的发展提供重要的借鉴意义。
After the building was completed, a series of field measuring and monitoring for thermal, humid, ventilation and luminous environments are carried out and further analyzed. The outcomes verify that detailed design methods and building technologies of THE-Studio at the early design phases were both effective and appropriate during the construction and operation processes, which can be the references to the similar sustainable buildings in the Moderate Zone of southwest China.
▼室内空间,interior space
▼施工阶段,under construction
▼总平面图,site plan
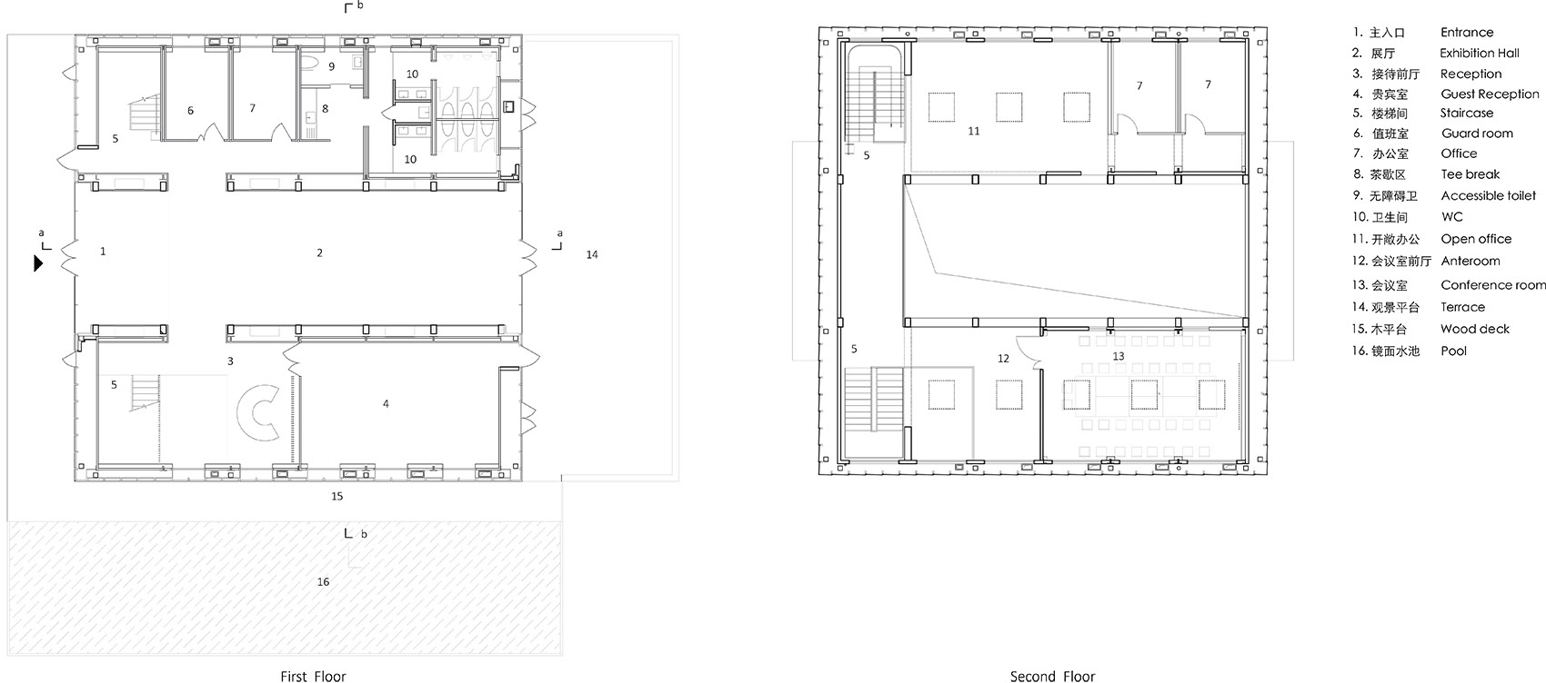
▼平面图,plan
▼立面,elevation
▼剖面,section
▼通风与采光,ventilation and natural lighting
▼双层呼吸幕墙气候应答设计,facade
▼墙身详图,detail design
▼藤编挂板构造,detail design of the rattan-weaving double skin
▼风帽示意图,roof design
项目名称:清控人居科技示范楼
项目地点:贵州省贵安新区
建成时间: 2015年6月
建筑面积: 701㎡
项目建筑师:宋晔皓、孙菁芬、陈晓娟、林正豪
建筑设计:素朴建筑工作室,北京清华同衡规划设计研究院有限公司
摄影师:夏至
客服
消息
收藏
下载
最近



















































