查看完整案例

收藏

下载
在如今这个失去道德约束现实得露骨的社会里,不知道还有没有相信童话故事的人?即便会有,也早已被这世界上喧嚣轰鸣的嘈杂声给淹没了吧!城市里满是惶恐不安的人们以及他们空洞游离的眼神,一张张空白焦虑的脸叠加着另一张张同样空白焦虑的脸;透过他们木然而防备的表情每个人内心却又似乎要从那苍白得粘稠的雾霾里抓取着什么,同时他们又渴求改变着什么;环绕你的四周充斥着歇斯底里的叫卖声和内心欲望的激励声;是的,人们渴望着,因为他们真的渴了。他们四处寻索,左顾右盼,用猎取猎物所需要的敏锐和迅急的的眼神来扫描着一切,搜索着一切,甚至不加思索的攫取着眼前的任何的可攫取之物。因为时间紧迫,因为生命短暂,因为要欢享今生;人们加快搜寻的速度,提高搜索的效率。是的,他们做到了,速度越来越快,效率越来越高,然而他们的内心却越来越恐慌。人们迷失在自己亲手建造的钢筋水泥丛林的阴影中了,尽管他们竭尽全力,耗尽所能,但这一颗用欲望永远也填不满的心却仍然无处安放。
In this world where ethics are degenerating and money worship has become the new religion, is there still anyone who believes in the fairytale? Even the answer is yes, such a person would have been drown out by the chaos of our time. The city is filled by anxious dwellers, with hollow eyes and blank faces. Their defensive and dull expressions reflect their inner cravings, as if they want to grasp something from the pale and thick haze shrouding the city while at the same time want to make a change. The hysterical touting by the merchants echo with the desires and cravings from within your heart. People are made thirsty by their desires. They look around, with the eyes of a hunter searching for his prey, swiftly and nimbly. Even worse, they grasp anything within their reach. Time is pressing and life is too short for one to gobble all the delights. They want to move faster to search for the things that can make them happy. And they do. They become more and more effective in enjoying their lives, only to find that the faster they become, the more anxiety they gain. They are lost in the shadow of the concrete jungle created by their own hands. Although they do all they can with all their energy, their hearts still find nowhere to settle down, and their desires, never can be fulfilled.
▼书店入口,Bookstore entrance
▼入口走廊,Entrance hallway
这是一种多么令人无奈、令人沮丧的境地啊!只是当你一个人安静下来,总会有一个如此微小的声音对着你内心说:“到我这里来,我这有你们需要的爱,在我里面你的灵魂才能得享安息和饱足!”
What a frustrating and helpless situation? When you calm down, a thin voice speaks to your heart: “Come to me, because I have the love that you’ve been craving all the time. In me your soul can find peace and fulfillment.”
▼休闲阅读区-聆听自己心灵的声音,Rest and Read Area – Listen to your heart
▼项目路演平台,Roadshow Platform
于是他们中间有些仍然相信童话故事的人真的安静下自己的心来聆听到了这个声音,他们收起曾经的自夸和膨胀,开始顺应着这微弱声音的召唤向着内心去寻找、向着一个与世界价值观相反的方向去寻找;尽管他们也同样在路上,但是他们执定一定能找到的信念去寻找,希望这个世界一点点的可以被改变。于是一个怀抱着理想主义的小书店应运而生,他们给它起名为新鲜空气书店。他们希望可以帮助人们甚至帮助他们自己在人类的文明里去寻找到那条出路,在艺术、在科学、在宗教里去寻找,在历史、在哲学、在文学抑或在日常生活的点点滴滴里去寻找;他们相信生命的答案就在书籍里,如同塞万提斯笔下挑战风车的唐吉歌德,他们用一种追求信仰的态度去开启这样的一家书店。就如沙漠中的一捧清泉,雾霾中的一缕新鲜空气般透出希望的光。
Some of those who still believe in fairytales do cool down their hearts to listen attentively to that thin voice. They pull back their swelling and complacent hearts towards the direction of the voice, which calls them to pursue the opposite way from that taken by the majority of people in this world. Without any clue on where the ending is, they hold the firm belief that they will achieve something at the end of the day, and that the world can be changed little by little. This is how a small bookstore with the belief in idealism is born. They call it Fresh Air Bookstore. They hope that this ideal place can help themselves find the way out in the piles of literature of the human civilization. They search the answer in art, in science, in religion, in history, in philosophy, in literature or in the moments of daily life. They believe that the answer is in the books. Like Don Quijote portrayed by Cervantes who challenged the windmill, they hold the same belief to open the bookstore, like a clear and crisp spring in the desert, like the ray of light piercing through the thick haze, signifying hope.
▼阅读区-如雾霾中的一缕新鲜空气般透出希望的光,Reading Area-like the ray of light piercing through the thick haze, signifying hope
▼简单、宁静,谦卑而低调的环境,simple, tranquil, humble and low-profile environment
风合睦晨这次执笔为这样的一个理想国设计一处可以安放内心的精神的栖息地,在书店的空间场景中,风合睦晨用他们朴素的、自然而然的设计构建起人与书的关系,简单、宁静,谦卑而低调。他们理解每一本书籍都有着它们不同的性格,读懂它们的性格,合理地安放它们的存在方式。他们知道书籍里的灵魂才是书店里的真正主人,只要你愿意放下日常的劳苦愁烦而步入这个场所,这,就是你的书房。风合睦晨用这样的一个空间来致敬那些正在寻找道路上的人们。他们让这里不只是书店还是人们思想自由撞击的地方,让每个人都可以成为可以被别人读懂的那一本书。读书会、论坛、演讲,这里是知识与智慧的交融之地。
Fenghemuchen designed a spiritual habitat where people’s hearts can settle down for this utopia. The designers use a simple and intuitive design to express the relationship between the readers and books through space scenes: simple, tranquil, humble and low-profile. With an understanding of each book’s unique character, they arrange each book in a way best suited for its existence. They know that the souls enveloped in the books are the real owner of this bookstore. As long as you are willing to put away your daily worries and step into this place, you will find that this is a bookstore of your own. Fenghemuchen pays tribute to those who are on the way through space design. They want people not only to interact with great thinkers of the past, but also to connect with each other, as if reading each other like a book. Readers club activities, forums and speeches will also be presented at this place where knowledge and wisdom converge.
▼阅读区看向茶室,Tearoom view through reading area
▼阅读区看向吧台,Bar view through reading area
▼茶室-安放内心的精神的栖息地,Tearoom-a spiritual habitat where people’s hearts can settle down for this utopia
其实,那个微小的声音从未远离我们,生命的答案也从未远离这个世界,它根植于我们饥渴的内心,流淌于书籍的海洋里,激荡在平凡的生活中。正是这些仍然相信童话故事并执着于寻求生命答案的人,他们热诚地希望“爱”能改变这个冷漠的世界,找回那本来属于我们却被我们遗失了的最宝贵的生命答案,好让它能重新流淌入我们疲惫、干涸的内心。因为,那个声音还说:“叩门就给你开门!”
We have not strayed far away from the thin voice, and the answer for life can never be isolated from the real world. It is deeply rooted in our heart’s craving, flowing in the sea of books, and expressing itself in the everyday life. These people still believe in fairytales and pursue the answer for life, hoping that with love they can change this indifferent world. They call for us to find out the most precious answer for life which has been lost for long, so that it can return to our tired and dry heart. Because the thin voice says: “Knock the door and I will open it for you!”
2016.11.5陈贻写于温哥华
Written by Yi Chen in Vancouver on November 5, 2016
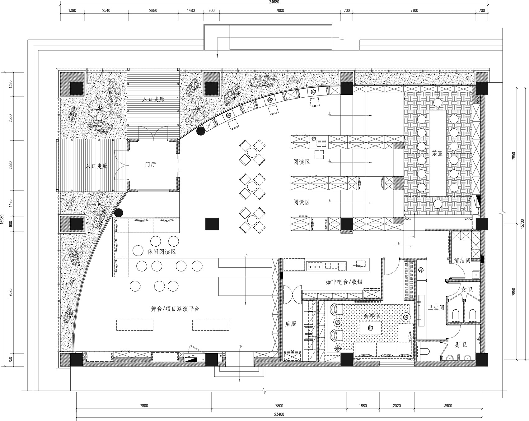
▼平面图,Floor Plan
▼天花平面图,Ceiling Plan
项目资料:
项目名称:新鲜空气书店
设计公司:风合睦晨空间设计
设计师:陈贻 张睦晨
项目地址:保定
建筑面积:350㎡
摄影师:孙翔宇
主要材料:地面:水泥地坪漆
立面:实木书架、水泥肌理漆
天花:实木格栅、深灰色涂料
客服
消息
收藏
下载
最近




























