查看完整案例

收藏

下载
项目位于伦敦Westbourne Grove,建筑师最开始的任务是将一栋老旧的维多利亚住宅建造成一座四口之家。然而,在设计中途,这对夫妻又有了两个孩子,原有的建筑立面,流线和开窗无法满足这个家庭对空间的需求。
The initial brief for a largely unrefurbished Victorian house on the South Side of London’s Westbourne Grove, centred around establishing a new family home for two adults and their young children. During the course of the project the family expanded from two children to four. Behind the original façade, the buildings circulation, rear form and fenestration limited the development of a new section able to generate enough space for a growing family.
▼建筑后院外观,external view of the building rear court
为了解决这个问题,建筑师在保留立面的情况下对原有的房间分配进行了彻底的改变,并且向下挖掘出了一个地下层以获得足够空间。
The resulting project involved the complete demolition of all original accommodation behind the front façade, and substantial excavation to facilitate the new proposal.
▼连接不同楼层的垂直交通空间,vertical circulation connecting different floors
建筑师用连通六层的垂直流线取代了过去的交叉楼梯,以此获得了更多的使用空间。地下层的餐厅和一层的厨房通过一条通高的走道和滑门联系在一起,穿过门可以直接到达后院。二层以上为建筑的居住空间,其中主卧室在二层,四个孩子的房间在楼上。
The original half landing and cross wall configuration was superseded by vertically stacked circulation over six levels, and more generously proportioned and planned spaces. The living and dining area, over two levels, are linked by a double height gallery and door, which opens directly onto a rear courtyard. Family accommodation extends beyond the new lower ground level up to the Westbourne Grove pavement. Level 1 is dedicated to the Master suite, with the upper levels accommodating the 4 children.
▼下挖出来的厨房和餐厅与建筑后院相连,excavated dining and kitchen space connected with the rear court
▼客厅可以看到建筑后院,living room from where the rear court could be seen
▼通高走廊和门联系餐厅和客厅,dining and living space connected by two-level high gallery and door
▼二楼主卧室,master bedroom in the first floor
▼顶楼,fourth floor
▼不同楼层的卫生间,washroom in different floors
起居室和卧室墙面均采用Florentine Pietra Serena石灰石,卧室地面主要为灰色橡木,室内材料配色简洁,一方面可以吸收反射光,另一方面可以为业主大量的艺术收藏品提供连续的展览面。
The carefully considered simple palette of materials have been chosen to absorb and reflect light and provide continuous surfaces for the clients substantial art collection. Florentine Pietra Serena limestone is used throughout the living spaces and bathrooms, and grey oiled Oak is the primary floor surface in all bedrooms.
▼楼梯与墙面的材料对比,materials of the stairs and the walls
▼建筑夜景,night view of the building
▼地下层平面图,lower ground floor level plan
▼一层平面图,ground floor level plan
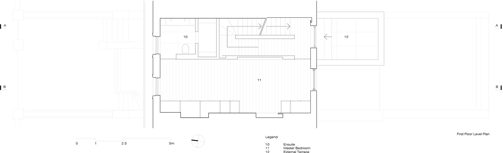
▼二层平面图,first floor level plan
▼三层平面图,second floor level plan
▼四层平面图,third floor level plan
▼立面图,elevation
▼A-A剖面图, A-A section
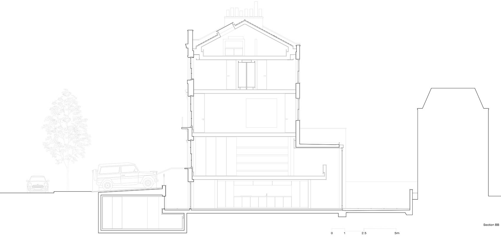
▼B-B剖面图,B-B section
Architectural Assistants: Sofia Ferreira, Malcolm Thorpe, Melissa Beasley, Eleni Makri and Ross Tredget.
Structural design: Jonathan Douglas, of Douglas Kenney Consulting Engineers
Building Services: John Treadgold, of Technical Solutions.
Party Wall Surveyor: Andrew Rysdale, of Robert Martell and Partners.
Photographs: Hélène Binet
客服
消息
收藏
下载
最近





























