查看完整案例

收藏

下载
这栋办公建筑位于德岛县伊藤区的住宅区内。有许多历史建筑遗存在这片区域内,新建筑星星点点的穿插在老建筑中,这栋办公楼也是其中之一。
This office building is located in a residential area in Itano district, Tokushima prefecture. There are new and old houses in a mixed, which are organized or have been there for a long time.
▼建筑的日与夜,External View Day and Night
由于办公楼处于住宅区内,建筑师在设计方案时为了不影响在居住在这里的人的正常生活,必须要将他们的作息时间考虑在内。另一方面,建筑也应该对外开放,使形形色色的人在这里进出产生新的交集。在平面上,建筑师思考如何在这样新老建筑交替的住宅区内将办公室做的相对开放。相比于用墙和屋顶划分建筑的内部和外部,建筑师设计了一种“遮挡”,将办公室对外的两侧立面遮盖起来,遮档下方的空间当做办公空间的一部分。这样建筑以遮档划分了空间,而不是传统的利用墙和屋顶隔离内部和外部,或是用窗户消解内外的边界。
In this location, the building is required the consideration for these houses which have the different time axis of life. On the other hand, it also should open to outside as a place in which various people are in and out to produce new things. In this plan, we thought about how to open the office to such as surrounding environment. As a method, instead of delineating the inside and the outside, we devised a way to cover both sides as an office space integrally. The space is made up of the “cover”, instead of walls and roof that separate inside and outside, or windows that obliterate the border between inside and outside.
▼分析图,Diagram
这个“遮挡”如雨伞一样将轻微的日光反射进室内,同时也阻挡了直射光的射入,风可以从遮挡顶部的通风口穿堂而过。以此,“遮挡” 使室内的气温和光照均匀的分布在整个空间内,人体也感到十分舒适。
This “cover” which opens like an umbrella takes in the soft reflected light inside while shielding the direct sunlight, and ventilates from the top by the wind blowing up along the “cover”. In this way, this cover makes the space homogeneous and comfortable technically.
▼ 如雨伞一样的遮挡,This “cover” which opens like an umbrella
▼通风口位于顶部,ventilates from the top by the wind blowing up along the “cover”
遮挡将室外的自然环境也变成了室内空间的一部分,办公室也因此变得丰富多样,更利于员工集中精力工作和在工作之余放松。
The “cover” has the internal space wear the external environment and the natural environment. As a result, it has achieved a rich office space which ensuring the concentration and relaxation.
▼遮挡将室外的自然环境也变成了室内空间的一部分,The “cover” has the internal space wear the external environment and the natural environment
▼建筑内部以木材为主要装饰,interior decorated with wood materials
▼ 办公空间,Office View
▼ 餐厅,Dining Room
▼ 建筑细节,Details
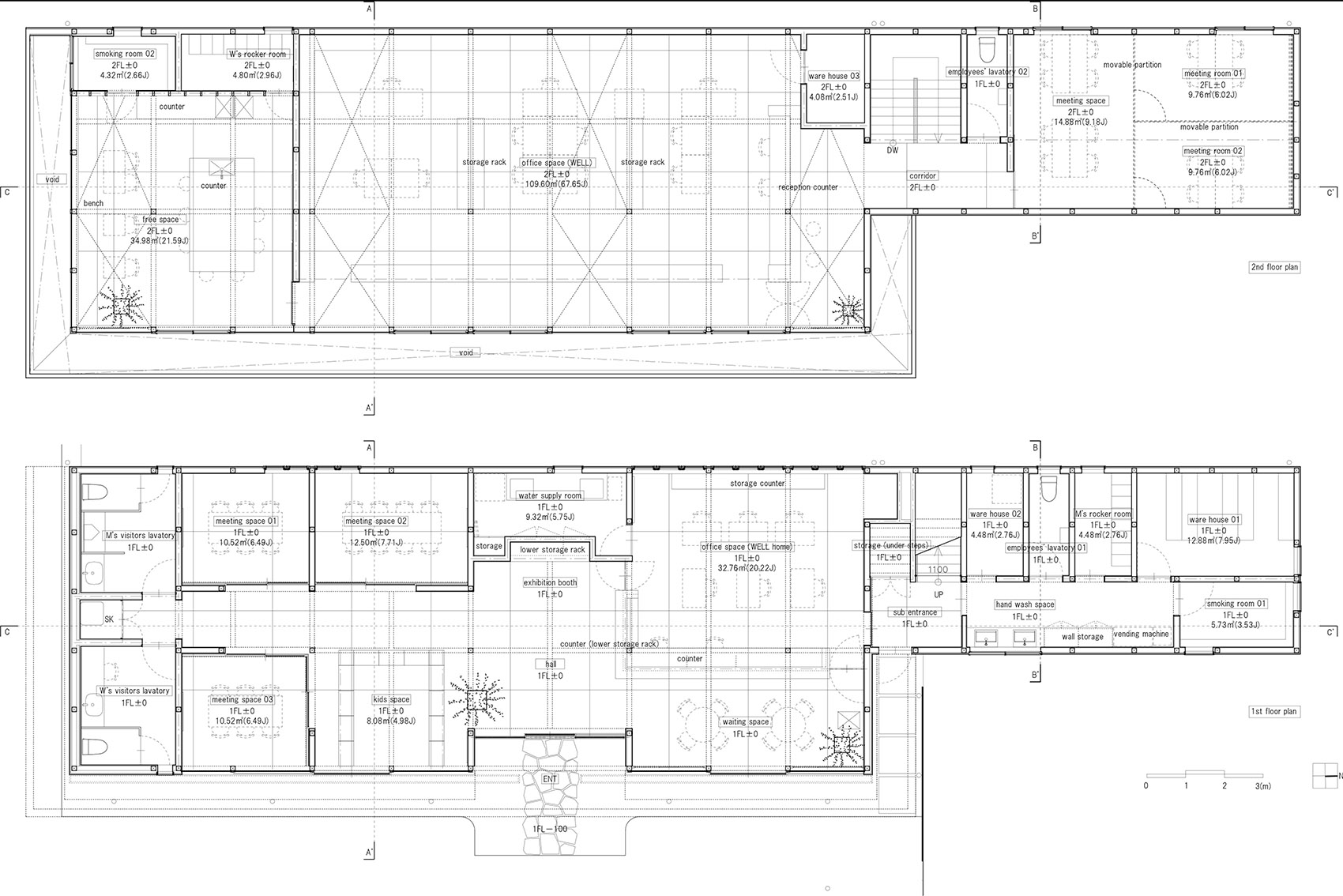
▼平面图,Floor Plan
▼剖面图,Section
Data
Produce:WELL Co,.Ltd
Designer:OHArchitecture Kosuke Okuda, Tatsuya Horii
Contractor: WELL Co,.Ltd
Photographer :Toshiyuki Yano
Construction type:new construction
Function: Office
Total area: 1F:206.18㎡ 2F:209.46㎡ TTL:415.64㎡
Construction phase:Dec.2015~Jul.2016
Address: Itano Destrict, Tokushima Prefecture, Japan
Web site:Office in Tokushima
客服
消息
收藏
下载
最近




























