查看完整案例

收藏

下载
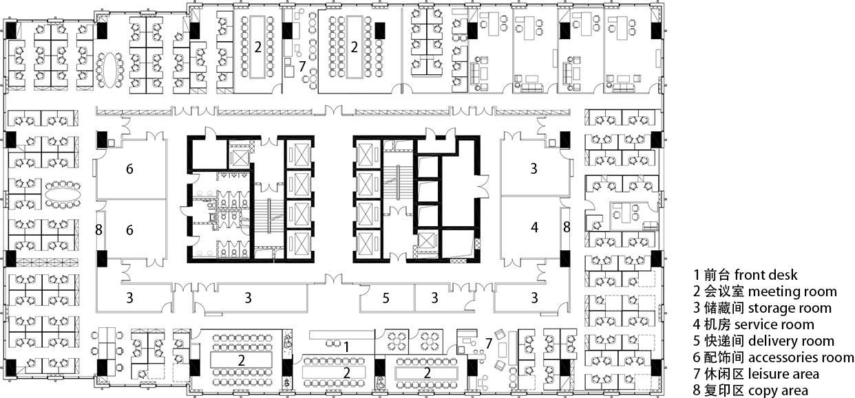
这是一个2000㎡的办公空间。按照功能,将所有的工位安排在靠近自然光的外侧,交通空间围绕核心筒布置,并将散布在工位外侧的会议和休闲空间串联起来。我们的设计重点也围绕这个交通空间展开。
设计以彩色玻璃隔断的颜色分出四个会议区域,红黄蓝绿。每个区域中的颜色又都有十几种微妙的变化,共计54种彩色玻璃的颜色,在环形走廊上完成色彩的循环。
This is an 2000㎡ interior design project for a magazine office. In consideration for the programmatic practicality, the open office area was arranged in the outer area, close to natural sunlight. This leaves the circulation in the centre, next to the building core. The circulation corridor, which connects the scattered periferal conference rooms and leisure spaces, is also the main focus of our design.
The design uses four specific tones of coloured glass panels; red, yellow, blue, and green, in order to distinguish the different meeting areas. Each coloured section then contains dozens of delicate colour differences. In total, the panels use 54 different colours. The coloured panels also form a complete loop around the main corridor.
▼ 从入口看前台,entrence view of front desk
▼ 前台,front desk
▼ 从会议室区看前台,from meeting area looking through front desk
▼ 轴测图,plan diagram
阳光从窗外照进来,通过彩色玻璃隔断来把彩色光影映照在室内的地面和墙面上。在地面上,我们用与彩色玻璃用一色系的地毯块来编制出光影的图案。共使用了37种颜色的地毯。以模拟和强化这种光感斑驳的效果,就像阳光的光谱通过彩色玻璃真的印在地面上一样。有一种超现实的戏剧感。
As the sunlight shines through the windows, it picks up the vast colours from the panels and splashes them upon the floors and walls. The design of the carpet also aims to enhance the colour pallet of the light through the use of a mosaic of 609mm x 609mm tiles, altogether containing 37 different colours in order to simulate the chromatic nature of the sunlight flowing through the glass panels. Together, they would instill the inhabitant with a sense of super-realism.
▼ 地毯排版,carpet
▼ 前台接待区,front desk reception area
▼ 接待区内部,inside reception area
▼ 小会议室,small meeting room
在墙面上,我们用白色瓷砖做办公空间内环形走道的墙面。利用材料的反射性能,彩色光晕在空间中能流动起来。像水彩在纸上洇开一样,形成氤氲弥漫的效果。同时,考虑到办公空间的进深较大,白色瓷砖能够反射外部光线,增加室内空间的光亮度。
As for the corridor wall, we used white tiles to maintain uniformity in the space. Because of the reflective parameters of the tile material, light transmitted through the coloured glass panel is mirrored upon hitting the white tiles, dispersing out like watercolour on paper. Furthermore, considering of the depth of the office, the white tiles can also reflect light, making the open office space brighter.
▼ 开敞办公区,open office area
▼ 从走廊看复印机角落,copy place in corridor
这就是——用自然光的变化来使室内空间的状态发生变化。经冬历夏,从早到晚,或阴或晴。由于光线的入射角的变化,以及色温的不同,强弱的对比,室内空间会发生相应的变化。其实每个室内空间都会因外界光线的变化而变化。我们只是把这一变化强化及戏剧化而已。
In the design, we employed natural light to affect the interior space. Through the ever changing angle and direction of the sunlight, the color and light intensity also changes. The result is an interior space that transforms from winter to summer, night to day, and from cloudy to sunny days. Actually, every interior space changes according to the sunlight, but what we did was enhancing this transformation and making it more dramatic.
▼ 蓝色会议区,blue tone meeting area
▼ 平面图,plan
设计公司:北京意象空间公司
设计团队:胡凯新,李飞宇,贾天宁
地点:中国,北京
面积:2000㎡
项目年份:2016年7月
摄影师:马晓春
Architects:Imago Architecture design Consultant
team:Kaixin Hu, Feiyu Li, Tianning Jia
Location:Beijing,China
Area:2000㎡
Project Year:July, 2016
Photographs:Xiaochun Ma
客服
消息
收藏
下载
最近















