查看完整案例

收藏

下载
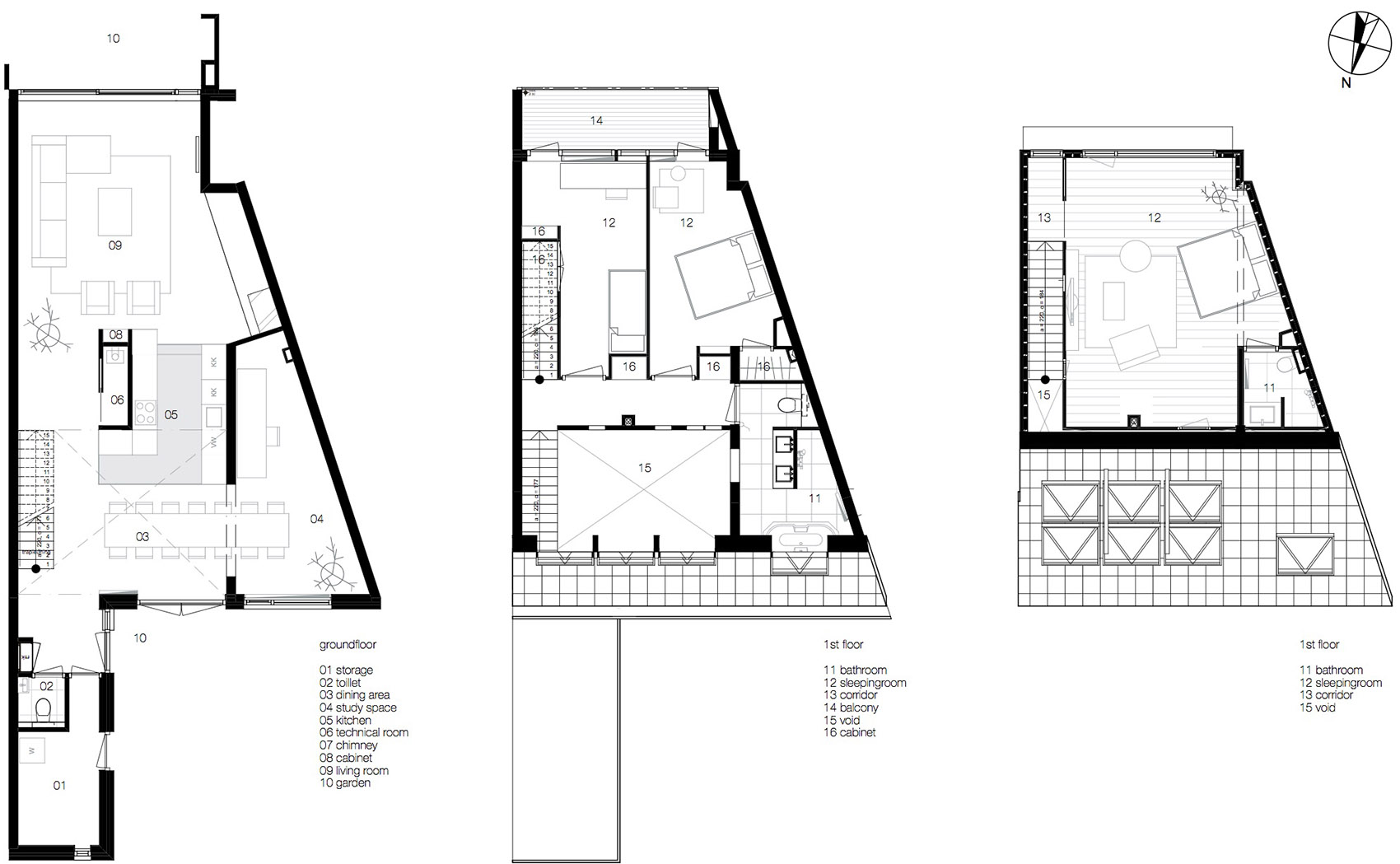
“房中房”项目位于Wassenaars Spinbaanquarters,设计任务是将一栋二十世纪八十年代的带露台的老旧建筑改造成一个宽敞,明亮并且现代化的家庭住宅。设计师巧妙利用屋子的层高,通过改造露台和屋顶通风窗使建筑增加了40平米的使用面积,让阳光可以充满整个建筑,营造出了一个开敞的生活空间。
‘House in a House’ is the sustainable renovation of a terraced house from the 1980s in Wassenaars Spinbaanquarters. Our design challenge was to transform the dated and cramped residence into a bright, modern space with character, yet providing enough space for a family. The result is an open living space that makes smart use of the height of the house. Thanks to the rooftop structure and attic windows, another 40 m2 is gained, enabling light to stream into the centre of the house.
居住空间围绕中庭布置,从形状各异的房间里可以看到不同的景色。长长的楼梯从一楼直通三楼,成为空间的一大亮点。宽敞的生活空间和新颖的功能设计使住户的生活质量得到了大幅提升。
The living quarters are located around the atrium, thereby creating rooms of different shapes with interesting vistas. The stairwell spans over two floors and is a focal point of the house. The modern design and the inventive use of space ensures an experience and level of comfort far surpassing the original living experience.
材料 Materials
室内选用可以令人感到温暖亲切的粗糙材料进行装饰。一楼原有的木地板被重新打磨,漆成了较为明快的颜色;与其相应,二楼地面铺设浅色软木地板,使空间看上去清爽明亮。客厅里的承重墙采用混凝土抹面,厨房区域的墙地面也为混凝土,专门定制的可活动厨房柜由橡木制成,上部安装不锈钢工作台面。屋顶并未装设吊顶,而是将梁和处理好的松木楼板裸露在外,与白色的墙面形成鲜明对比,使空间显得温馨和美丽。
Rugged materials with an unfinished but warm look were chosen for this renovation. The existing wooden floor at ground level was sanded down and oiled in a lighter color. For the kitchen we chose exposed concrete. The kitchen unit, mounted on wheels, was custom designed and made in oak with a stainless steel worksurface. The load bearing wall in the living room was finished with a concrete plaster and on the first floor a cork floor Is used. The roof structure is left ‘unfinished’, exposing beams and oiled Finnish pinewood floorboards. These warm natural materials stand in beautiful contrast to the white plastered walls.
▼ 室内选用可以令人感到温暖亲切的粗糙材料进行装饰, Rugged materials with an unfinished but warm look were chosen for this renovation
▼ 二楼地面铺设浅色软木地板,使空间看上去清爽明亮,the existing wooden floor at ground level was sanded down and oiled in a lighter color
可持续性 Sustainability
本次改造的主题是舒适和环保,因此项目设计的出发点为设计一个“综合性的可持续发展”系统。中庭为这个系统的中心,在提供独特的空间体验的同时,可以满足整个建筑的自然采光和通风需求,成为了这里的天然空调。通过开关窗,空气可以由中庭产生流动,调整每个房间的温度。
Comfort and the environment are the main themes of this renovation. The house is designed from an ‘integrated sustainability’ point of view. Passive solar energy, natural ventilation, heating and cooling are all managed in the atrium. By placing a ‘house within a house’, all rooms open up to the atrium. By closing or opening windows the rooms benefit from the warming and cooling qualities of the central space. This integrated system also creates a unique built environment.
改造项目有如下特点:
– 良好的采光和自然通风提升健康品质
– 通过设计和使用保温材料减少建筑能耗
– 建筑南侧使用遮光板以控制自然光照
– 中庭可以在需要的时候蓄热
– 采暖和热水由太阳能板供电
This renovation includes the following features:
– Healthy living environment with natural ventilation and optimised light
– Reduced energy demand due to the use of insulating materials and good design
– Control of natural light through the use of blinds on the South side of the house
– The Atrium, retaining heat when required
– Solar panels for space heating / water heating
▼ 卫生间,Toilet
▼ 平面图,Floor Plans
▼ 剖透图,Perspective Section
客服
消息
收藏
下载
最近





















