查看完整案例

收藏

下载
上海虹口SOHO主要功能为办公楼,其楼下拥有一个共享空间供办公用。建筑一侧面开放并与城市连接。建筑师温和的处理了建筑与城市的关系,具体表现在了对立面和公共空间的处理上。
The project is primarily an office building, which is distinctive in that it hosts a shared space downstairs for office-use. The building is open and linked with the city outside. The image of gentle connection is expressed in the façade and public space of the building.
▽建筑一侧面开放并与城市连接, The building is open and linked with the city outside.
▽ 建筑底楼共享空间供办公用,A shared space downstairs for office-use
在立面上,建筑师用18mm宽的铝条设计了褶皱型的分隔,在形状上类似女人裙子上的编织花边。褶皱在一天不同角度,强度,色彩的阳光照耀下,立面会渐变出不同的效果。
For the façade, we created “pleats”, made of aluminum mesh in (18mm width) like woven lace, which forms a soft dress for women. The pleats change their expressions gradually according to the angle, strength, and tone of sunshine.
▽ 18mm宽铝条褶皱,the “pleats”, made of aluminum mesh in (18mm width) like woven lace
建筑公共空间的内部装饰像是生物的皮肤,室内石头材质和铝条的穿拆搭配使用创造出了一种与传统“硬”建筑完全不同的氛围。
The public space is also like a creature’s skin, represented with stone and aluminum panels, which creates an atmosphere totally different from ordinary “hard” buildings.
▽以白色调为主的办公空间,White and Clean Office View
▽总平面,Site Plan
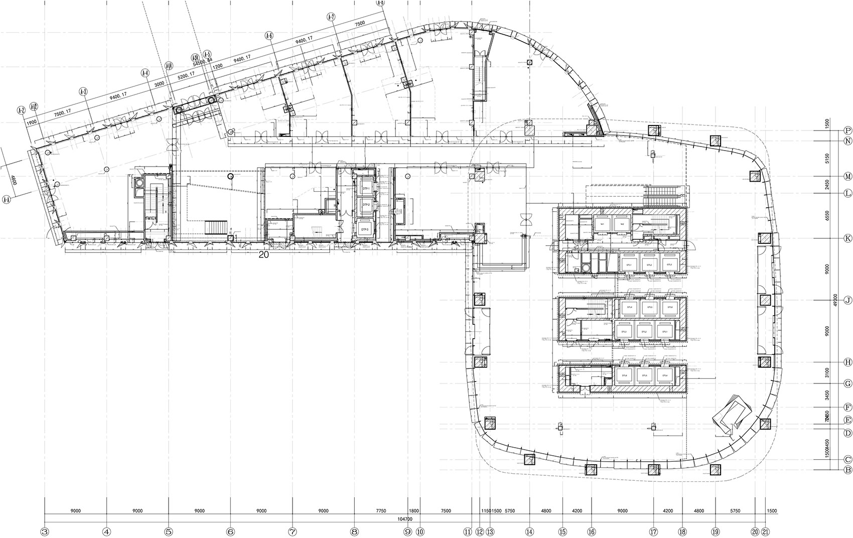
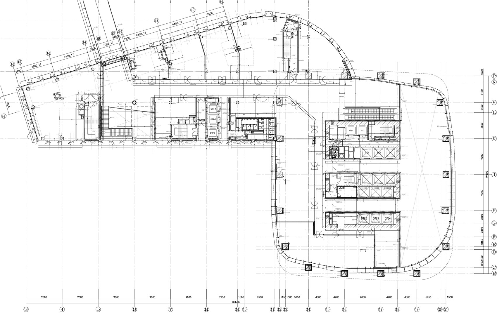
▽ 平面图,Floor Plans
▽ 立面图,Elevation
▽剖面图,Section
▽细节详图,Details
Location: Shanghai, China
Main Purpose: Office, Share office, Retail
Client: SOHO China Ltd.
Architecture:隈研吾建築都市設計事務所
Structure:江尻建築構造設計事務所
Lighting:岩井達弥光景デザイン
Design Periods:2011.6 - 2015.12
Floor area: 95,000 ㎡
Team principal:隈研吾、長谷川倫之、林孜俐、陳威誌、林梟、(※former staff田付 龍吉、百枝優、西内一絵)
Photo Credits: Eiichi Kano, Jerry Yin
客服
消息
收藏
下载
最近





























