查看完整案例

收藏

下载
项目位于城市的金融中心,四下高楼林立。设计师意图在穿着“正装”的混泥土与冷酷的玻璃幕墙建筑中创造一个自然、温暖、轻松、自由的办公空间。原空间有着5.4米的层高,这给设计师提供了较为自由的发挥空间。设计师通过仔细研究决定在18.6mx10.4mx5.4m室内空间里植入一栋有坡屋面的小木屋。这样原空间自然的分作了两层,上层为小办公区和艺术分享区,下层为大办公区。设计在三个方面着力,功能的复合性、平面的流动性、空间的延展性。
The project is located in the financial center. The designer intends to create a natural, warm, relaxed and uncindtrained office space among the concrete and glass-curtainwall building. The original space floor height is 5.4 meters, so the designer decides to implant a wooden cabin to divide the original space into two floors: the upperfloor would be mini office area and the art sharing area, the lower floor would be open office area. the designer work on the function complexity,the layout fluxility and the ductility of the space.
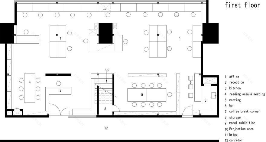
在平面的功能布局上意在让空间具有更多的复合性。一层设置主要为办公区,包含工作区、阅读区、会议区、接待区以及小厨房。大会议室与小厨房组合在一起,这样一来会议区可以很快变成小型宴会区,增加工作室的活跃感。阅读区与方案讨论区结合,方便了查阅资料也可以成为员工的休息和交流空间。接待区与楼梯的结合,楼梯既丰富了入口感受又直接表达了空间与交通关系。
The layout try to present more complexities of the space. The first floor is mostly office area and a small kitchen. The large meeting room is close to the small kitchen, so the meeting area can be quickly turned into a small dinning area, increasing the activity of the studio. The reading area is near the discussion area, providing convenient information access,also an area to relax and communicate. Stairs combining the reception area can enrich the entrance space and express the link between space and circulation.
▽ 一层主要办公区,the first floor is mostly office area
空间关系的处理是整个设计工作的重点。在平面的处理上,夹层并未铺满,而是在夹层楼板上挖出两个“天井”,一大一小,这样做的目的是改善一层的空间感受。较大“天井”上部分覆盖了三角形的木质坡屋面,通过多重三角形线性木梁的重复,辅之以灯光,形成具有一定仪式感的主体空间。屋顶下一层对应位置可以做一些关于设计、摄影或者绘画作品的展示。坡屋面位于夹层的部分利用坡度采用了退阶处理,这样既扩大了夹层的空间感受,又形成了“有台阶的屋顶”,从而具有了实际功能:坐和物品搁置,让夹层的这个部分具有了可以沙龙、游戏、和观影的功能。位于独立办公室的台阶则可以用来摆放书籍和展示收藏品。小“天井”下方是阅读区,与大“天井”由天桥相连接。天桥上可以以特殊的视角观看屋架,也可以鸟瞰办公区,同时桥上的人也成了楼下的风景,增强了空间的互动性。
The spatial relation is the focus of the design,the 2nd floor has 2 patios on it, to improve the space perception of 1st floor. The large patio is covered with wooden roof. By the multiple linear beams, supplemented with lighting, the main space get a certain sense of ceremony. The corresponding position under the roof can be use as an exhibition space. there’s aback-step processing to expand the space of the 2nd floor, form a “stepped-roof” to sit and to place objects, give the space the functions of salon, games, and movie watching. Above the reading area is the small “patio”,connecting to the large “patio” by a skywalk which providing special angles to watch the roof truss and the office area. Also the people on the skywalk become a scenery for the people below, enhancing interactivity of those spaces.
▽ 一大一小两个“天井”,2 patios
▽ 三角形的木质坡屋面,the wooden roof
▽ 沙龙、游戏、和观影的功能,a place for salon, games, and movie watching
▽ 位于独立办公室的台阶则可以用来摆放书籍和展示收藏品,a place to sit and to place objects
▽ 桥上桥下互为风景,增强了空间的互动性,enhancing interactivity of the spaces
串接上下空间的是一把预制混凝土楼梯,楼梯被拆解成数个镜像“Z”字的预制件,相互扣接,很好的解决了受力问题同时形成矩形方管空间,里面可以放置有趣的装饰品。
A precast concrete staircase connects the two floors formed by Z-shaped units fastening with each other. It is a good structure solution and contribute tube spaces can place decorations.
▽ 预制混凝土楼梯,a precast concrete staircase
色彩都是使用材料原色,主要由原木色,混凝土素色,白色涂料。指接木板的选择是因为想打破写字楼的沉闷引入自然的气息,同时加工简单且经济实惠。混凝土素色主要用在地板和楼梯,让一层和夹层有一个贯通的材质关系同时也是回应大楼结构本体的材质。白色涂料是因为建筑朝向北面,采光要弱于南向,白色可以增加室内的光感。这样的处理并配合指接木的家具,让木色的“台阶屋顶”更加凸显自然气息。
The natual colors of materials applys including wood, concrete and white painting. To break the oppression Finger-jointed wood board is appled. concrete is used on the ground and stairs, so 2 floors can have a relation in common material.The white painting is used to make the room brighter. Such processing in coordinating with wooden furniture, make wood-colored “stepped roof” more natural.
▽ 二层空间模型,model for the second floor
▽ 一层空间,first floor
▽ 二层空间,second floor
设计机构:合什建筑(HAD)
Design institution: HAD
项目地址:中国.成都
Site of the project: Chengdu, China.
主持建筑师:周勇刚
Architect: Zhou Yonggang
项目面积: 360平米
Area of the project: 360 square meters
项目年份:2014年
Year of the project: 2014
摄影师:存在摄影 / 无宇视觉
Photographer: Arch-exist Photography / Wuyu Visual
结构顾问: 陈伟
Structural consultant: Chen Wei
客服
消息
收藏
下载
最近




















