查看完整案例

收藏

下载
The fifth façade, i.e. the roof of this building is the bearer of all essential information about the building. It has been abstracted to its maximum. A roof without any details is like a way running into infinity. The means of showing the way was a fair-face concrete outside the building and plywood board inside of it. Vertical movement and its visual representation is a dilemma of most religious buildings. The connection between Heaven and Earth need not necessarily be a monologue; it can be an invitation for a journey, and for a gradual ascent up from the dirt of this world. In this case, the ascent to the light, which has been depicted by excellent Czech graphic artists with their minimalistic illustrations. The symbol at the end of the journey has its strong haptic light quality as a clear target.
▽ 交错上升的建筑屋顶,the ascending roof
▽ 建筑入口与透明的十字架,entrance and the glass cross above
▽ 建筑后侧立面,rear facade
▽ 朴素的混凝土饰面, concrete facade
建筑师的设计灵感来源于一个简单的折纸作品,他在设计中融入了这个东方元素,仿佛代表着东西方文化在此的交融于汇合。建筑将为这个社区带来丰富的宗教和社会生活。而二层则作为教会牧师极其家人的生活空间。值得一提的是,教会建造实际花销仅为原预算的一半。
A simple paper puzzle reminds me the eastern inspiration I got while working on this task. Eastern and western cultures meet here in a universal unity. The program of the building is to serve the religious and social life of the community, which is the investor. The preacher and his family occupy the second floor. The house was built for half the original budget.
▽ 内部空间,interior
▽ 教会空间,church space
▽ 不同的空间使用方式,diverse arrangement of the room
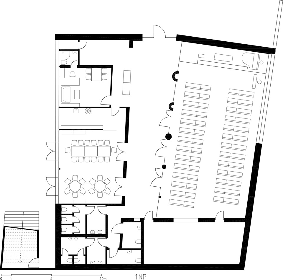
▽ 一层平面,first floor
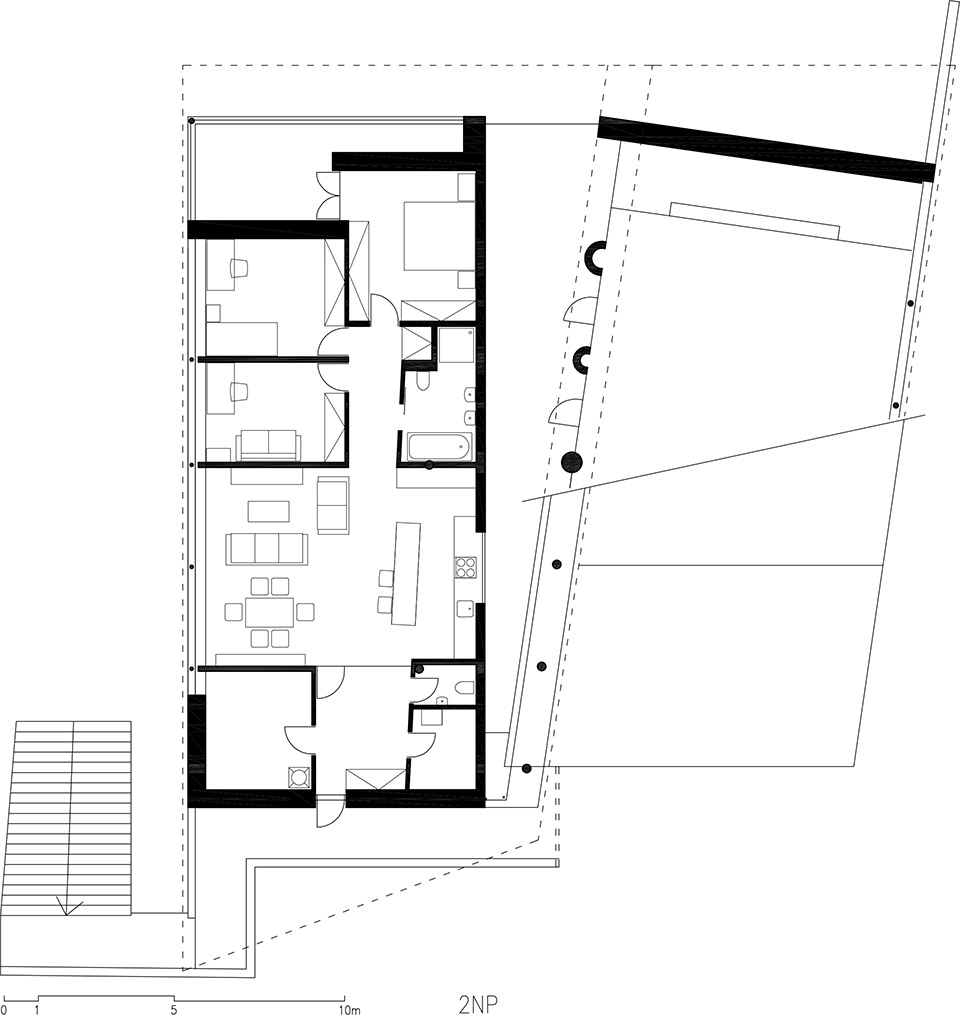
▽ 二层平面,second floor
Architect: Fránek architects
Location: Litomyšl, Czech Republic
Completion: 2009 – 2010
Photography and Concept: Jakub Skokan, Martin Tůma / Boysplaynice
客服
消息
收藏
下载
最近






















