查看完整案例

收藏

下载
项目所在地Tarragona坐落于地中海附近的山丘之上。地理学上的二元属性让这间位于Tarragona的工作室拥有了天独厚的条件,也使得它成为是城市中为数不多的同时拥有山景与海景的工作场所。场地一直以来都是作为仓储空间,但是建筑师希望可以把场地改造成一个宽敞明亮的工作场所。建筑师对建筑采取了三个步骤的改造。
Tarragona, strategically located on a hill, has a close relationship with the Mediterranean. This geographical duality makes it possible to find such privileged places such as this studio, one of the few workplaces of the city with a sea view. The aim of the project is to bring back the space used as storage for a long time and turn it into a wide and bright workplace.The intervention was structured in three actions.
▼素雅的室内,elegant interior
▼从粗粝的砖拱外看室内,views from the bricks arch
脱离 | Undress
这栋房子始建于1931年,属于Antoni Rosell Fortuny家族,由建筑师Francesc de Paula Morera Gatell设计。NUA Arquitectures重新整理了砖墙,让每一块尘封的砖能够自由呼吸,也避免由于过渡潮湿所引起的砖块风化。
We discovered the original structure of the building built in 1931, the house Antoni Rosell Fortuny, by the architect Francesc de Paula Morera Gatell. We rendered the brick wall in order to allow them to breathe and avoid deterioration caused by humidity.
▼砖墙和铺地,bricks wall and pavement
▼重新整理和粉刷的砖墙,undressed brick wall
打开 | Open
建筑师努力在视觉恢复空间和海洋的联系,借此室内和室外也建立起一种关联。因为拱结构的存在,建筑师可以把所有遮挡工作室,大厅和公共空间的墙都拆除,创造出一个视觉上一览无遗的自由空间。
▼窗台,windowsill
▼ 墙角,corner of wall
栖居 | Inhabit
建筑师还为工作室个性化地设计定制了一些松木家具,以适应这栋房子里新的使用需求。
We defined and personalized the studio using different pieces of furniture made out of pinewood which adapt to the space and the activities which are developed in it.
▼拱下的空间,arch space
▼楼梯转角,staircase corner
▼砖墙和松木书柜相互映衬,bricks wall and pinewood furniture
▼松木家具细节,pinewood furniture detail
通过清理旧的痕迹,打通原有闭塞空间以及创造栖息之所,建筑师重塑了这栋建筑,并把场所精神带了回来。一种视觉感受和物理空间上的联系被重新建立起来。
Undress, open and inhabit the space. Bring back the original spirit of the building encouraging new physical and visual connections.
▼工作室窗户,studio window
▼轴测图,axonometric drawing
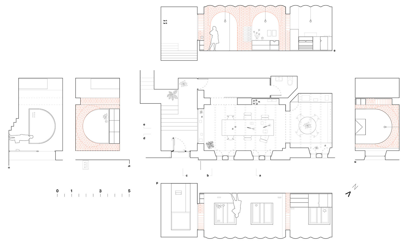
▼平面与立面展开图,plan and elevation
Architects: Maria Rius, Arnau Tiñena, Ferran Tiñena. (NUA Arquitectures)
Location: Tarragona, Catalonia. Spain.
General contractor: Baumester SL, Rels.
Budget: 10.520€
Surface: 32m²
Year: 2015.
Photography: NUA Arquitectures.
客服
消息
收藏
下载
最近




















