查看完整案例

收藏

下载
位于阿姆斯特丹市中心的一座百年学校建筑被改造成为10个宽敞的节能公寓,成为了Ons Dorp Amsterdam团队中10个年轻家庭的理想家园。每间公寓的空间布局模式和建造材料都根据居住者的需求而略有不同。建筑师将太阳能、地源热泵、隔热层、绿色屋顶等可持续的建筑技术综合运用到改造过程中,打造了一个几乎零排放的被动式节能建筑。
Collective Private Commission: a 100 year old school-building in the center of Amsterdam is transformed into 10 spacious and sustainable apartments directly for the group Ons Dorp Amsterdam (Our Village Amsterdam) of 10 young families. Each apartment has a different floor plan and different materials based on the individual wishes of the participants.
Sustainable technologies like solar technology, ground source heat pumps, insulation, green roofs etc. have been used to obtain a almost passive null-emission building.
在这间四口之家所居住的公寓内,原来的教师休息室被改造为卧室,而教室则被转化为居住空间。
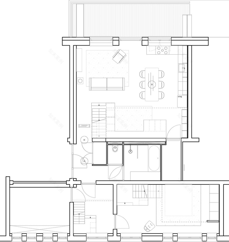
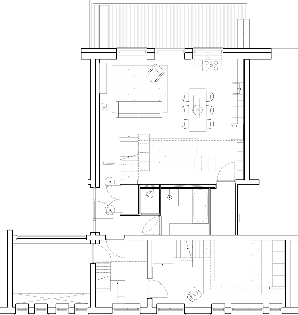
开阔高大的内部空间为复式公寓的建造提供了良好的基础,细分的空间让居住在同一屋檐下的家庭成员们得以拥有各自专属的一方天地。而客厅、餐厅、厨房、儿童活动空间和书房则被统一到了同一个开敞的公共活动空间之内。
This particular apartment was designed for a family of four. The teacher’s lounge got remodelled into the bedrooms and the classroom into the living space.
Due to its high ceilings, it was possible to create maisonettes, which lead for the whole family to be together, but still remain with a bit of privacy. It meant that in the living area we could combine all five elements; kitchen, living room, dining room, play area for the children and work space into one.
▽ 开敞的公共活动空间内集合了多种功能,different elements are combined into a living area
▽ 开放式的厨房和餐厅, open kitchen and the dinning area
▽ 二层的书房和琴房, study and the piano room upstairs
储藏空间对于有两个孩子的家庭而言十分重要。建筑师高效地利用楼梯的下方空间,打造了数个既能存放玩具,又能提供玩耍和小坐空间的地柜。
Storage is of essence when designing for a family with two young children, therefore as a result, furniture pieces were created under the stair cases that not only allowed for the children to put their toys, but also as a play and sitting area.
▽ 楼梯下的地柜既是游戏空间,又可收纳玩具,furniture pieces under the stair cases as play and sitting area and for putting toys
▽ 主卧室,master bedroom
▽ 儿童房, kid’s room
混凝土地板和钢制的楼梯元素带着学校建筑特有的简洁利落,而无处不在木制元素则让室内空间变得明亮而温暖。室内设计营造了充盈的家庭气氛,与这个居住在阿姆斯特丹市中心,充满着创造力和自主意识的年轻家庭十分相衬。
Concrete floors and steel staircases kept the characteristics of the school but when combined with plywood, it resulted in a bright and warm interior. This dwelling has a really nice vibe and energy, and suits the client very well; a young creative and conscious family living in the center of Amsterdam.
▽ 简洁利落的钢制楼梯, steel staircase
▽ 木制元素营造了温馨感,bright and warm interior created by the plywood
▽ 公寓入口大门造型复古, the entrance of the apartment
▽ 平面图,plan
Location | Elisabeth Wolffstraat, Amsterdam
Floor area | 100 m2
Design | 2014
Completion | 2015
Photography | © Standard Studio
Architects | Wouter Slot & Jurjen van Hulzen @ Standard Studio
客服
消息
收藏
下载
最近




















