查看完整案例

收藏

下载
Solar school in Vilanova i la Geltrú by Gallego, Adell, Tapias, Puig
AIXOPLUC受邀为西班牙小镇Vilanova i la Geltrú的Sant Jordi学校进行扩建设计。学校现状建筑建于上世纪70年代中期,本次的扩建部分包括六间课室,一间餐厅和一个图书馆。建筑师为学生们打造了一个充满魅力的室内外学习空间。长长的走道可以变成游戏的场地,而露台上覆盖着轻质顶篷的柱廊则连接着新、旧两座建筑,同时也为游戏场地带来一抹阴凉。柱廊的外侧搭起了网架,将足球场和游戏场分隔开来,而在不久的未来攀缘植物将爬满藤架,为校园增添绿意。
▽ 独特的学校建筑,engaging learning space ©José Hevia
▽ 从新建筑回望旧建筑,黄色屋顶的长廊连接着两个建筑,view from new building to the old one ©Álex Gallego, Jordi Adell, David Tapias and Gerard Puig
▽(左,left)近看廊架和红砖建筑,close view to the porches;(右,right)分隔游戏场和球场的网架,protection net for the football pitch ©Álex Gallego, Jordi Adell, David Tapias and Gerard Puig
加泰罗尼亚地区所有的学校设计都必须遵从当地教育部设定的规范。为了规避规范上的一些基础的错误条例,建筑师设计了一个“太阳能建筑”,由空心混凝土砌块砌成的墙体无比通透,将室外柔和的光线和宜人的气候带入了室内。
There was a design scheme made by the Catalan Departament d’Ensenyament that had to be followed. As it had some basic design mistakes which we were not allowed to change, we had to come up with a ‘solar building’, with an outer porous skin that brought optimal light and climatic conditions to the inside.
▽ 空心混凝土砌块以不同的方式组合,带来丰富的变化,building with an outer porous skin ©José Hevia
由于学校现状部分为受当地法规保护的地标性建筑,业主建议新建部分使用与之相同的建筑材料,以维持整体建筑群风格的统一。然而这种材料在过去的四十年间已被淘汰,而鉴于国家经济尚未复苏,建筑材料严重短缺,建筑师只能利用现有的资源进行设计。
建筑师用单调的空心混凝土砌块,通过不同的组合方式,创造了露台、门廊、教室和种种私密的空间。阳光透过墙上的孔洞照射进来,学生们在室内也可以感知到外界天气微妙的变化。Sant Jordi学校新楼成为了加泰罗尼亚地区第一座可以直接利用太阳能缘的多孔结构建筑。用有限的资源和创造性的设计思维,建筑师打造了一座既节能环保,又美观实用的建筑。
As the existing school is a Protected Architectural Landmark, we were suggested by the clients to use the same kind of materials. They were produced forty years ago, they are not available anymore. So we just decided to use whichever available systems and materials at hand. For still in 2014, material stock was an issue after the country’s economic downfall.
A hard, bare CMU block façade, which creates these conditions by very simple variations, creating patios, porches, galleries and privacy veils. This climatic cushion not only negotiates with sun’s rays, but also with all kinds of atmospheric variations, so children can realise they all become good weather. The school becomes the first porous passive structure built in Catalonia. It is based not in energy conservation, but in wise intercourse.
▽ 新建筑的庭院和走廊,courtyard and corridor of the new building ©José Hevia
▽ 与外界相“相连”的室内空间,classroom connected to the external space ©José Hevia
▽ 空心混凝土砌块的不同组合方式,various setting of the CMU block ©José Hevia
▽ 施工阶段,建筑内部,construction phase,interior space ©Álex Gallego, Jordi Adell, David Tapias and Gerard Puig
▽ 施工阶段,墙体的铺设,construction phase,wall ©Álex Gallego, Jordi Adell, David Tapias and Gerard Puig
▽ 总平面图,site plan
▽ 新旧建筑平面,school plan
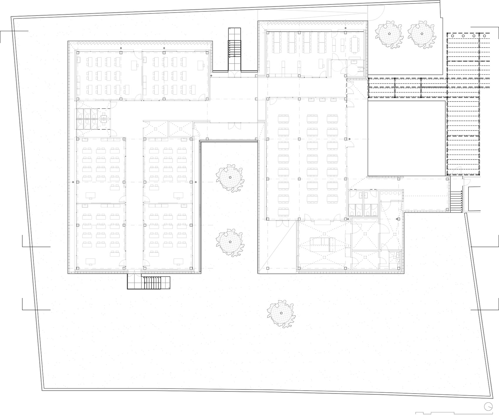
▽ 扩建部分建筑平面,new building plan
▽ 立面,elevations
▽ 剖面,section
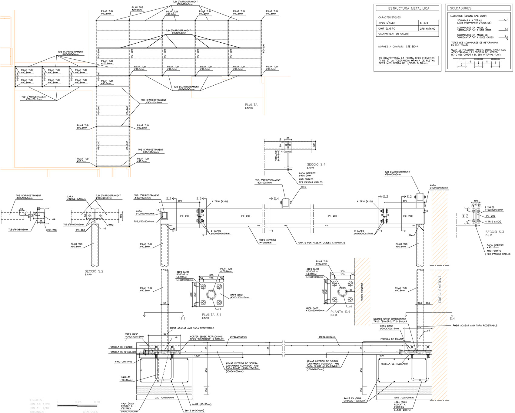
▽ 墙体结构细部,wall details
▽ 轻质长廊细部,details of the porches and pergola
▽ 手稿,sketch
Project name: Solar school in Vilanova i la Geltrú
Site: Calle de la Mare Isabel Ventosa 10, 08800 Vilanova i la Geltrú.
Authors: Álex Gallego, Jordi Adell, David Tapias, Gerard Puig.
Promotor: Department d’Ensenyament, Generalitat de Catalunya
Contractor: Tarraco Empresa Constructora SL
Arquitecto Técnico: Gerard Torres y Salvador Cortina.
Budget (Euros): 1.342.319,34 euros
Cost/m2 m2: 1030 euros/m2 new structure + 515 euros/m2 renovation.
Built area: 926 m2 new structure + 333 m2 renovation
客服
消息
收藏
下载
最近


























