查看完整案例

收藏

下载
在田园诗般的伦德比克拉特(Lundby Krat) ,莱萨尔展馆代表了现代建筑与周围自然的卓越结合,它延伸到 Aalborg 美丽的东南部。这个独特的住宅不仅是一个家,而且几乎是人造建筑和周围景观之间的共生关系。坐落在森林中的一片空地上,Lysal 亭是一个优雅而诱人的避难所,远离外面忙碌的世界。
Lysal Pavilion represents a sublime integration of modern architecture and the surrounding nature in the idyllic Lundby Krat, stretching beautifully southeast of Aalborg in Denmark. This unique residence is not just a home but almost a living symbiosis between human-made structures and the beauty found in the surrounding landscape. Located amid a clearing in the forest, Lysal Pavilion stands as an elegant and inviting sanctuary from the busy world outside.
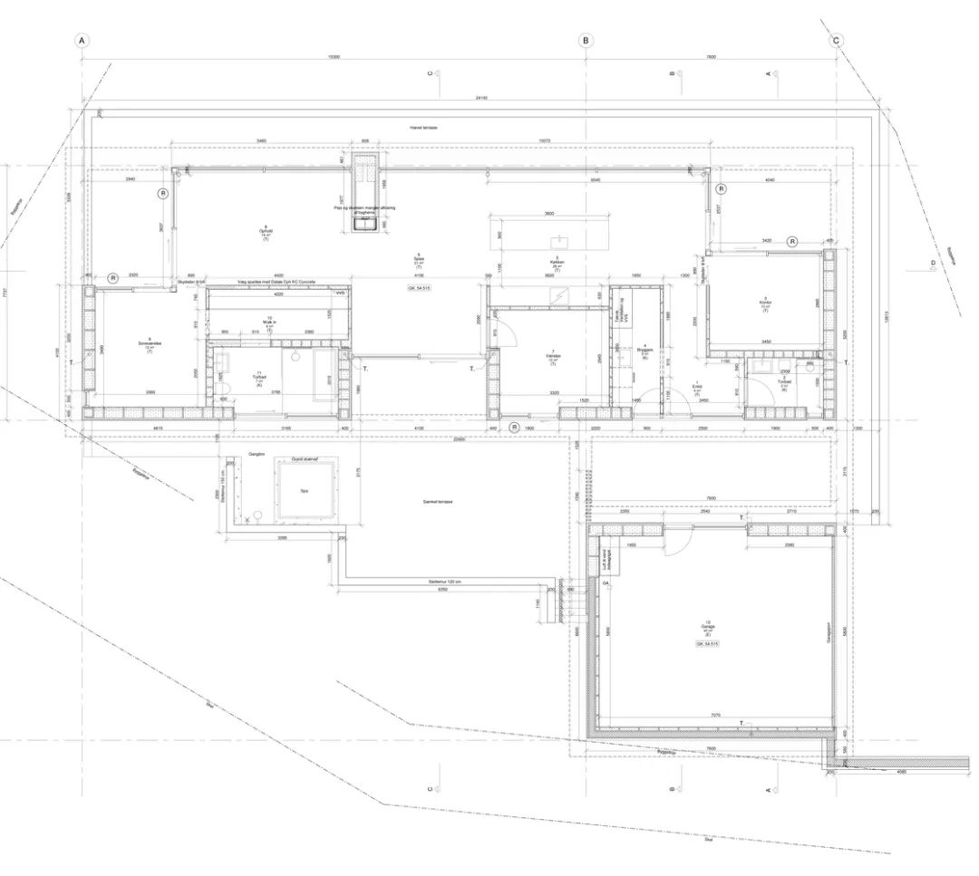
平面布置图
在这个基地的上面是两个盒子,漂亮地覆盖着木头,它们看起来漂浮在风景之上。这两个独立的单元通过一个优雅的金属水平带连接,不仅将它们捆绑在一起,而且为整个结构增添了一种特有的巧妙。从别墅内部,大窗户打开,可以看到森林变化的颜色和光线的全景。
Atop this base are two boxes, beautifully clad in wood, which appear to float above the landscape. These two separate units are connected by an elegant horizontal band in metal, which not only binds them together but also adds a characteristic finesse to the entire structure. From the inside of the villa, large windows open up to a panoramic view of the forest's changing colors and light.
客服
消息
收藏
下载
最近

















