查看完整案例

收藏

下载
基地概述 The site
水井坊遗址位于成都市水井坊历史文化街区内,基地周围为保留民居(后周边民居被逐步拆除,拟仿造翻建)。基地内有古井、门楼、民国时期木屋架酿酒生产车间、元代酒窖遗址等文物古迹。
Located in a historical neighborhood of Chengdu, Shuijingfang Museum exhibit the heritage site of wine-making in Yuan density.
▽ 鸟瞰,birdview (版权所有:家琨建筑设计事务所 摄影:存在建筑)
项目宗旨 Concept
水井坊遗址博物馆属于酒类主题博物馆,主要功能是展示水井坊的悠久历史和珍贵出土文物,保护与传承传统工业文明遗产。水井坊遗址博物馆既展示了成都平原传统酒文化,又提升了整个水井坊片区的社区文化氛围。
The museum demonstrate the traditional wine culture in Chengdu Plain while enhancing the quality of the whole neighborhood.
建筑与街区 architecture and the neighborhood
建筑整体以民居建筑尺度为基础,采用聚合的小体量,缝合相邻历史街区肌理。设计师以错动的手法柔化建筑边界,使之与保护区肌理平滑过渡,融为一体。屋顶以周边民居重叠往复的屋顶为原型,进行变形错动,以连续折线的坡屋顶,形成与民居肌理一致的屋顶景观,使建筑融入水井坊历史文化街区。
The museum adopts the size and style of the surrounding residential buildings, which makes it blend into the neighborhood perfectly.
▽ 巷道,street (版权所有:家琨建筑设计事务所 摄影:存在建筑)
▽ 连廊空间,corridor(版权所有:家琨建筑设计事务所 摄影:存在建筑)
新建与保护 new construction and the preservation
基地内部有文物建筑——民国时期的酿酒作坊厂房和明清时期晾堂挖掘遗址现场,其中的酒窖仍在使用中,是博物馆展示工业文明遗产的重要部分。这些重要的文物一起构成了博物馆的遗址展示区。一切以对文物遗址的保护与尊重为前提,进行的稳妥谦逊的加建设计,既不能简单仿造以假乱真,又不能突兀张扬喧宾夺主,应在继承传统气质的基础上有所创新,探讨新旧共处的关系。
新建博物馆以“衬托”为原则,新建部分与老作坊之间的保护带,形成与老民居片区相似纵横街巷,以“合抱”的姿态对遗址展示区进行保护。新建建筑以单一的材料弱化立面表现性,达到衬托文物本体(原有厂房及遗址)的目的。木构架老厂房内部仍以传统酿酒工艺进行生产,当代酿酒工艺被置于新建混凝土厂房内。新建厂房采用清水混凝土和单向梁框架结构,而不是原有厂房的传统木构架。新建筑的“狮子口”屋顶形式是老厂房采光口的提炼与组合,以形成与老厂房一致的通风、采光环境(窖菌的发酵依赖特定的空气、光照、土壤条件),光线幽暗,糟香氤氲,新老建筑共同延续了酿酒工艺的历史发展脉络,使水井坊遗址博物馆成为集保护、展示、生产、交流于一体的活着的文化遗产。
The newly built buildings encircle the antique cellar site to preserve and dignify it.
▽ 老作坊,old working area(版权所有:家琨建筑设计事务所 摄影:存在建筑)
▽ 新车间,new working area(版权所有:家琨建筑设计事务所 摄影:存在建筑)
建筑处理 architecture design
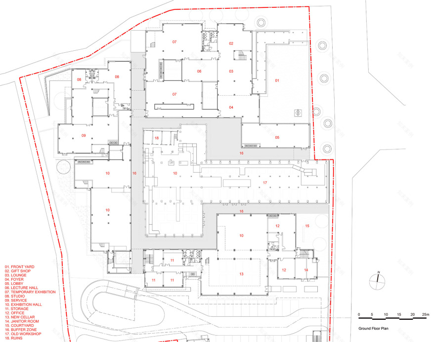
博物馆沿街设置矮墙,结合现状槐树,保持原有街道尺度,维持水井坊街区尺度和氛围。博物馆入口谦逊平和,其尺度接近民居。矮墙与入口围合出入口庭院。院内以旧砖铺地,形成喧闹城市一角安静之地。沿参观流线交替设置的天井院落与展厅,营造了气氛张弛有度的参观节奏。各具特色的天井也成为丰富蜀文化的载体。古井庭院、牌坊庭院,均设置有独立的院落天井,既强调了文物的重要性,也是转换室内外空间、丰富参观体验的重要手段。
The entrance of the museum fits into the neighborhood perfectly. Adopting the traditional architectural element of Sichuan, the atriums become a highlight in the overall design.
▽ 入口,the entrance(版权所有:家琨建筑设计事务所 摄影:存在建筑)
▽立面,facade(版权所有:家琨建筑设计事务所 摄影:存在建筑)
▽ 前院,frontyard(版权所有:家琨建筑设计事务所 摄影:存在建筑)
▽天井,atrium(版权所有:家琨建筑设计事务所 摄影:存在建筑)
流线与功能 circulation and function
参观流线按照两条线索设置:一是酿酒工艺的先后顺序,二是从传统到当代的时间顺序。参观栈道架空于酒窖区与遗址之上,栈道下生产可顺利进行,生产流线与参观流线互不交叉干扰。沿参观流线可纵览酒窖发酵、基酒储存、勾兑、包装等生产全过程。遗址展示区北侧为酒文化中心,以天井为主题进行空间组织,形式灵活多变,可以用作临时主题展览、学术会议交流活动等,并设计有单独的出入口,方便独立运作。
Visitors can follow the visiting circulation system and walk through the museum without interrupting the production process of the wine. Next to the permanent exhibition area there is a wine culture center, where allows temporary exhibition or academic conference happened.
▽ 走廊,hallway(版权所有:家琨建筑设计事务所 摄影:存在建筑)
建筑材料 materials
建筑采用当代材料“转译”传统材料,以再生砖对应青砖,重竹对应木板,瓦板岩对应小青瓦,是对传统建筑气质的继承和更新,以此构建出手法现代、韵味传统的建筑群落。
The walls are made of rebirth bricks and anti-corrosive bamboo who appear to like traditional construction material but actually modern.
▽ 再生转,rebirth bricks(版权所有:家琨建筑设计事务所 摄影:存在建筑)
▽ 线图,line drawing
▽模型,model
项目名称: 水井街酒坊遗址博物馆
地点: 中国四川省成都市锦江区水津街17-23号
类别: 公共建筑
业主: 四川水井坊股份有限公司
建筑面积: 8670 m²
基地面积: 12148 m²
设计时间: 08/2008 – 09/2011
施工时间: 09/2011 – 04/2013
结构: 钢筋混凝土框架
表现材料: 再生砖、防腐重竹
设计单位: 家琨建筑设计事务所
主设计师: 刘家琨
设计团队: 蔡克非、华益、杨东
摄影: 存在建筑
Project Name: Shuijingfang Museum
Location: 17-23 Shuijing St, Jinjiang District, Chengdu, Sichuan Province, China
Type: Public Buildings
Client: Sichuan Shuijingfang Company Ltd.
Building Area: 8670 m²
Site Area: 12148 m²
Design: 08/2008 – 09/2011
Construction: 09/2011 – 04/2013
Structure: Reinforced concrete frame
Material: Rebirth brick and antiseptic consolidated bamboo
Designer: Jiakun Architects
Principle Architect: LIU Jiakun
Team: CAI Kefei, HUA Yi, YANG Dong etc.
Photography: ARCHEXIST
客服
消息
收藏
下载
最近





















