查看完整案例

收藏

下载
闽南地区花岗岩资源丰富,千百年来,闽南人在石材的开采、加工、砌筑、雕饰等各个方面积累了丰富经验,建造了一大批以石为主材的工程杰作,如洛阳桥、安平桥、江东桥、清净寺、开元寺双塔、姑嫂塔、崇武古城等均为国家级文保单位。不仅如此,许多传统村落中巷道、围墙、庭院地铺、建筑墙身、柱梁、门窗、栏杆、踏步乃至屋面楼板等均采用石材,构成独特的地域性石建筑景观。
日晟园林古建工程有限公司是泉州惠安石雕、石材生产安装企业之一。日晟企业馆以产品展示、接待洽谈、研发办公为主要功能,并着力以活态方式体现地域建筑特色与企业文化特质。首先,根据所用部位之不同采用了自然面、蘑菇面、荔枝面、菠萝皮、水波纹、光面等多种石材质感,并由于其合理的美学作用而获得一种设计逻辑的精致性。
Traditional stone carving and contemporary architecture reunion —— Record Business Club of Ri Sheng ancient landscape Engineering Co. Ltd Design
As South Fujian is a granite resources. For thousands of years the Emigration in that area have accumulated rich experiences in stone mining, processing, masonry and carving. they have built countless works mainly with stone. Luoyang Bridge, Anping Bridge, Jiangdong bridge, pure temple, Kaiyuan Temple Twin Towers, Gusao tower and Chongwu city were the boutiques among those works, now presented as the national key cultural units. Even now, many traditional villagers are still using stone for building alleys, fences, garden ground floors, building walls, columns, beams, doors, windows, railings, stair treads, roofings and even stepping stone slab in; which forms a unique regional stone-architectural landscape.
Ri Sheng ancient landscape Engineering Co. Ltd. is one of stone carving, stone production and installation enterprises in Huian Quanzhou. Business Club of Ri Sheng mainly serves as a place for products displaying, clients and guests receiving and research and development office area which provides and further embody the regional architectural features by corporating vivid culture characteristics. Firstly, we try to use various kinds of stone textures, such as natural surface, mushroom surface, lychee surface, pineapple skin, water ripples, smooth texture and so on, to express the refinement of design logic derived from their reasonable aesthetic effects .
▽ 主入口立面(摄影:汪洪波),main entrance facade
▽ 建筑首层门廊(摄影:尹培如),porch on the first floor
▽ 入口门廊(摄影:尹培如), porch
其次,日晟企业馆根据所用部位之不同采用了透雕装饰花板、浮雕装饰线脚、砌筑效果、榫卯搭接等多种石材肌理,进一步展现了该企业石材设计、加工、雕刻、安装技艺的成熟,强化了企业识别系统。其三,室内空间或以白墙或以地域性传统红砖为界面,使石雕作品获得较好的展陈效果。
Secondly, we have used decorative flower engraved plates, relief ornament architrave, masonry effects, tenon-and-mortise lap and other stone texture, to further demonstrates the unique characteristic of the company:stone design, processing, sculpture, installation art matures, strengthens the corporate identity system(Table 2). Thirdly, to create a high standard exhibition quality, we made the interior space with simple white and regional traditional brick.
▽ 东侧看首层门廊(摄影:尹培如),porch from east to west
▽ 石材榫卯搭接大样(摄影:汪洪波),details of the wall
▽ 首层入口门厅(摄影:刘腾飞),entrance hall
▽ 地下展厅入口展墙,wall of the basement gallery
▽ 中庭西望(摄影:尹培如),atrium from west to east
▽ 中庭东望(摄影:刘腾飞)& 中庭西望(摄影:尹培如)atrium
▽ 从三层洞口看中庭(摄影:刘腾飞) view from the openning on the third floor to the atrium
▽ 从四层洞口看中庭(摄影:尹培如), view from the openning on the fourth floor to the atrium
▽ 折廊(摄影:尹培如)& 折廊内部(摄影:尹培如)space under the corridor & the corridor
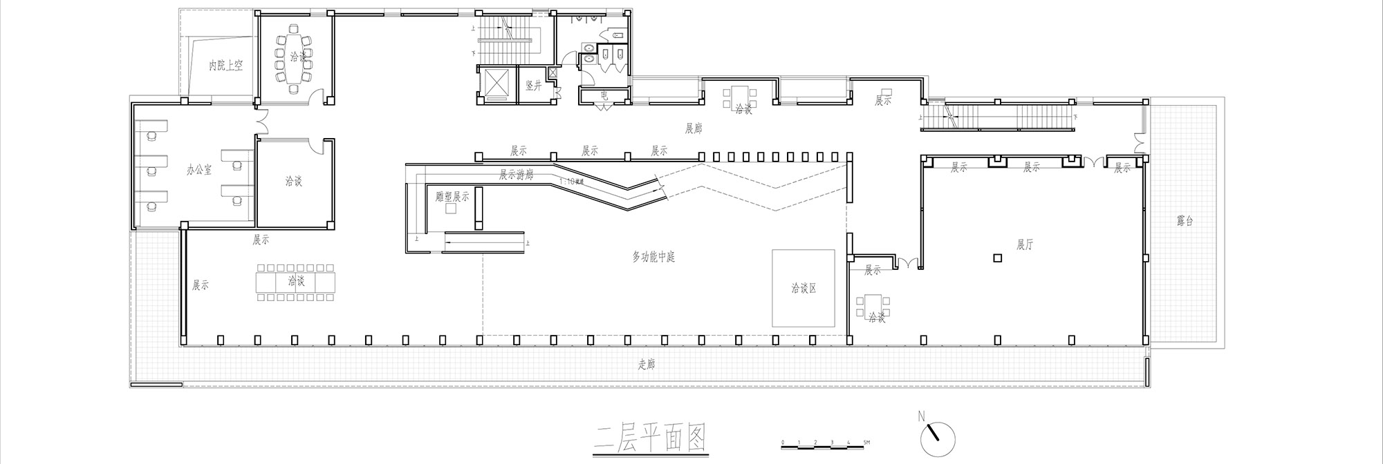
▽ 图纸,更多图纸点击下方相册,drawings,see more drawings in the gallery
项目名称:日晟园林古建工程有限公司企业馆
设计单位:华侨大学建筑学院尹培如工作室,日晟园林古建工程有限公司
建筑师:尹培如,蒋杰雄,杨念民,曾海防
地点:福建省泉州市惠安县崇武镇
设计时间:2011-2012,竣工时间:2015
业主:日晟园林古建工程有限公司
基地面积:5583㎡
建筑面积:4800㎡
结构形式:钢筋混凝土结构
摄影:汪洪波,刘腾飞,尹培如(详见图片图名)
施工图单位:华侨大学建筑设计院
Project Name: Business Club of Ri Sheng ancient landscape Engineering Co. Ltd
Design Organization: Yin Peiru Studio of Huaqiao University School of Architecture, Ri Sheng Ancient Landscape Engineering Co. Ltd
Architects: Peiru Yin, Jiexiong Jiang, Nianmin Yang, Haifang Zeng
Location: Huian, Quanzhou, Fujian Province, China
Proposal: 2011-2012, Completion: 2015
Client: Ri Sheng Ancient Landscape Engineering Co. Ltd
Site Area: 5583㎡
Floor Area: 4800㎡
Structural Style: Reinforced Concrete Structures
Photographer: Hongbo Wang, Pengfei Liu, Peiru Yin (Refer to figure name)
Construction Drawing : Architectural Design Institute,Hua Qiao University
客服
消息
收藏
下载
最近





























