查看完整案例

收藏

下载
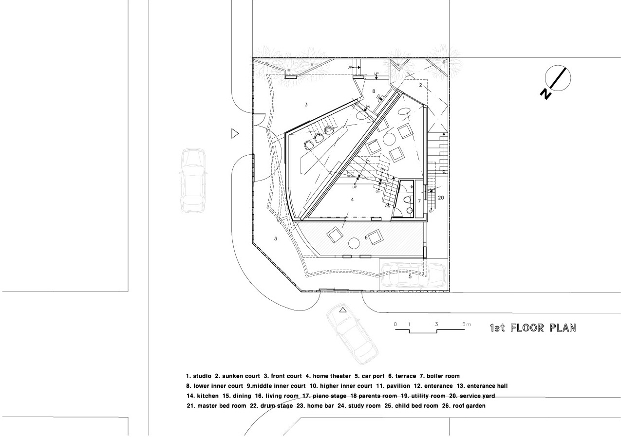
这座住宅位于韩国高阳市。其占地236平方米,建筑面积330平方米。建筑师在建筑体量中,正对北方,切出一块三角形的空儿,让阳光更多的进入建筑与庭院。与此同时,建筑师尽可能的在场地中插入各种花园:内庭院,停车花园,下沉式庭院,屋顶花园。
SLICED PIE-SHAPED LAYOUT – For introducing southern sunlight in winter
We selected eco-friendly layout which was composed by three sliced pie- shaped zone that contain southern axis to introduce winter sunlight into inner and exterior space of this house.
MAXIMIZE THE AREA OF GARDEN IN SMALL SITE
In this small site, about 230㎡, we try to maximize the area of garden and to characterize the variety of gardens where are piloted approach garden, inner garden, piloted pavilion garden, sunken garden, roof garden.
▼ 外观。白色铝管皮肤的曲线造型从韩国传统式 “Cheoma” 屋顶演化而来,底部的混凝土墙则是从传统的石墙演化。
▼ 总平。正对北方切出一块三角形的空儿,让阳光更多的进入建筑与庭院。
▼ 内部。建筑师在三角形空儿中安插了各种花园:内庭院,停车花园,下沉式庭院,屋顶花园。
整个建筑外围布置了一圈了白色的铝管栅栏式表皮,这层表皮能够过滤夏季阳光,以及外界噪音,有效保护住户的隐私和安全。这层皮肤的曲线造型从韩国传统式 “Cheoma” 屋顶演化而来,底部的混凝土墙则是从传统的石墙演化。整个房屋的空间都考虑了游走性,旨在实现内外空间的步移景异。
ECO-SCREEN FACADE – Filter for summer sunlight, noise, privacy and security
We covered front facade with aluminium pipe screen for filtering summer-hot-sunlight, noise for keeping privacy, protection from criminals.
TRADITON SCAPING – Floating&Strolling
Floating shape – Dynamic curve in white aluminium pipe-screen as exterior skin is derived from the curve of “Cheoma” of traditional roof. And perforated concrete fence is metaphor of the form of traditional stone fence.
Strolling space – All the program of spaces of this house were laid out as the touring course that has dramatic interest of “strolling” through the inside and outside of this house, visually and spatially.
▼ 过滤夏季阳光和外界噪音;有效保护隐私和安全的外表皮
▼ 内外空间规划实现步移景异,具有强烈的观赏性。
为了提高家庭的互动性与和睦性,建筑师打造了一个类似于音乐厅般的复合空间将位于不同标高的客厅,餐厅,书房,儿童房,酒吧,琴房,楼梯鼓房还有儿童房以开放的形式联系起来。让家人生活在一个可以感受到彼此,并相互影响的空间中。
PROGRAM OF “FAMILY LOVE” – Concert hall-like space
For increasing the “family love”, we designed concert hall-like “one complex space” where are living room, dining room at 2nd floor and study room, child’s bed rooms, bar, piano and drum stage at stair floor and 3rd floor.
Thereby, all the members of family always interact each other in common life.
▼ 地下工作室
▼ 音乐厅般的复合空间
▼ 客厅,餐厅,书房,儿童房,酒吧,琴房,楼梯鼓房还有儿童房以开放的形式联系
▼ 客厅一角
▼ 开放的联通各层次空间
白色的铝管外表皮让建筑的形象变得透明并和谐的融入到小区环境中。
NON-ARCHITECTURAL LANDSCAPE
The white-curved aluminium pipe screen plays a role in producing some image of collage of various element of this house which is translucent and non-architectural.
And so, we add non-architectural landscape to this residential context which is shaped with continuous house of similarity.
▼ 图纸,可点击看大图,drawings
客服
消息
收藏
下载
最近






























