查看完整案例

收藏

下载
Tanatorium通过独特的漏斗造型唤起了使用者对上帝深刻的感知体验。带有栓孔的混凝土围合而成建筑体量仿佛从土地中生长出来,在人们与死去的人告别时,慰藉他们的心灵。建筑师设计了一个特殊的造型,使得建筑直接与太阳发生对话,表示对最原始的太阳神的崇拜。
The Tanatorium frames very important feelings of its users through the evocation of God and the cavern. An steriotomic architecture formed by a perforated enveloping is born from earth to protect humans when they say goodbye to their deceased people. Though a formal gesture, this concrete cavern opens in diagonal direction to the sun, worshipping this primitive god.
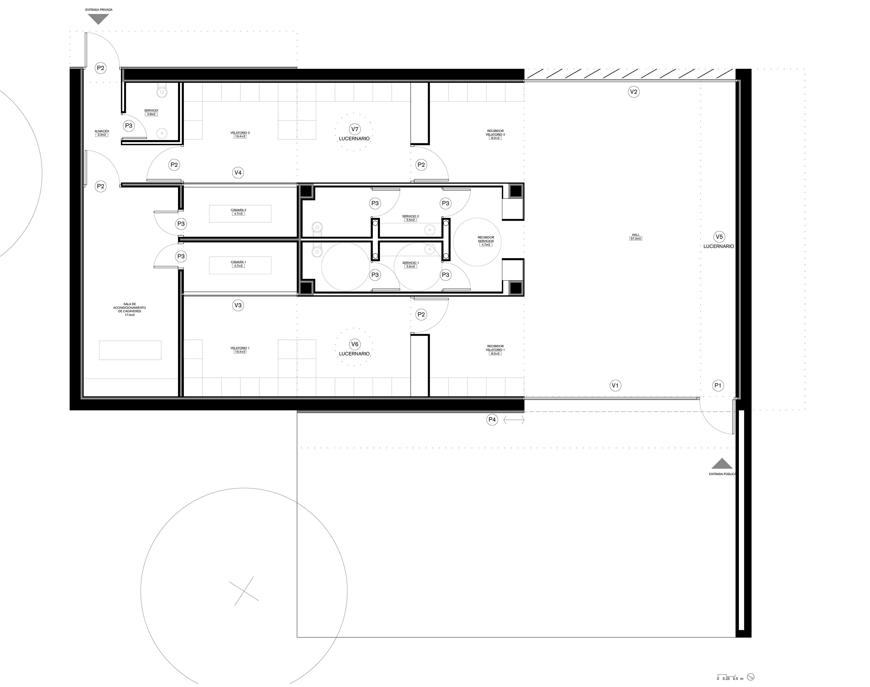
基地位于小城周边的松树林中,建筑位于基地的最南侧,通过纪念性的建筑造型重新定义了城市的边界。建筑的公共入口位于西侧,通过入口进入到南向的大厅空间,由此可以前往殡葬室和休息室。
The site is a pine wood on the outskirts of a little town, the building is placed in its southern limit to define a new urban edge with a monumental architectural character. The public access is on the west side at the end of a pedestrian path coming from the urban area and leading into a hall space oriented South that articulates circulations to funeral parlors and restrooms.
▽入口,the entrance
▽大厅,the hall
阳光穿过金属百叶照射进来,通过阴影的循环移动,营造了时间流逝的视觉印象。百叶在设计时,注意在夏天为室内带来阴影,冬天时保证阳光得以穿过,为室内带来热量。
Thoughout an exterior metalic louvers filter the sunlight draws inside with its projected outlines and recreates the feeling of time passing by into a visual level, which marks the cyclic movement of shadows. The louver pattern has been designed to create shadows in summer and allows the sunlight to come in winter to collaborate in the building energetic performance.
建筑的主要材料是素混凝土,另外还有锈蚀的钢板,透明与半透明的玻璃,瓷砖以及白色的石膏。
The materiality of the building is white concrete, finished in several superficial treatments, galvanized and prelaquered steel corten, transparent and translucent glass, ceramic tiles and gypsum cast finished white.
▽夜景,night view
▽图纸,drawings
△区位图,site
△入口层平面,GF
△剖面图,section
△东立面,east section
△西立面,west section
建筑设计:Juan Carlos Salas
设计师:David Leciñena
建造工程:Javier Muñoz, Sergio Calle
结构工程:Jose Miguel Escosa
平面设计:Bogart & Bacall
摄影:Diaporama
项目经理:Ignacio Villalba
承建方:SOLCEQ
面积:196 ㎡
造价:230.838,02 €
Architect: Juan Carlos Salas
Designer: David Leciñena
Building Engineers: Javier Muñoz, Sergio Calle
Strucutural Engineer: Jose Miguel Escosa
Graphic Design: Bogart & Bacall
Photos: Diaporama
Project Manager: Ignacio Villalba
General Contractor: SOLCEQ
Area: 196 ㎡
Cost: 230.838,02 €
客服
消息
收藏
下载
最近





























