查看完整案例

收藏

下载
这个项目是一座位于宁静街区里的两代人居住的住宅。建筑师创作的兴趣在于如何将独立居所跟周围公共空间的联系在房屋的平面设计中展示出来。
It is the plan for a double family home in a tranquil residential area. My interest is in how the connection between the individual residence and surrounding public area is reflected to the house plan.
▽街区里安静的住宅 home in a tranquil residential area
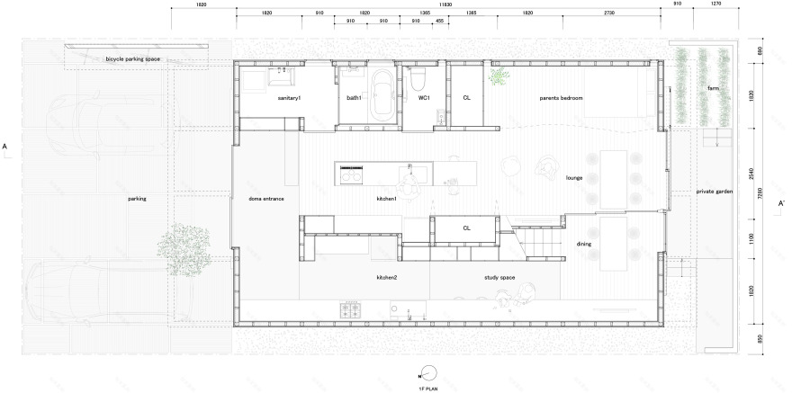
该项目中,基地的北侧有一个公园,建筑师试图强化住宅和公园之间的联系,让后者作为孩子们的游乐场,同时为室内提供的良好的景观。因此建筑师在房屋的北面开口,安装推拉门,保证流线的通畅,让人的视线有所连续,与此同时地面高差和扁而长的洞口的设计让住户可以在樱花盛放的时节在屋内静静地观赏。另外,外部环境穿过北侧入口处的泥土地面与房屋南侧的内院花园相连通。
In this house’s case there was a park adjacent to the north border of the site, so I wanted to put emphasis on the relationship between the house and the park as an everyday playground for children as well as a borrowing landscape for the house. So I put the opening with sliding doors on the north face of the building to secure the continuity of the traffic line and the view, while setting up a wider entrance and level difference so that the residents can enjoy hanami (Cherry blossom viewing) in spring from the interior of the house. In addition, the exterior environment is gradually connected to the interior through buffering spaces of the earthen-floor entrance on the north and the private garden on the south.
▽住宅边的樱花正在盛放 Cherry blossom view in spring
▽房屋北侧的入口正对游乐场 the entrance with sliding doors on the north face is open to the playground
▽1F 平面图 反应房屋与周围环境的关系the connection between the individual residence and surrounding public area is reflected to the house plan
▽剖面图 section 室外的环境穿过开放的一层空间与后院相联通 the exterior environment is gradually connected to the interior and the private garden on the south.
以楼梯间和储藏间为界,滑动门可以将空间分隔为东西两个部分,孩子和大人不互相干扰。在白天的时候,推拉门通常是打开的,方便孩子们跑来跑去。
Two households are separated by the volume housing staircase room and storage between east and west, marked off flexibly by sliding doors set on the south side between two households. These doors are often opened during the daytime, making the entire floor a mobile playground where children can freely run around across the households.
▽可以灵活布置的起居空间,通过推拉门将空间一分为二,大人和孩子互补干扰 open lounge with flexibility can be divided into two different spaces by slide doors
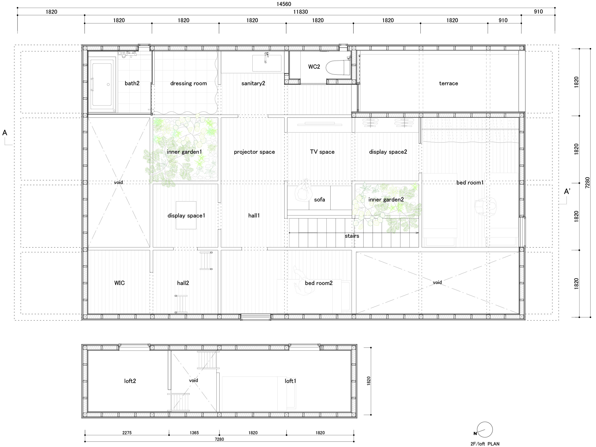
二楼是孩子们的空间。为了满足13个房间既连续又分隔的需求,整个二层被分隔成一个个约3.3平方米上下隔开、中间连通的格子间。为了保证视线的通畅,二层被设计为无柱空间,上方的隔墙从天花悬吊下来。这样的格子间设计创造了一个站起来公共、躺下或坐下时又很私密的空间。除了卫生间外,其他房间的位置可以根据孩子们的需要随时变更。同时,两间室内花园保证了二层的自然光照和通风。
The second floor is a residential space for the child’s household. In order to fulfill 13 room demands coexisting while keeping them open to each other, the entire second floor was split into 1-tsubo (about 3.3sqm) grids, bordered by spandrel walls between the rooms. It is also planned to be a pillarless space without view obstructions by the construction project using hanging walls of 1-tsubo grids. Spandrel walls serve as loose barriers, creating a public space overlooking the entire floor when standing up, while securing private rooms hid by the walls when lying or sitting down, enabling one same space have public and private structure at the same time according to postures. The positioning of all residential rooms along the grids, except the wet area, can be altered with the growth of children, while two inner gardens assume the roles of daylighting and ventilation, connecting the interiors to the agreeable exterior environment with the swaying planting and the natural light.
This plan is focused on the relationship between “The house and the surrounding area”, “Two family households” and “Public and Private in the residential space”. I was very much delighted to see these families actually live freely across both sides and our “proposals of the relationship” free from any forms or formulas rooted in their life.
▽2F 平面被划分为3.3平米的格子间 the entire second floor was split into 1-tsubo (about 3.3sqm) grids
▽格子间上下隔开、中间连通grids are bordered by spandrel walls
▽站起来可以看到整个二楼的情况 the grids create a public space overlooking the entire floor when standing up
▽躺下或坐下时又很私密the grids secure private rooms hid by the walls when lying or sitting down
▽室内花园上方开天窗,满足二层空间的自然采光和通风。two inner gardens assume the roles of daylighting and ventilation
▽室内花园将自然引入进来,营造舒适的居住体验 the gardens connect the interiors to the agreeable exterior environment and provide comfortable living experience
▽室内花园旁的更衣间 changing room by the garden
▽洗手间 the wet area 透过洗手池上方的窗户可以看到后院的景色 view of the private garden gets inside from the window over the sink
基地面积:176.47㎡
占地面积:92.09㎡
楼层面积:149.05㎡
设计时间:2012.11-2013.07
竣工时间:2014.04
团队:Katsutoshi Sasaki + Associates
结构:Tatsumi Terado Structural Studio
建造方:Maruhei construction Ltd
Project name: House in Hanekita
Location: Okazaki Aichi Japan
Site Area: 176.47m2
Built Area: 92.09m2
Total Floor Area: 149.05m2
Type of Construction: Wooden
Exterior Materials: Metal finish
Interior Materials: paint finish, Lauan plywood
Design time:November, 2012 – July, 2013
Year of completion :April, 2014
Design team: Katsutoshi Sasaki + Associates
Structure company / Tatsumi Terado Structural Studio
Construction company / Maruhei construction Ltd
Photo / Katsutoshi Sasaki + Associates
客服
消息
收藏
下载
最近




























