查看完整案例

收藏

下载
排练厅为一座集约型建筑体,坐落于文物保护建筑城铁仓库以及哥白尼街住宅区之间,可为演员日常排练提供优良的条件。歌剧院的50名舞者以及芭蕾舞学校的55名学生将是排练厅的主要使用者,排练厅内设有两座实际规模舞台,三座小排练厅以及更衣室、休息室、理疗室和来访者公寓。
Located between the listed historic tramway depot and housing along Kopernikusstrasse, the compact building provides ideal conditions for rehearsal. The Oper’s approx. 50 professional dancers and the ballet school’s 55 students have at their disposal two ballet rooms with full-size stage dimensions, three smaller practice rooms as well as changing rooms, rest rooms, a physiotherapy room and an apartment for guest artists.
▼西侧立面悬挑Cantilever of the western façade ©Marcus Bredt
新建建筑形象令其自身从异质化周边环境中区别出来,并呈现内敛的姿态,南侧立面底层退进,强调了邻近的莱茵轨道货运仓库一面二层之上的12米高芭蕾舞练习厅。
新建建筑所在周边环境仍保留有历史上工业用途的痕迹。其建筑语言在颜色和材料的选择上延续了基地工业时代的遗留风貌,同时刻画出其工作车间和艺术家工作室的特点。
建筑刻意回避了主导性和引人瞩目的颜色,较为粗糙和原始的形象符合其充满创造性和实验性舞蹈工作车间的气质。建筑内部仍延续了同样的设计语汇,对色彩和材料选择审慎,墙面为清水混凝土。
While the architectural expression of the new building is distinctly different from the heterogeneous backdrop created by the houses, giving the place a succinct appearance, the building volume – which recedes towards the south – creates a balance between the adjacent historic Rheinbahn depot and the twelve-meter high block with the stacked ballet rooms to the north.
The immediate architectural surroundings of the new building are characterized by historic industrial use. The architectural style and the associated materials and color scheme make deliberate reference to the industrial character of the place, giving the building its workshop and atelier ambiance.
As a workshop in the sense of an experimental and creative space and as a place of incompleteness in a positive sense, the building is not embellished with a prominent color scheme in the quest for dominance. This approach is continued in the interior – color and materials are deliberately restrained and the walls are left in fair-faced concrete.
▼总平 Site plan
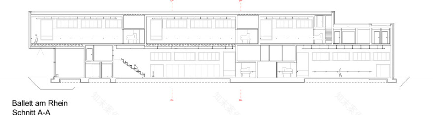
建筑体块由两座叠加的双层舞蹈大厅,以及分布于三层之上的附属功能区域组成。西部立面醒目的挑空明确定义了建筑面向墨洛温人大街处的入口。入口处为一座两层高前厅,玻璃幕墙入口与清水混凝土墙面产生鲜明对比。前厅和餐厅构成了开阔交通核心空间的开端,所有楼层均沿着贯通的纵向交通空间布置。芭蕾舞大厅位于首层和三层之上,入口宽大,正对墙面镜,进入时可避免对正在进行的活动产生干扰。
The building consists of the stacked, double-height ballet rooms and the associated functional areas arranged on three floors. The conspicuous cantilever of the western façade highlights the building´s access from Merowinger Strasse. Here is the two-story foyer, the glass façade of which defines the entrance area, thus differentiating it from the fair-faced concrete façade of the building. The foyer and the canteen welcome the visitor with generous access space, from where circulation areas lead through the building on all floors. The ballet rooms are accessed via generous entrance areas on the first and third floors, thereby avoiding any disturbance to the ongoing dance rehearsals in front of the mirror walls.
▼芭蕾舞练习厅 Ballet rooms©Marcus Bredt
▼芭蕾舞练习厅 Ballet rooms©Marcus Bredt
▼芭蕾舞练习厅 Ballet room ©Marcus Bredt
▼交通核心 Corridor ©Marcus Bredt
▼餐厅 Canteen ©Marcus Bredt
▼凝练的颜色和材料 Restrained color and materials ©Marcus Bredt
客服
消息
收藏
下载
最近


















