查看完整案例

收藏

下载
支持容积率变化且外观和谐的立面结构网系统
对于业主的三个要求,建筑师需要解决随之而来的两个设计问题:1 如何设定一个灵活的系统积极响应未来的变化(比如容积率从2.5增加到4);2 如何设定一个满足业主要求,与城市和办公需求共存的外立面。
终上所述,建筑师最终提出了一个立面结构网系统。
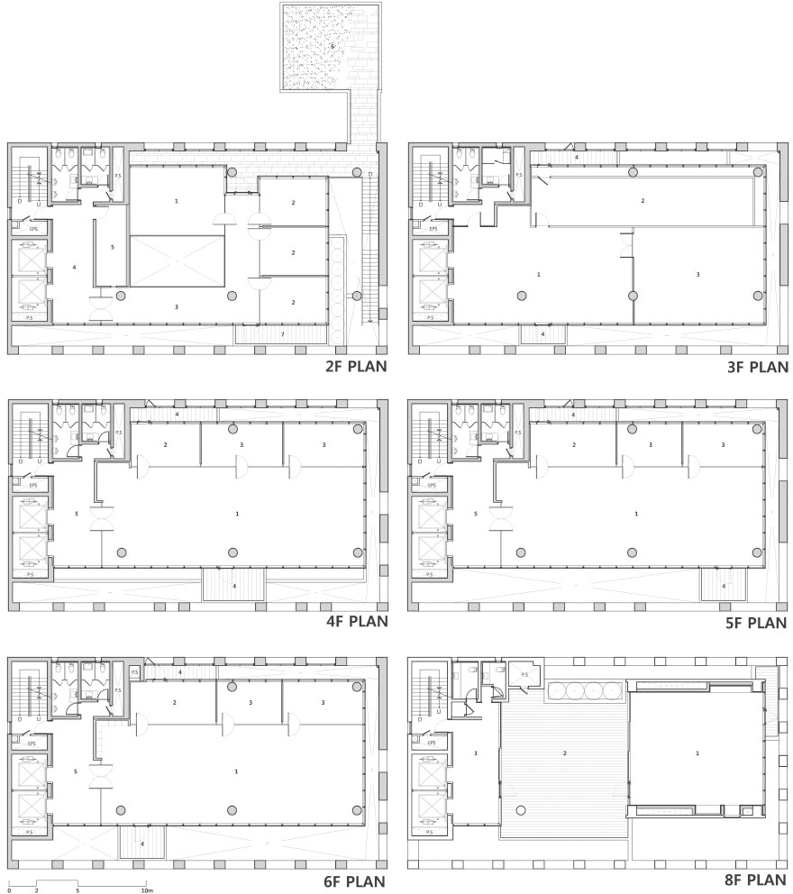
这个立面系统可以看做双层外表皮,第一层表皮与建筑之间拥有一定的距离,这些距离在未来可以被填满,搭建上楼板,让建筑的容积率从2.5增加到4。
With the above three requirements, there were two questions to be answered within the design. First was to ask “How can we provide a system with much flexibility that would respond positively to the future changes (in regards to floor to area ratio) that might occur?” And “How can this system coexist with the client’s request of new typology of an office building and the application into the urban environment?” In response to these questions and request, the architects came to a conclusion of “facade structural net” system.
Current zone requires Floor-Area Ratio of 250%, and it would increase to 400% when the zoning changes in the future. And the remaining 150% would be achieved through utilizing the space between the skin and the structure through the floating deck system.
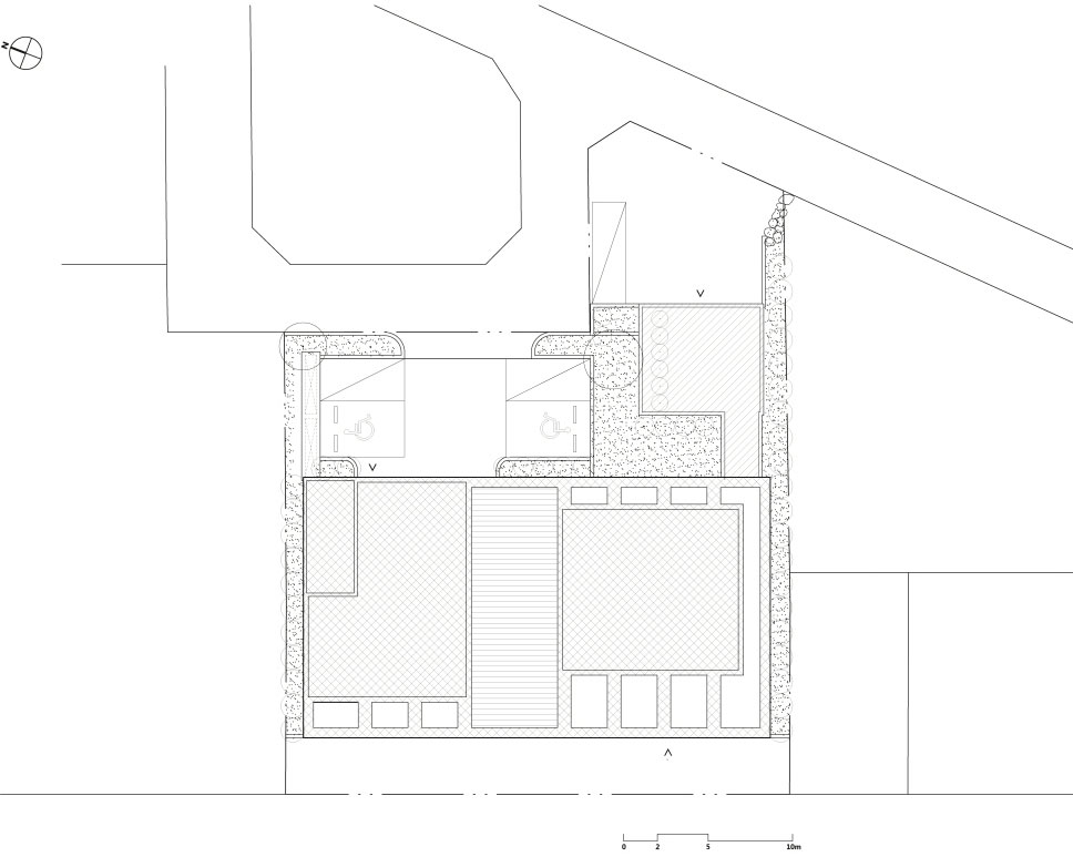
每层楼都有挑出去的大露台,这些露台可作为办公室雇员的户外工作场所。同时每层之间的露台都不重叠,只是视觉上有联系,这个目前不算入总面积露台也保证了办公空间的多样和安全。
On each floor, there are 2 floating decks which perform as a structural beam; also as an outdoor terrace for the office employees who work indoors more than 8 hours a day. As the decks do not overlap one another, it is excluded from the total-floor area and provides a visual communication. In addition, the office space is surrounded by a layer where it is not exposed too much and offers a higher level of security.
The ‘Shield Can Frame’, one of the company’s mobile items, was the motive in designing Facade Structural Net for the building. It was to represent the brand identity through configuration representation of the product. This arrangement also allows different identity of urban landscape at each level. Furthermore, the adjustment of frame intervals and density minimized heterogeneity from the pre-existing context.
客服
消息
收藏
下载
最近






















