查看完整案例

收藏

下载
项目位于京城知名的琉璃厂古文化街街口,原本是一家经营中国书画出版物与古籍图书的书店。店面是在上世纪80年代由政府统一兴建的钢混仿古建筑,总面积约300平米,地上二层,地下一层。在如今的信息时代,以往书店的单一模式已经无法吸引读者,如何对传统书店进行升级,是每一个书店经营者考虑的难题。荣宝斋咖啡书屋就是尝试将书屋与咖啡厅进行业态混合,以复合的经营模式和多样的体验来吸引更多的读者参与。伴随着一杯浓香的咖啡,让人与人、人与书、人与自然交流对话,营造慢节奏的轻松、舒适的阅读环境。
▼ 外观
The project is located in a well-known street in Beijing called Liulichang, which originally was a book store and selling Chinese painting, calligraphy publications, and ancient books. This book store was a pseudo-classic architecture, and was built in the 80s century by the government unified construction. The book store was a two story building with a basement. The total construction area is about 300 square meters. In today’s information era, the single mode of previous bookstores cannot attract readers any more. How to upgrade traditional bookstores is a problem that each bookstore operator thinks about. Rongbaozhai (studio of glorious treasures) coffee bookstore is trying to mix bookstore with coffee house and attract more readers with its compound management model and diversified experiences. Accompanied by a cup of fragrant coffee, people communicate with others, books and nature, creating a relaxing and comfortable reading environment with slow rhythm.
▼改造过程
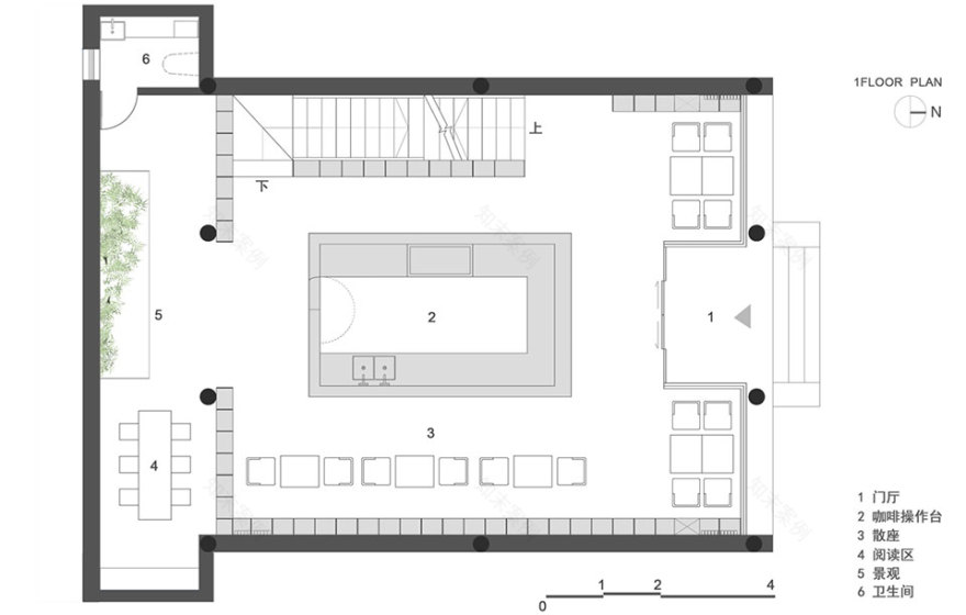
▼首层
为了改变传统书店粗重、刻板的形象,新的设计利用通透、轻盈的铁制书架整合功能、交通、设备与照明,并将绿色植物置入其中,使得新的内部空间界面更加连续开放和富于生机。基于建筑原有的柱网,室内呈现出环状的空间结构:中央区域为岛式空间,周边为铁制书架墙体。首层中心岛做为收银台及咖啡操作台;二层由调光玻璃围合成一个发光的盒子作为会议室。调光玻璃可改变内外的透明状态,让会议室使用更加灵活。中心岛通过软膜天花形成均匀的整体照明,宛如室内的灯笼,而咖啡座则围绕中心散布于周边。
In order to change the heavy and rigid images of traditional bookstores, new designs use transparent and lightsome iron book shelves to integrate functions, transportation, equipment and illumination and put green plants in the stores to make their internal space more continuous and open as well as full of vitality. Based on the original pole net of the building, the inside turns out to be a ring-like space structure: the central district is island-style space surrounded by iron bookshelf walls. The central island on the first floor is used as cashier desk and coffee operating table; the second floor is the meeting room-a shiny box enclosed by switchable glass. The switchable glass can modify internal and external transparent state to make the meeting room more flexible for use. With soft membrane ceiling, the center island has a homogeneous integral illumination, which is just like indoor lanterns, and the coffee booths are interspersed around the center island.
▼首层
▼改造图解
▼首层
▼二层
▼会议室
铁制书架采用1cm*1cm的实心铁条作为竖向支撑,1cm*30cm的铁板作为层板,利用激光切割裁切掉每层立柱的切口,之后由下至上依次焊接完成。穿插于铁质书架之间的植物既能让读者感受到自然,同时可以有效调节室内微气候。植物盒底部安装LED灯带,可为阅读提供间接照明。室内植物主要选择喜阴的蕨类植物,高处的植物盒里布置了攀缘灌木。而香草类的薄荷,碰碰香等小型植物则放置在窗前及咖啡桌上。咖啡书屋将成为人们在琉璃厂逛街购物之余一处新的休闲之所。安坐其间,咖啡、书籍、植物与人共处,室内弱化成一个环境背景,成为激发人的体验和感受的场所。
The iron bookshelves use 1cm*1cm solid iron bars as vertical supports, and 1cm*30cm iron plates as layer boards. They are completed by use of laser incision to cut incisions of stand columns in each layer, which are then welded from bottom to top. Plants between the iron bookshelves can make readers sense the nature, meanwhile they can effectively adjust indoor microclimate. LED light strips are installed at the bottom of the plant boxes, which can provide readers with indirect illumination. Sciophilous ferns are the primary choice of indoor plants and the high plant boxes are furnished with climbing shrubs. Herbs such as mint and pelargonium odoratissimum are placed in front of the windows and on the coffee tables. The coffee bookstore will become a new leisure place for people after shopping in the Azure Stone Workshop. Sitting peacefully therein, people are coexisting with the coffee, books and plants. The indoor space has been weakened into an environment background where people’s experience and feelings are motivated.
▼材料说明
▼二层
▼首层
项目名称:荣宝斋咖啡书屋
项目地址:北京,西城区琉璃厂
项目类型:室内设计
项目性质:咖啡厅+书店
建筑面积:293平米
设计时间:2015.01—2015.02
施工时间:2015.03—2015.06
主要材料:铁板、调光玻璃、像木地板
主设计师:韩文强
设计团队:杨滨林、黄涛、李云涛
摄影师:王宁
Project Name: RONGBAOZHAI COFFEE BOOKSTORE
Project Address: Beijing, Xi Cheng, Liu Li Chang
Project Type: Interior Design
Construction Area: 293 m2
Designing Time: 2105.01-2015.02
Construction Time: 2015.03-2015.06
Major Materials: Steel Panel, Switchable Glass, Wood Flooring
Major Designer: Han Wen Qiang
Design Team: Yang Bin Lin, Huang Tao, Li Yun Tao
Photographer: Wang Ning
客服
消息
收藏
下载
最近






















