查看完整案例

收藏

下载
The Hub at Wellington Zoo, New Zealand features a diverse programme to suit the reptile inhabitants and the human visitors. Assembly Architects Limited repurposed the curious entry facade of a former elephant house to form a walled dining courtyard, used site excavations to form a rammed earth reptile habitat and designed a unique event pavilion for daytime picnics and evening parties.
Wellington Zoo is situated within the Town Belt – a verdant public reserve that arcs around the hills of the central city and suburbs. Unoccupied flat land within the zoo grounds was a rarity when architects Justin and Louise Wright identified the potential of the sun drenched north facing site beneath a man-made duckpond, a disused elephant mounting stand, and the dilapidated elephant house. Kamala, the last elephant at the Zoo died in 1983, ending a half-century era of elephants resident at the Zoo.
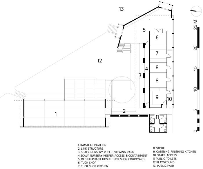
From the southern downhill approach the existing elephant house archway entry opens into a casual dining courtyard. Little was done to the existing facade save for earthquake strengthening to the dome topped arches, minor repair plastering and a colourful new paint job. Fixed bench seating was added to the courtyard walls, which together with painted timber picnic tables create a casual dining court for the kiosk style food, ice cream and coffee.
A translucent canopy roof supported on Laminated Veneer Lumber beams soars atop the courtyard and over a low-slung building that contains the kiosk together with back-of-house service rooms, a catering preparation kitchen, public toilets and secure staff access to the Scaly Nursery reptile enclosure. A covered corridor connects all of the staff service areas and facilitates easy loading from the adjacent service vehicle delivery zone, which is also now separated from the public areas with well defined landscape treatment.
On the public side of the building, the reptiles are presented basking in ventilated glass fronted cases within a substantial wall of rammed earth. The earth was sourced from excavations within the zoo grounds and is stabilized with cement to counter erosion. Since the site is in an earthquake prone zone, the rammed earth is also steel reinforced, and protected from stroller wheels with steel rails to match the handrails. The 4 habitats, each with photographic vinyl backdrops, step downhill with viewing via a gentle ramp.
A transverse wall in rammed earth sections signals the end of the Scaly Nursery and leads toward the public toilets, and to the southern end of the pavilion. The short link allows space around an existing mature cabbage tree (Ti Kouka/ Cordyline Australis) and provides dedicated access to the toilets and reptiles when the cafe and pavilion are occupied. The link is sheltered by a cantilevered roof of folded steel sheets that resulted from a paper folding study in the architecture studio. Slots between the rammed earth sections allow glimpses of the rain water tanks which collect the water for use in the public toilets.
With a clear span of almost 7m and length of 21m the pavilion, named Kamalas after the zoos last elephant is open on the east side to avoid the worst of the wind and face onto the green Town Belt. The structure comprises a concrete slab, two precast concrete end walls, and a steel frame to support a vaulted tent structure.
The vault is supported at the north and south ends by precast concrete walls, which also contain service slots for the power, data and audio visual connections required during events. To the opening east face, double channel steel posts support a folded steel plate over, which acts as a rain gutter and neatly conceals roll-away clear plastic doors. The gutter plate extends beyond the ends of the pavilion, terminating with rain chains over rock filled concrete pipe water catchers for the gardens below.
Extensive and collaborative design and prototyping was carried out for the vault framework. Justin Wright worked with structural engineer Alistair Cattanach from Dunning Thornton Consultants over several months and through many iterations to arrive at the final solution which was thoroughly tested with up to 1:1 prototyping prior to final confirmation. The 4mm aluminium shape, fabricated and assembled by Fraser Engineering was cut on a turret punch complete with holes for assembly. The shape was then pressed into the radius of the final vault on a form press, and powder-coated in gloss black paint. On site, following a precise set-out and erection of the steel frames, Fraser Engineering assembled 716 of the curved elements, weighing 1.5Kg per piece, working horizontally to position in place with around 1400-1500 turned aluminum rods through the prepunched holes. Finally, 1400-1500 tube gussets were riveted to the curved elements to balance the torsional forces in the structure and complete the vault framework. The pavilion assembly took approximately 3 weeks.
The pavilion is clad in a lightweight plastic membrane commonly used on agricultural tunnel houses. The opaque film lends a bright translucency to the pavilion interior, with interesting effects in both rain and sun. When the stunning late-afternoon shadow play from the western trees wanes, artificial lighting takes over and the effect is reversed, illuminating the form of the structure to the exterior at night.
Apart from the concrete slab floor and end walls, the pavilion is essentially a flat-packable product design. The longest steel element is 7.2 metres, therefore the metal works are transportable in a 30ft shipping container.
The Hub was officially opened by the Wellington mayor Celia Wade-Brown in September 2011. The NZ Designer’s Institute awarded Assembly Architects Ltd a silver “Best Award” in the Spatial Built Environment category for the Zoo Hub project.
Assembly Architects Limited is a Wellington architect practice that designs and delivers architecture projects throughout New Zealand to enrich the built environment for local, national and international clients.
Recent projects in the Wellington region have included the Wellington Zoo Hub, the restoration and renovation of a 3 storey villa in Thorndon, Harry’s Fashion Boutique in Seatoun (together with the owners own home) and various classroom blocks for Catholic Schools. Other recent projects throughout the country include various prefabricated projects such as the Britomart Showcases; a luxury retail pop up that was delivered on an extremely tight timeframe before the Rugby World Cup, Fast-class classrooms, and prefabricated student accommodation pods for Auckland University’s Elam Hall. Works in progress include a holiday house in Mangaweka, a rammed earth house in Wanaka and a residential extension to an existing Woolshed.
Assembly Architects Limited recently received a Designer’s Institute silver Bestaward 2011 in the Built Environment spatial category for the Wellington Zoo Hub, and a New Zealand Institute of Architects Gisborne/ Hawkes Bay Architecture Award 2011 for the Waipatiki Beach House in Hawkes Bay. Assembly Architects Limited is a New Zealand Institute of Architects practice and a member of PrefabNZ.
Assembly was established in 2005 by Architect Justin Wright (B.Arch hons, B.BSc, ANZIA, NZ Reg. Architect) and partner/ wife Louise Wright (B.Arch hons, ANZIA, NZ Reg. Architect). They are both graduates from Victoria University of Wellington, and also attended the Penn State University Sede di Roma architecture programme in Rome, Italy.
新西兰惠灵顿动物园坐落在市区临山处的绿地之中。其动物园中心以其多样化的功能为到访者和生活在这里的爬行动物提供场所。这里前身是大象园,但是动物园最后一头大象在1983年死去了,因此现在这里被改建,中心形成一个有围墙的用餐庭院,同时也是爬行动物栖息地。这里还设计一个独特的亭子用于白天的野餐和晚上的聚会。
动物园中心包含一系列低矮的建筑,服务用房,厨房,卫生间,爬行动物区,以及一个半透明棚顶的亭子。走廊联系服务区域,也限定公共区域的范围。场地设计也考虑了雨水收集系统,并设置了雨水花园。
亭子长21米,跨度为7米,端墙采用混凝土结构。弧形外壳经过一系列的合作设计,做了1:1的足尺模型之后,由结构工程师敲定。4毫米厚的铝条外覆黑色烤漆,形成弯曲优美的造型,以单元进行组合,每个单元大约重1.5千克,共716个单元。1400—1500个管状金属充当锚件并平衡结构扭转力。整个框架完成大约耗费3星期。
外面笼罩的半透明表皮在下午的时候树影婆娑,拥有让人流连忘返的光影,当了晚上,灯光亮起,这里由内而外的发亮。此亭子最长的金属构件是7.2米,采用集装箱运输。此中心在2011年9月开业,并得到一个奖项的银奖。
ASSEMBLY ARCHITECTS LTD DESIGN & DOCUMENT TEAM:
Justin Wright (director), Louise Wright (director) and James Norman.
Project Credits
ARCHITECT Assembly Architects Limited
PROJECT TEAM Justin Wright, Louise Wright, James Norman
PROJECT NAME The Zoo Hub, Wellington Zoo
PROJECT ADDRESS Wellington Zoo, 200 Daniell Street, Newtown, Wellington 6021
OPENING DATE 1 September 2011
STRUCTURAL ENGINEER Alistair Cattanach, Dunning Thornton Consultants Ltd
METALWORK FABRICATOR Fraser Engineering
SERVICES ENGINEER SKM & eCubed
CONTRACTOR Naylor Love Limited
PHOTOGRAPHER Jet Productions Ltd (Mike Heydon)
客服
消息
收藏
下载
最近


























