查看完整案例

收藏

下载
THE TARA(泰语:ธารา)是一座以“水之灵”为设计灵感的办公大楼,寓意着心灵的融合、人与自然融为一体、拥抱多样性,并将这些美好的属性融合在一起。为了赋予这座新的大型办公大楼美丽与现代性,并反映出场地所在区域的本质,建筑师选择了“TARA”(水)作为在该地区中心建造这座建筑的主要灵感。它被视为一股“清新的天然泉水”,向天空升起,再流向周围的土地,为那些参观或路过的人创造出一种阴影和动态运动的感官。
THE TARA, (Thai: ธารา) the office building that was designed as “The Spirit of Water” – to imply the convergence of people’s hearts, integrating with nature and embracing diversity, unites them. With the aims for this new large office building to bring into being beauty, modernity, and to reflect the essence of the original area, named TARA PARK, we have chosen the inspiration of a ‘TARA’ (Water) as the primary inspiration in crafting this building at the heart of this area. It is approached as a ‘new natural spring’, emerging towards the sky and flowing down to the surrounding land, creating a sense of shade and dynamic movement for those who visit or pass by.
▼项目概览,overall of the project© Wworkspace
建筑的空隙和轴线 THE VOIDS AND AXES OF THE BUILDING
为了使新建筑成为项目的核心,在布局时,建筑师非常重视周围的空隙,以创造独特的开放空间,使建筑表达的美感传达向个方向。具体来讲,设计结合了建筑周围的绿色空间,塑造出郁郁葱葱的树木区域,以优化居住者和周围环境的氛围。此外,建筑的轴线与项目的外部街道方向旋转 45 度,与附近地区相比,这种设计为本项目创造出独特而强烈的视觉识别性,也促进了项目区前部空间与大型广场的融合。
▼轴测图,axonometric drawing© Plan Associates Co., Ltd.
▼总平面图,site plan© Plan Associates Co., Ltd.
With the intention for the new building to serve as a centerpiece of the project, its architectural layout places paramount importance on the surrounding voids to create distinctive open spaces, allowing architectural expressions of beauty to convey in every direction. Specifically, the design incorporates green space around the building, shaping a lush wooded area to enhance the ambiance for both occupants and surrounding environment. Furthermore, the building’s axis is rotated 45 degrees from the external street orientation of the project, creating a distinctive and strong visual identity compared to the vicinity. It also facilitates integration with the large-scale Plaza and the front space of the project area.
▼鸟瞰,aerial view© Wworkspace
▼建筑的轴线与项目的外部街道方向旋转 45 度,the building’s axis is rotated 45 degrees from the external street orientation of the project © Wworkspace
建筑形态 THE BUILDING’S FORM
项目业主希望建筑高度合适,同时最大限度地提高内部空间效率,并为其打造独特而有意义的身份定位。因此,设计采用了矩形的形式,并使体量向天空逐渐缩小,让人不禁联想到金字塔。这种形态体现了简单和纯粹,反映了水元素的劲荪,作为建筑的主要视觉形象。此外,建筑师还在地面层规划了水景,辅以周围的环境,以强调水的叙事,营造出宁静且壮丽的氛围。
Driven by the project owner’s desire for a structure of suitable building height, along with considerations for maximizing internal space efficiency and the creation of a unique and meaningful identity, we decided to design a rectangular form, reminiscent of a pyramid’s tapering form to the sky. This shape embodies simplicity and purity, reflecting the unadulterated element of the water to serve as the primary visual image design. Also, we crafted the reflecting Pond at its base, complemented by a surrounding to accentuate the narrative of the water, fostering its tranquility and magnificence.
▼建筑由下向上逐渐缩小,the building shrinks from the bottom up © Wworkspace
▼由建筑看周围环境,viewing the surrounding from the tower© Wworkspace
建筑立面 BUILDING FACADE
为了进一步反映出“水”元素的宁静,建筑立面采用了节能的策略。高效玻璃材质能够调节建筑的热性能,玻璃外还添加了额外的铝遮阳罩包裹结构,这一设计将建筑的热防护效率提升至 20.99%。
▼分析图,analysis diagram© Plan Associates Co., Ltd.
▼分析图,analysis diagram© Plan Associates Co., Ltd.
To represent the element of the ‘Water,’ symbolizing serenity, our design intended an energy-efficient approach across all building’s surface. We’ve Opted for highly efficient glass to regulate heat intake into the building, whilst enveloping the structure with an extra layer of aluminum sunshades. This augmentation significantly increases heat protection by up to 20.99%.
▼建筑外观,exterior view© Wworkspace
▼仰视建筑,looking up to the building© Wworkspace
▼外立面细部,facade details© Wworkspace
为了体现与最初概念相关的抽象之美,铝制遮阳构件选用了自然的色调,并添加了如水般自由流动的图案。当阳光照射到这些铝制遮阳构件上时,光线会沿着弯曲的表面产生不同的色调,以反映出一天中不断变化的时间。当人们在建筑周围漫步并从不同角度观察建筑的立面时,这些扭曲线条的微妙变化让人联想到水的缓慢流动,创造出不断变化的视觉体验。
To reflect the abstract beauty related with the initial concept, the aluminum sunshades are crafted in a natural tone, featuring a twisting, directionless pattern akin to the free-flowing movement of water. When sunlight hits these aluminum sunshades, they generate varying hues along their twisting paths, responding to the changing times of day. As one moves around the building and observes its facade from different angles, the subtle shifts in these twisting lines reminiscent of a water slowly evolve, creating an ever-changing visual experience.
▼俯视底层花园,overlooking the garden© Wworkspace
▼花园鸟瞰,aerial view of the garden© Wworkspace
▼顶视图,top view© Wworkspace
功能空间 BUILDING UTILIZATION SPACES
地下被战略性地设计为会议中心的核心空间,无论是在内部空间还是外部流线上都发挥出重要的作用。该空间以室内外宽敞的楼梯为特色,彰显出极高的灵活性,将底层的接待区与外部人行道无缝连接,不仅确保了寻路的便捷,同时也赋予了空间凝聚力。此外,天窗将自然光引入整个地下层,与周围区域相辅相成。自然石墙作为地下空间主要饰面,彰显出优雅的质感,同时使自然光形成慢射,营造宁静和温暖的氛围。
▼剖面图,section© Plan Associates Co., Ltd.
The basement is strategically designed as a central space for the Conference Center, both internal and external usage of the organization. The layout features expansive staircases indoors and outdoors, designed for flexible purposes, seamlessly connecting the reception area on the first floor to the exterior walkways, ensuring convenient and cohesive linkage. Moreover, skylights are incorporated to introduce natural light throughout the underground level, complementing the surrounding areas. Natural stone walls are elegantly chosen as the primary surfaces to capture and diffuse the incoming natural light, fostering an ambiance of tranquility and warmth for occupants.
▼底层入口,entrance© Wworkspace
▼底层会议中心前厅,front hall of the conference center© Wworkspace
▼天窗,skylight© Wworkspace
位于一层的接待大厅,以高大透明的入口为特点,营造出明亮宽敞的氛围。从室内向外看,周围的花园和公园拥抱着整栋建筑。
On the 1st floor, we’ve designed a reception hall with a tall, transparent glass entrance to accommodate a large number of occupants. Looking out from the interior – onto the view of the surrounding gardens and parks that embraces the building.
▼接待大厅,reception hall© Wworkspace
▼入口,entrance© Wworkspace
▼楼梯,staircase© Wworkspace
▼空间层次,space layers© Wworkspace
在三层和四层,共享办公空间中采用开放式家具布局,营造出多元化的氛围,与轻松协作的工作环境。
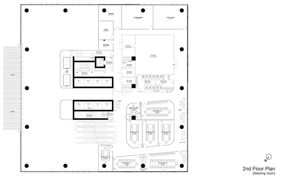
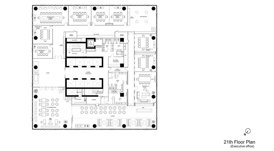
五至二十一层为办公空间,空间尺度与层高均符合甲级办公标准,可适应未来功能和布局的变化。
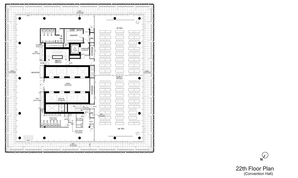
第二十二层被设计为大型会议区,用于举办宴会和年度会议。会议区中高大的玻璃中庭以及玻璃幕墙包围的外部空间,将柔和的光线与新鲜空间引入室内,创造出良好的采光与通风。
On the 3rd and 4th floors, the co-working space is arranged with open-plan furniture to create a diverse atmosphere, fostering a relaxed and collaborative working environment. On the 5th–21st floors are office spaces designed with dimensions conforming to Grade A office standards in terms of width and height, offering adaptability for future changes in functionality and layout. The 22nd floor is designed as a large meeting area intended for hosting banquets and annual conferences. It features a tall glass atrium and an exterior space surrounded by high glass walls, serving as a light filtration layer and providing excellent ventilation.
▼空中大厅,sky hall© Wworkspace
▼细部,details© Wworkspace
除了将“水”元素作为设计概念外,建筑师还将周围的环境融入到建筑叙事中,比如在建筑外围设置了带有顶棚的人行道。同时,设计从水路中汲取灵感,将建筑的故事和周围社区结合在一起,利用有机的线条,在建筑周围创造出自然流动的通道。裸露的混凝土等天然材料作文设计的主要元素,旨在让路人沉浸在这种自然环境的叙述中。
Apart from designing with the water concept, we also integrated the surrounding environment into the architectural narrative, such as the covered walkways outside the building. We drew inspiration from the waterway to bring together the story and surrounding community, using the concept of the organic line to create fluid pathways surrounding the building – through nature. We use natural materials like exposed concrete to be the primary elements in this design, aiming to immerse passersby in the narrative of this natural environment.
▼带有顶棚的人行道,covered walkway© Wworkspace
▼地下一层平面图,B1 Floor Plan© Plan Associates Co., Ltd.
▼一层平面图,First Floor Plan© Plan Associates Co., Ltd.
▼二层平面图,2nd Floor Plan© Plan Associates Co., Ltd.
▼四层平面图,4th Floor Plan© Plan Associates Co., Ltd.
▼二十一层平面图,21th Floor Plan© Plan Associates Co., Ltd.
▼二十二层平面图,22th Floor Plan© Plan Associates Co., Ltd.
客服
消息
收藏
下载
最近







































