查看完整案例

收藏

下载
山水人文整合
Integration of Landscape and Culture
于在建的青龙山旅游度假区入口区设置游客中心,是整合这里山水人文的一个动作。设一大水面倒映山川建筑;立一笔架山形室外展廊作照壁;建龙形建筑连两岸山势;布萌虎乐园、舞台等于其间丰富人气空间。共生建筑团队以传统风水格局出发,诗意排布文房四宝意象,让文旅设施与山水画意共生。
▼项目概览,Project Overview © 共生风景
The establishment of the Visitor Center at the entrance of the Qinglong Mountain Tourist Resort, currently under construction, represents an effort to integrate the natural landscape and cultural elements of this area. It features a large water surface that reflects the mountains and buildings, an outdoor gallery resembling a mountain frame, dragon-shaped structures connecting both sides of the mountains, and the inclusion of attractions like the Menghu Fun Park and a stage to enhance its popularity. The symbiotic architecture team takes inspiration from traditional Feng Shui layouts, poetically arranging symbolic elements to harmonize tourism facilities with the picturesque landscape.
▼康县游客中心布局分析,Layout analysis © 共生风景
▼水边的”蛟龙“建筑,The “dragon” building by the water © 共生风景
▼建筑昂首摆尾向山延伸,The building runs up and down the hill © 共生风景
传统转译
Traditional Translation
蜿蜒起伏的整体线性瓦面屋顶;弯折自然形成的南北院落;由“廊”、“架”、“间”、“榀”传统木构发展出来的空间组合及构筑方式;瓦顶、石木墙及台阶三段式的建筑立面形式,皆与当地民居建筑神似,却也进行了当代化的转译。游客大厅背面布置为旅游展厅,屋顶转化为观景平台,此处汇集三面坡顶下来的雨水,设计师将水汇合进从山上引来的自然河水中,一起流入大水池,设计了立面瓦墙、龙头吐水和块石散置等元素。这里也成为向“四水归堂”等传统空间致敬、建筑与自然共生的“天水庭院”。
▼连接山水的场域,Fields connecting mountains and rivers © 共生风景
The undulating linear tiled roofs, the naturally curved north and south courtyards, the spatial combinations, and construction methods derived from traditional wooden structures known as “lang,” “jia,” “jian,” and “pin,” as well as the three-tiered architectural facade of tiled roofs, stone and wood walls, and steps, all bear a resemblance to local vernacular architecture while undergoing contemporary reinterpretation. Behind the visitor hall, an exhibition space is arranged, with the roof transformed into an observation platform. Rainwater from the three-sloped roofs is collected here, and the designers channel it into the natural river coming from the mountain, flowing into a large pool. Elements like facade tile walls, water-spouting dragon heads, and scattered rocks are integrated. This space pays tribute to traditional concepts like “returning to the hall of four waters” and exemplifies the coexistence of architecture and nature, known as the “Heavenly Waters Courtyard.”
▼回应青龙山的游客中心,the visitor center responding to Qinglong Mountain © 共生风景
▼自然河水边的建筑,The buildings by the natural river © 共生风景
▼建筑连接两岸山势,The building connects the mountains on both sides © 共生风景
▼临水台阶与开放的建筑外廊,Water steps and open building verandas © 共生风景
▼台阶与水的互成关系,The interaction between the steps and the water © 共生风景
▼透过框景亭廊看建筑,Looking at the building through the framed pavilion gallery © 共生风景
居游聚落
Residential Tourism Settlement
屋顶的高低起伏,让其下的空间可操作为一种丰富的状态,成为一个开合有度的聚落。建筑榀架的“廊”为交通空间,由楼梯和廊子形成,上下左右游动,串起各处功能房间和平台,设计师称之为空间之间的“双龙戏珠”。有屋檐、廊、及体块之间的虚空间,包括龙尾部分开放的观演台阶空间,组成一个变化丰富的开放系统。整个建筑以一种易识别、开放、谦和、景观丰富多变的姿态迎接到访的游客们。
▼康县游客中心部分手稿,Part of the manuscript © 房木生
The varying heights of the roof create a dynamic and flexible space underneath, forming a well-organized settlement. The “lang” created by the architectural structure serves as a traffic space, composed of stairs and corridors that move up, down, left, and right, connecting various functional rooms and platforms. The architects refer to it as the “Double Dragons Playing with Pearls” among spaces. The voids between eaves, corridors, and structural elements, including the partially open performance observation platform resembling a dragon’s tail, create a diverse open system. The entire building welcomes visitors with a recognizable, open, humble, and visually rich attitude.
▼建筑弯折形成南北两个庭院,The building bends to form two courtyards © 共生风景
▼错落的屋顶形态向山地民居致敬,The scattered roof forms pay homage to the mountain dwellings © 共生风景
▼“廊”、“架”空间组合形成的丰富形态,The rich form formed by the combination of “gallery” and “shelf” space © 共生风景
▼柱间灰空间,Gray space between columns © 共生风景
▼临水的“天水院落”,The “Tianshui Courtyard” by the water © 共生风景
▼游龙似的屋顶院落,The courtyard with the roof like a swimming dragon © 共生风景
▼蜿蜒的建筑形成院落,Winding buildings form courtyards © 共生风景
▼以一棵七叶大树(当地称为菩提树)开始的庭院空间,A courtyard space that begins with a buckeye tree (locally known as the bodhi tree) © 共生风景
▼游客大厅外墙,Outside wall of visitor hall © 共生风景
▼吐水龙头,The faucet © 共生风景
表意建筑
Expressive Architecture
作为一个面向普罗大众的游客中心建筑,建筑师直面“表意建筑”,让建筑以民众易亲近识别的形态出现。在青龙山旅游区的上位规划中,“龙”文化以“蛟龙在水”、“见龙在田”、“游龙在山”等分段表述。因此在“蛟龙在水”位置,建筑师直接以空间形态答题。建设过程和建成后,收到了领导及普通大众的盛赞,雅俗共赏之。
▼康县游客中心功能体块分析图,Analysis diagram © 房木生景观.
As a visitor center intended for the general public, the architects embrace the concept of “expressive architecture,” presenting the building in a form that resonates with the public’s understanding. In the upper-level planning of the Qinglong Mountain tourism area, the “dragon” culture is segmented into phrases such as “dragon in the water,” “dragon in the field,” and “dragon in the mountains.” Therefore, in the “dragon in the water” location, the architects directly express this concept through the spatial form. The construction process and the completed building have received praise from leaders and the general public, making it both elegant and accessible to all.
▼开放的院落空间,Open courtyard space © 共生风景
▼尾部开放的观演空间,Open viewing space at the end © 共生风景
▼建筑开放的灰空间,The building’s open grey spaces © 共生风景
▼廊架形成的开放灰空间,Open grey spaces formed by pergolas © 共生风景
▼游客大厅入口室内,Entrance of the visitor hall © 共生风景
▼游客大厅室内,Inside the visitor hall © 共生风景
▼路边的建筑夜景,Night view of roadside buildings © 共生风景
▼“龙尾”部分成为社区露天电影观影场,The “Dragon’s tail” part becomes a community open-air movie theater © 共生风景
▼汇集屋顶排水及上游河水的“天水”院落,The “Tianshui” courtyard, which collects roof drainage and upstream river water © 共生风景
▼游客大厅外景,Exterior view of visitor hall © 共生风景
▼康县游客中心建筑及环境平面图,Site plan © 房木生景观.
▼康县游客中心总平面图,Master plan © 共生建筑
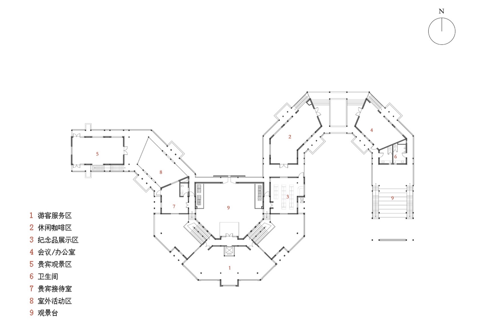
▼康县游客中心首层平面图,Ground floor plan © 共生建筑
▼康县游客中心二层平面图,Upper floor plan © 共生建筑
▼康县游客中心立面图,Elevations © 共生建筑
▼康县游客中心剖面图,Sections © 共生建筑
▼康县游客中心剖面图,Sections © 共生建筑
Project Name: Kang County Comprehensive Tourism Visitor Center
Project Location: Wuba Village, Changba Town, Kang County, Longnan City, Gansu Province
Project Duration: 2022-2023
Building Area: 2045 square meters
Owner: Culture, Sports, Broadcasting, Television and Tourism Bureau of Kang County
Design Firm: Farmerson Architects Symbiotic Architecture Design (Beijing) Co., Ltd.
Design Contents: Architecture, interior, and signage system
Chief Architect: Musheng Fang
Design Project Team: Yaling Su, Guo Huang Han, Kunpeng Wang, Lin Xiu, Jiale Ma, Jingye Yan, Yunfei Zhao, Xuefeng Bai, Fang Liu, Yumin Liu, Huan Liu
Landscape Design Firm: Farmerson Landscape Design (Beijing) Co., Ltd.
Construction Drawing Partner: Beijing Huaju Architectural Planning Design Institute Co., Ltd.
Construction Firm: Yin Guangsha Group Co., Ltd.
Building Materials: Steel, imitation wood aluminum plate, grey-black glazed tiles, glass, sandstone, granite, inorganic terrazzo, exterior wall paint, etc.
Photography: Farmerson Art
客服
消息
收藏
下载
最近



















































