查看完整案例

收藏

下载
项目背景 Background
自 2013 年宁夏美术馆项目启动至今土建竣工,已过了接近十载时光,她的建成填补了宁夏省级美术馆长期缺失的状态,为宁夏今后艺术的传播与发展提供了高品质的展示及研究空间。
Nearly a decade has passed since the project of Ningxia Art Museum was launched in 2013. This building has filled the long-term blank of provincial level art museum in Ningxia and provided a high-quality exhibition and research space for the future propaganda and development of art in Ningxia.
▼南侧鸟瞰图,Aerial view from south © 根本堂建筑摄影
宁夏美术馆位于银川市金凤区,是北部新城东西向公共活动轴线的起点。基地周边空间十分开阔,基地北侧隔街相望的是拥有巨大体量的银川市民中心。宁夏美术馆的设计以巨石体量回应了周边的环境以及宁夏本土的地域文化。
Located in Jinfeng district of Yinchuan City, Ningxia Art Museum stands at the starting point of the east-west public activity axis of North New Town. The site is surrounded by open space in three directions and across the street from the north side of which is the Yinchuan Civic Center of a large scale. Representing a stone volumn, the Ningxia Art Museum responds to the site environment and the regional culture.
▼入口广场,Entry plaza© 根本堂建筑摄影
▼北侧立面,North facade© 根本堂建筑摄影
▼东侧立面,East facade© 根本堂建筑摄影
建筑立意 Design Determination
古时先民刻印于贺兰山岩壁之上的岩画经过数千年时间的沉淀,逐渐成为宁夏不可缺少的文化与艺术的组成部分,贺兰山也因此成为了宁夏文化艺术的天然载体及象征。设计取意贺兰山石,便是希望建筑本身能承载宁夏厚重的文化底蕴及精神力量。建筑形象上提取贺兰山石粗犷有力的形态特征,通过五个山石体量的组合,呈现出富有张力的建筑形态。使得美术馆本身成为一件城市中的公共雕塑,并在巨大尺度的环境中塑造了新的精神锚点。
After thousands of years of precipitation, the rock paintings engraved on the rock wall of Helan Mountain have gradually become an indispensable part of regional culture and art in Ningxia, and Helan Mountain has thus become the natural carrier and symbol of Ningxia culture. The design imitates Helan Mountain stone to carry the thick cultural deposits and spiritual strength of Ningxia, extracting the architectural image from the rugged and powerful form characteristics of Helan mountain stone. Through the combination of five mountain stone volumes, the architectural form with rich tension is presented, making the museum itself a public sculpture in the city and shaping a new spiritual anchor in a larger scale environment.
▼东南鸟瞰图,Aerial view from southeast© 根本堂建筑摄影
▼立面细节,Facade view© 根本堂建筑摄影
▼屋顶细节,Roof close-up view© 根本堂建筑摄影
建筑生成 Museum generation
建筑设置于场地南侧,通过室外展场与北侧道路衔接。建筑西北角的入口广场衔接来自北侧公共轴线的人流,通过景观的引导到达美术馆入口。建筑以一块完整巨石为初始形体,通过分裂巨石从而形成多个建筑体量,对应西北向的人流打开入口设置中庭空间,并在空隙处通过屋顶及玻璃幕墙将建筑重新整合为一个完整形体,呈现出贺兰山石矗立于茫茫戈壁的写意景象。
▼形体生成-动图,Massing ©筑境设计
The museum is located on the south side of the site and connected to the road at north through the outdoor exhibition area. The entrance square in the northwest corner of the museum connects the circulation of visitors from the public axis in the north and reaches the entrance of the museum through the guidance of landscape. The museum takes a complete boulder volume as the initial form, and forms multiple building volumes by splitting the boulder, which opens the entrance and sets up the atrium space corresponding to the visitors from northwest, and reintegrates the building into a complete form through the roof and glass curtain wall in the gap, presenting the freehand scene of Helan Mountain stone standing in the vast Gobi Desert.
▼美术馆局部鸟瞰,Aerial partial view© 根本堂建筑摄影
▼美术馆主入口,Main entrance© 根本堂建筑摄影
▼美术馆次入口,The secondary entrance© 根本堂建筑摄影
▼美术馆过厅空间,Hallway© 根本堂建筑摄影
室内空间 Interior Space
建筑室内与室外浑然一体,山石的体量既是外部形象的呈现,同时也延续到建筑内部空间。在山石形体组合后自然形成的空隙之中,创造了多样的峡谷空间,形成山、谷相依之态。展厅体量之间的空间曲折狭长而高耸,峡谷之间通过不同高度平台的多维穿插,营造出丰富的空间效果,并形成环状的参观流线,同时使得每个展厅出口处均设置有休息空间供人停留。
The interior and exterior space of the museum are integrated, and the volume of the rock is not only the external presentation, but also extends to the internal space. In the natural gap space left by the combination of rock volumes, a variety of canyon spaces are created, forming a corridor of interdependence as between mountains and valleys. The space between the exhibition volumes is zigzag, narrow and high. The multi-dimensional interleaving of platforms of different heights between the rocks creates a rich spatial effect, and forms a circular visiting circulation. At the same time, there is a rest space at the exit of each exhibition hall for people to stay.
▼峡谷空间,Canyon spaces© 根本堂建筑摄影
▼峡谷之间通过不同高度平台的多维穿插,营造出丰富的空间效果,The multi-dimensional interleaving of platforms of different heights between the rocks creates a rich spatial effect© 根本堂建筑摄影
▼楼梯,Staircase© 根本堂建筑摄影
峡谷在入口处放大形成恢宏大气的中庭空间,满足开幕式等重要活动的举办要求。公共服务及培训区则以流动的曲线与硬朗的山石体量形成对比,结合半月形的纯白吊顶,营造自由浪漫的空间形态。艺术家沙龙融合室外庭院,打造舒适的交流氛围,并与外部城市空间及贺兰山形成对话。
The canyon space enlarges at the entrance to form a grand atrium space to meet the requirements of important activities such as the opening ceremony. The public service and training area is in flowing curved space in contrast to the hard rock volume, combined with the half-moon shaped pure white ceiling, creating a free and romantic atmosphere. The artist salon integrates the outdoor courtyard to create a comfortable atmosphere of communication and dialogue with the external urban space and Helan Mountain.
▼中庭空间,Atrium© 根本堂建筑摄影
建筑细节 Details
建筑造型力求简洁,同时注重细节的设计。三角形作为建筑的母题贯穿于整个设计之中。建筑体量通过切割形成多个三角形的折面,强化山石体量感。在公共服务区体量顺应墙面形态结合内部功能,形成渐变的三角窗。南侧大面积的三角窗为办公及画室空间提供了良好的采光条件。屋顶上的三棱锥天窗呈现出蕴含几何韵律的图案感,同时还也承担着中庭采光的功能。立面石材上手工凿出的条状刻痕呈现出的质感,与大面积玻璃幕墙平整表面的对比更强化了山石形态的粗犷。室内空间的石材面上嵌入错落窄长的磨光石材,丰富墙面的肌理,呈现更为亲人的立面尺度。
▼三角形作为建筑的母题贯穿于整个设计之中© 根本堂建筑摄影
The triangle as the motif of the building runs through the whole design.
The architectural form strives for simplicity, while paying attention to the design of details. The triangle as the motif of the building runs through the whole design. The main volume is cut to form a number of triangular folding surfaces to strengthen the sense of rock. In the public service area, the volume conforms to the wall shape and combines internal functions to form a gradual triangular window. The large triangular window on the south side provides good light for the office and studio space. The triangular pyramid skylight on the roof presents a sense of pattern with geometric rhythm, and also assumes the function of lighting the atrium. The texture of the hand-chiseled strip score on the facade stone shows the contrast with the flat surface of the large area glass curtain wall, which strengthens the rough shape of the rock. The stone surface of the interior space is embedded with narrow and long polished stone materials, which enriches the texture of the wall and presents a more relatives facade scale.
▼立面近景,Facade© 根本堂建筑摄影
▼立面细节,Facade detailed view© 根本堂建筑摄影
▼立面石材上手工凿出的条状刻痕呈现出的质感,The texture of the hand-chiseled strip score on the facade stone© 根本堂建筑摄影
▼屋顶上的三棱锥天窗呈现出蕴含几何韵律的图案感,The triangular pyramid skylight on the roof presents a sense of pattern with geometric rhythm© 根本堂建筑摄影
光的应用 Application of light
美术馆公共空间与自然光线产生了良好的互动。峡谷侧面缝隙中渗透进来的阳光随不同季节、不同时间变换位置,生动地勾勒出山谷形态。屋顶天窗处投下的光影如同透过云层的阳光在山谷中游走,为室内空间更增添了一份趣味。
The public space of the museum has a good interaction with natural light. The sunlight that permeates the gap in the side of the canyon changes shades with different seasons and different times, vividly delineating the shape of the valley. The light cast by the skylight on the roof is like the sunlight swimming through the clouds in the valley, which adds energetic relish to the interior space.
▼中庭空间,Atrium space© 根本堂建筑摄影
▼建筑光影,Sunlight© 根本堂建筑摄影
▼光影随一天中的时间变化,The interaction with natural light during the day© 根本堂建筑摄影
平面功能 Program settings
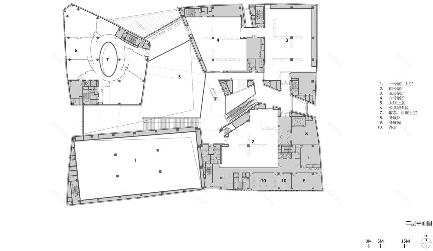
一个优秀的美术馆既需要大量多样的展示空间,也需要完善的配套功能。在外部起伏多变的建筑形态之下,宁夏美术馆提供了十个形态规整的展厅空间,充分满足各式布展的要求。展厅分别设置于建筑一至三层,其中建筑一层设置三个展厅,包含一个 1200㎡、8 米净高的高大展厅,为大型美术作品提供了极好的展示空间,并能激发艺术家们为此空间创作新的形式的作品。二层的三个展厅及三层的四个展厅均围绕公共平台设置,各个展厅既可组合观展也可独立使用,赋予了布展良好的自由度,避免在个别展厅布展时对于其他展览的干扰。地下一层的典藏库设置了纸本、油画、杂件等多个专用仓库,配备先进的储藏及设备系统,为美术作品的储藏维护提供了专业的保障。
▼一层平面,Plan level 1 ©筑境设计
An excellent art museum needs not only diverse exhibition spaces, but also perfect supporting functions. Under the undulating architectural form, Ningxia Art Museum provides ten exhibition halls with regular forms, which fully meet the requirements of various exhibition arrangements. The exhibition halls are set on the first to third floors of the building. Among them, there are three exhibition halls on the first floor of the building, including a tall exhibition hall with 1200 square meters and 8 meters clear height, which provides an excellent exhibition space for large-scale art works and can inspire artists to create new forms of works for this space. The three exhibition halls on the second floor and the four exhibition halls on the third floor are arranged around the public platform, and each exhibition hall can be combined for viewing or used independently, which gives a good degree of freedom for the exhibition arrangement and avoids the interference of other exhibitions when arranging exhibitions in individual exhibition halls. The collection on the ground floor is equipped with several special warehouses such as paper, oil painting and miscellaneous pieces, which are equipped with advanced storage and equipment systems to provide professional protection for the storage and maintenance of art works.
▼艺术家沙龙,Art salon© 根本堂建筑摄影
▼恒温恒湿库房,Storage with constant temperature and humidity© 根本堂建筑摄影
▼油画库,Oil painting storage© 根本堂建筑摄影
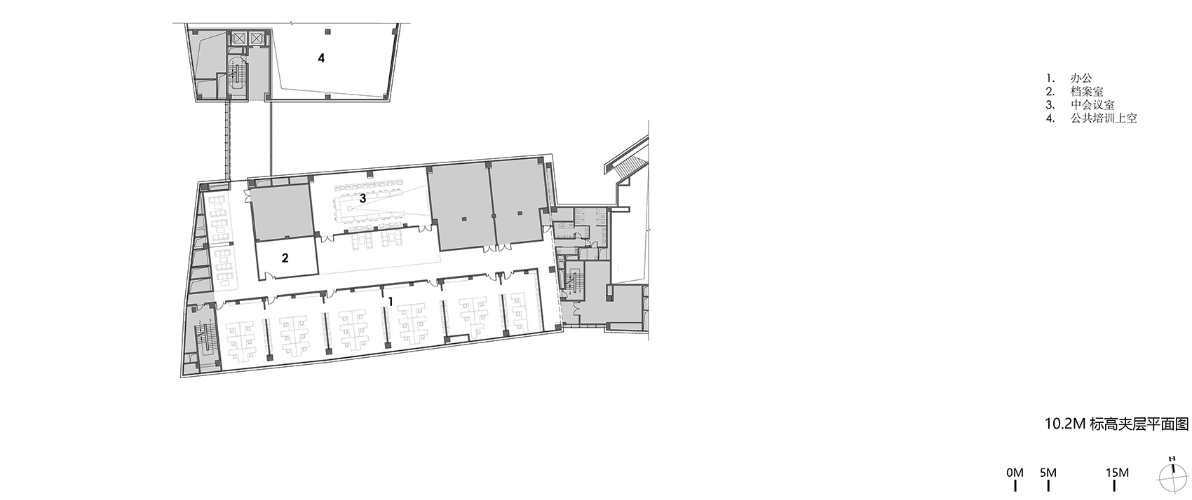
美术馆内同时设置了完善的配套功能,西北角的体量内垂直组合了服务大厅、咖啡厅、公共培训、艺术沙龙及城市观景平台,为美术馆后期运营提供良好的支撑。自成一体的布局可在美术馆功能关闭的情况下灵活独立使用。同时在一层北侧还设置了 200 人多功能厅,方便学术交流会的举办。
At the same time, the museum is equipped with perfect supporting facilities. The northwest corner of the volume vertically combines the service hall, cafe, public training space, art salon and urban viewing platform all together, which provides good support for the later operation of the museum. The self-contained layout can be used flexibly and independently when the museum functions are closed. At the same time, a 200-person multi-function hall is set up on the north side of the first floor to facilitate academical conference.
▼公共服务区,Public service area© 根本堂建筑摄影
▼东侧立面夜景,East facade by night© 根本堂建筑摄影
▼西北鸟瞰,Aerial view from northwest© 根本堂建筑摄影
▼总平面图,Site plan © 筑境设计
▼一层平面,Plan level 1© 筑境设计
▼二层平面,Plan level 2© 筑境设计
▼三层平面,Plan level 3
© 筑境设计
▼3.6m 标高夹层平面,Plan Mezzanine – 3.6m© 筑境设计
▼10.2m 标高夹层平面,Plan Mezzanine – 10.2m© 筑境设计
▼19.2m 标高夹层平面,Plan Mezzanine – 19.2m© 筑境设计
▼负一层平面,Plan basement floor© 筑境设计
▼立面图,Elevations© 筑境设计
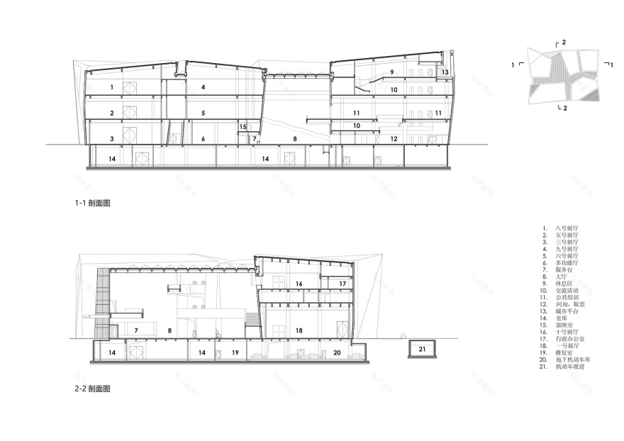
▼剖面图,Sections© 筑境设计
客服
消息
收藏
下载
最近




























































