查看完整案例

收藏

下载
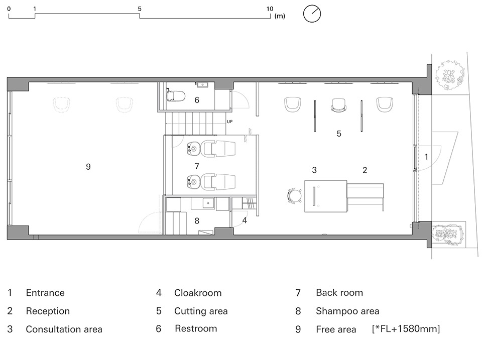
项目位于日本奈良北葛城郡,主入口位于店铺北侧,面向一条城市主干道,室内空间宽敞开放,以可观的天花板层高为特色。沙龙的南端有一个高出主楼层1.58米的夹层空间,空间后部的高窗勾勒出天空的轮廓。设计的核心理念旨在充分利用现有空间,将美发沙龙的功能合理排布在建筑从北到南的整个进深长度中。
The north entrance faces a main road and features a wide, open space with high ceilings. The south end of the salon has a mezzanine level that rises 1580mm above the main floor. From the high windows, cutout views of the sky are visible. We designed this salon to take full advantage the space, which occupies the full length of the building from north to south.
▼沿街立面,exterior view of the salon ©Takumi Ota
在立面与室内空间之间,一堵与夹层高度相同的墙体界定出剪发区域的范围。这种设计不仅阻挡了来自主干道的视线,同时允许自然光从上方的高窗照射进来。
Between the façade and interior, a wall that is the same height as the mezzanine delineates the cutting area. This blocks the line of sight from the main road while still letting in natural light from above.
▼室内空间概览,Overall of the interior ©Takumi Ota
▼由夹层望向街道,viewing the street from the mezzanine ©Takumi Ota
靠近天花板的位置,几条悬挂着的线绳贯穿了整个空间,这些绳子具有多重功能,不仅可以悬挂理发所需的造型镜,同时也起到了固定理发区两侧的木制屏风的作用。相互平行的东西两侧墙面采用了极浅的色调,两种色调有着微妙的差别却又相互补充。当人们望向造型镜时,细微的颜色变化创造一种别样的感受,就如同凝视着平静的水面。
Messenger wires strung near the ceiling run longways into the space, serving as hangers for mirrors and partitions. The wires can be used for a variety of purposes. The parallel east and west walls are rendered a pale, complementary color. When gazing into the styling mirror the change in color creates a memorable sensation akin to that of looking at the surface of water.
▼由夹层望向理发区,viewing the cutting area from the mezzanine ©Takumi Ota
▼理发区,the cutting area ©Takumi Ota
▼造型镜悬挂在靠近天花板的绳子上,the mirrors area suspended by the wire near the ceiling ©Takumi Ota
▼分隔理发站台的木制屏风,wooden screen separating the barber station ©Takumi Ota
▼细部,details ©Takumi Ota
▼由夹层望向接待柜台,viewing the counter from the mezzanine ©Takumi Ota
▼接待柜台,the counter ©Takumi Ota
继续往室内走去,洗发区位于夹层以及与夹层等高的木制隔墙之间,如同一处安静清幽的山谷。洗发区两侧封闭的“盒子”空间中则容纳了洗手间与后勤用房。这种布局保留了场地南北的通透性,使整个室内空间开放流动,同时也造就了理发店标志性的特征。
Further into the interior, the shampoo area is housed between the wood-paneled wall and mezzanine, which are the same height. The valley becomes a calm and tranquil space. The shampoo area is flanked by the restroom and back room, both boxy, enclosed spaces. This placement preserves the location’s north-south open flow, one of its defining characteristics.
▼理发区后方的木制隔墙与夹层等高,the wood-paneled wall and the mezzanine are same height ©Takumi Ota
▼洗发区,the shampoo area ©Takumi Ota
▼由洗发区看夹层,viewing the mezzanine from the shampoo area ©Takumi Ota
沙龙后端的夹层作为工作室空间,用于拍摄沙龙的发型设计作品。此外,这里也可以作为画廊使用,悬挂在空间中的缆绳为扩展沙龙未来的功能空间提供了巨大的可能性。沙龙logo与柜台的设计灵感取自夹层“抬升/上升”的空间意向,这种意向具有十分积极的主题内涵。
The mezzanine level in the back of the salon services as a studio space to photograph the salon’s hair designs. It could also be a gallery. Messenger wires allow for the future expansion of the salon’s functional space. We designed the salon’s logos and counters with the mezzanine’s step up/level up in mind, a motif with a positive connotation.
▼夹层入口,entrance of the mezzanine ©Takumi Ota
▼夹层,the mezzanine ©Takumi Ota
沙龙的名字“欢笑”(Laughter)反映出业主的理想,他希望这里能够成为一处充满欢笑和快乐的地方。自Laughter美发沙龙开业以来,慕名而来的顾客络绎不绝。
The salon’s name “Laughter” reflects the owner’s ideal of making the salon a place that engenders smiles and joy. Fittingly, the salon has been busy with clients since it opened.
▼沙龙logo,salon’s logo ©Takumi Ota
▼平面图,plan ©SIDES CORE
客服
消息
收藏
下载
最近






























