查看完整案例

收藏

下载
项目概况
Project overview
项目位于杭州,坐落在武林路老街区的住宅底层。设计从环境出发,思考理发店和街区的关系,希望在空间和视觉上呈现良好的交互性。
Located in Hangzhou, the hair salon is on the ground floor of the house in the old block of Wulin Road. Starting from the environment, the design considers the relationship between the hair salon and the block, hoping to show good interactivity in space and vision.
▼总体外观鸟瞰,general bird-eye’s view of the project ©云眠摄影工作室
街道的自我呈现
Self-presentation of the street
对外,强调空间的通透感和开放性,利用整面落地玻璃将街景最大限度引入室内,模糊室内外空间界限。对内,探索环境和场所在室内空间中的自我映射,通过玻璃砖和镜子的透射、反射呈现街道景象,加强室内外空间的关联性和渗透性。理发过程就是街道行为表现的一部分,理发环境呈现得也正是街道当下的表情。在这里,功能属性不再是空间目的,而是像镜子一样让人与场所环境的产生趣味互动,以此激发街道活力。
▼设计理念,design concept ©MAI建筑设计事务所
Externally, it emphasizes the transparency and openness of the space, and uses the whole floor-to-ceiling glass to bring the street view into the interior as much as possible, blurring the boundary between indoor and outdoor space. Internally, the self-mapping of the environment and place in the interior space is explored, and the street scene is presented through the transmission and reflection of glass bricks and mirrors to strengthen the relevance and permeability of the interior and exterior space.The process of hairdressing is part of the behavior of the street, and the hairdressing environment represents the current expression of the street. The functional attribute is no longer the spatial purpose, but the interesting interaction between people and the place environment like a mirror, so as to stimulate the vitality of the street.
▼项目立面,facade of the project ©云眠摄影工作室
建筑立面顺应原有结构做了造型处理,整体喷涂米白色真石漆,搭配超白玻璃、拉丝不锈钢和绿色转灯。门头的U型玻璃内预埋灯箱,到了夜晚像一个白色的发光玻璃盒伫立在街道上,轻盈通透,与周边店铺形成强烈对比。
The facade of the building is modeled in accordance with the original structure. The whole building is painted with off-white stone-like coating,and it also matched with ultra white glass, brushed stainless steel and green rotating lights. The light box embedded in the U-shaped glass at the facade, standing on the street like a white luminous glass box at night, which is light and transparent and forms a strong contrast with the surrounding shops.
▼入口,the entrance ©云眠摄影工作室
利用圆弧造型和顶部挑檐限定门厅空间,入口为一扇1.1mx2.9m的自动玻璃移门。光线和街景透过门厅灰空间自然渗透进入室内,室内室外通过这种点到为止的方式划分开。
The hall space is limited by arc shape and top cornice, and the entrance is a 1.1mx2.9m automatic glass sliding door. Light and street view naturally penetrate into the interior through the gray space of the foyer, and the interior and exterior are divided by this approach.
▼入口休息区,rest area of the entrance ©云眠摄影工作室
白色玻璃盒的空间表达
Space expression in white glass box
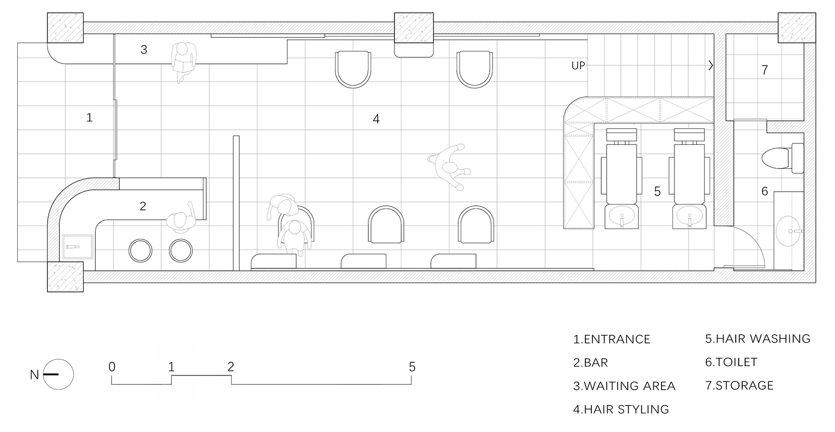
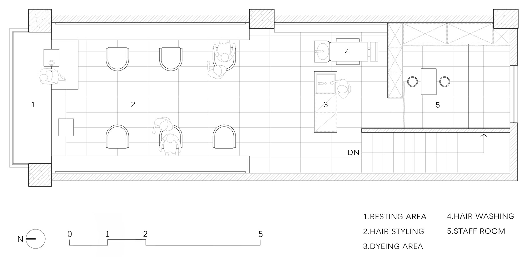
理发店是一个4.0mx12.5m的条形方盒,一层容纳了前台、休息区、理发区和配套服务储藏空间,二层设置了染发区、调染区和员工休息区。
The hair salon is a 4.0mx12.5m square bar box. The first floor contains the front desk, rest area, haircut area and storage space for supporting services. The second floor is set up with hair dyeing area, dye mixing area and staff rest area.
▼一层理发空间,hair salon on the first floor ©云眠摄影工作室
室内空间将外部的米白色真石漆延续进来,搭配大理石、芸香木和不锈钢扶手。镜子延展了理发区域的视觉广度,球形壁灯、条状线灯和透光灯膜形成丰富的灯光层次,与大理石基座、台面、镜子构成不同材质的点线面组合。
The interior space continues off-white stone-like coating on the outside, with marble, rue wood and stainless steel handrails. The mirror extends the visual breadth of the haircut area. The spherical wall lamp, strip line lamp and transparent light film form a rich light level, and the marble base, table and mirror form a combination of different materials.
▼镜中的反射,reflection in the mirror ©云眠摄影工作室
▼洗发区视角,view from the wash area ©云眠摄影工作室
大理石座椅纵向延伸,丰富室内外空间渗透体验,为街道提供短暂停留的可能性。
The marble seats extend longitudinally, enriching the indoor and outdoor space penetration experience, and providing the possibility of short stays for people in the street.
▼材料交织,material interweaving ©云眠摄影工作室
二层休息区的超白玻璃给室内空间带来充足的阳光,光影变化让空间由静入动,随时间变换着生机。街道丰富的景象沿着镜面向室内渗透、延展,成为人们活动的背景。此时,理发过程就是街道行为表现的一部分,理发环境呈现得也正是街道当下的表情。
The ultra-white glass in the rest area on the second floor introduces plenty of sunlight to the indoor space,and the dynamic play of light and shadows changes over time.The rich scene of the street penetrates and extends along the mirror to the interior, becoming the background of people’s activities. At this time, the hair-cutting process is a part of the street behavior, and the environment is also the current expression of the street.
▼街道景象的自我呈现,self-presentation of the street scene ©云眠摄影工作室
▼可移动木质边几,movable side table ©云眠摄影工作室
相邻建筑的玻璃窗经过光照形成反射,在米白色的外立面上留下痕迹。这种“绿色流光”会随着时间不断变换,自然地形成了街道的微表情。
The windows of the adjacent buildings reflect the light, leaving traces on the off-white facade.This “green light” will constantly change over time, naturally forming the micro-expression of the street.
▼门厅细节,foyer detail ©云眠摄影工作室
▼玻璃砖在夜间呈现外部街道的灯光反射,形成可变肌理
the light of the street reflects on the glass bricks at night, creating a variable texture ©云眠摄影工作室
▼一层平面图,first floor plan ©MAI建筑设计事务所
▼二层平面图,second floor plan ©MAI建筑设计事务所
▼剖面图,section ©MAI建筑设计事务所
客服
消息
收藏
下载
最近


























