查看完整案例

收藏

下载
宜兴书屋位于宜兴市丁蜀镇,是古南街游览路线的末端节点。项目的建成为古南街西侧区域提供了一个公共休闲活动场所,一定程度改善设施落后的居民区生活品质。
▼视频,Video © 时差影像
Located in Dingshu, Yixing, the bookstore is the end note of the tour-route of Gunan Street. The project provides a public space on the west side of Gunan Street and improves the quality of life in communities with outdated facilities to a certain extent.
▼项目概览,Overall view © 时差影像
尽管基地周边大多都是破败的低层坡屋顶建筑,但清晰地展现了当地传统民居中山墙与木结构之间的关系。
Although around the site are dilapidated low-rise pitched roof house, they clearly show the relationship between the gables and wooden structures in the local traditional houses.
▼场地鸟瞰,Aerial view © 时差影像
▼沿公路鸟瞰,Aerial view along the road © 时差影像
方案希望从传统的木构、山墙和坡屋顶的要素出发,结合场地中建筑之间的对位关系,试图以新的空间组织方式与建筑结构语言进行空间组织和转译,最终在多组屋架的纵向的并置排列中,体验穿越多个山墙过程中室内室外之间的整合关系。
▼设计示意,Analysis © 东南大学建筑学院 + 南京匡合国际工程设计有限公司
Responding to the relationship with the site, this project hopes to rethink and transform the traditional elements with new configuration of space and structure, which also contribute to the integrated experience between interior and exterior space when crossing a series of glabes.
▼书屋外观,Exterior view of the bookstore © 时差影像
▼户外空间,Outdoor area © 时差影像
▼一层檐廊,Veranda on the first floor © 时差影像
▼二层檐廊,Veranda on the second floor © 时差影像
此外,镂空的木格架取代实墙作为立面以及内部空间的分隔,既强化内部空间屋架和纵墙的关系,也成为空间穿越的引导线索。
In addition, the porous wooden shelves act as both facade elements and dividers, meanwhile, become the guiding clues of architectural experience.
▼镂空的木格架作为立面和内部空间的分隔 © 时差影像
The porous wooden shelves act as both facade elements and dividers
▼一层室内,First floor space © 时差影像
▼从二层俯视一层,Overlook to the first floor © 时差影像
▼一层简餐厅,Dining area on the first floor © 时差影像
▼一二层空间关系,The relationship between the two floors © 时差影像
▼二层空间概览,Second floor © 时差影像
▼从室内望向室外露台,View to the outdoor terrace © 时差影像
宜兴丁蜀镇作为著名的“陶都”,建筑在材料的使用上常出现陶罐的元素,其与不同类型的石材通过不同的堆砌方法形成独特的墙体肌理。项目也通过使用这种材料与肌理塑造方式作为对场地回应的方式之一。
As a famous “pottery city”, pottery pots are often used as building materials in the dwellings of Dingshu Town. These pottery pots combine different types of stone to form a unique wall texture through different stacking methods. The project also used this material and texture as one of the ways to respond to the site.
▼陶罐元素和石材形成独特的墙体肌理,The pottery pots combine different types of stone to form a unique wall texture © 时差影像
▼轴测图,Axon © 东南大学建筑学院 + 南京匡合国际工程设计有限公司
▼总平面图,Site plan © 东南大学建筑学院 + 南京匡合国际工程设计有限公司
▼一层平面图,First floor plan © 东南大学建筑学院 + 南京匡合国际工程设计有限公司
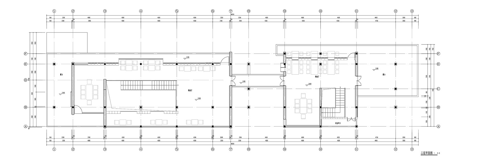
▼二层平面图,Second floor plan © 东南大学建筑学院 + 南京匡合国际工程设计有限公司
▼立面图,Elevation © 东南大学建筑学院 + 南京匡合国际工程设计有限公司
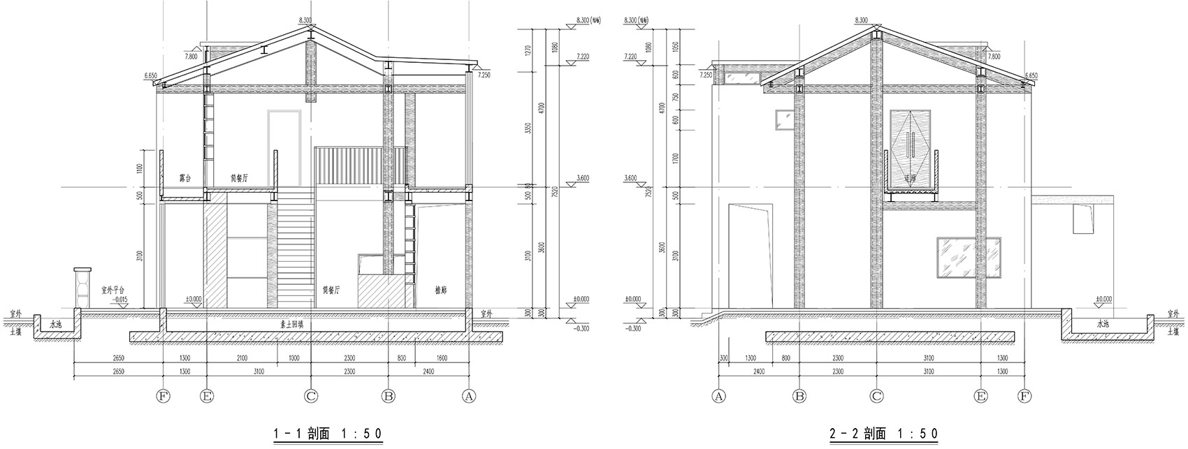
▼剖面图,Sections © 东南大学建筑学院 + 南京匡合国际工程设计有限公司
▼结构细部,Detail © 东南大学建筑学院 + 南京匡合国际工程设计有限公司
客服
消息
收藏
下载
最近

































