查看完整案例

收藏

下载
设计初衷
Project Initiative
BWAO之前做过项目的模型漂泊在外,一直想重新回到胡同的氛围中。这次设计初始就是给这些模型在胡同中找一个家。
BWAO’s collection of previous project models was in a nomadic state and had always desired to find a home back into the hutong area. The project initiative started with the idea of bringing them back.
▼模型在胡同中的家,model house in hutong ©鲍威建筑工作室
改造背景
Background
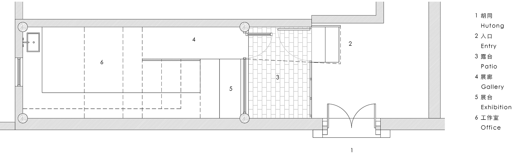
28号院是靠近南半截胡同南口的一间独立院子。院子主体结构为一间五开间的北房,每个开间3米面宽,却有着近7米的进深,因而屋脊梁下室内净高达到了5米,为模型储藏展示提供了理想空间。本次改造范围为进院门后的第一开间,其余开间有居民居住。
▼区位图,location ©鲍威建筑工作室
No.28 is an independent courtyard that is sited close to the southern end of Nanbanjie Hutong. The only building in the courtyard is a single house that has five units, each of which is 3m in width and 7m in depth, a dimension rarely seen in courtyard houses. As a result, the clearance under the roof ridge reaches 5m in height, perfect for storage and display. The rest of the units are still occupied with local residents.
▼由庭院望向周围环境,surroundings from patio ©鲍威建筑工作室
▼由入口望向庭院,patio from entrance ©鲍威建筑工作室
▼屋檐细部,details ©鲍威建筑工作室
剖面与立面的挑战
Section and Elevation Challenges
本次设计出发点为对胡同房子剖面与立面应用场景的挑战。七个连续标高的平台被置入到空间中,形成了多层的建筑模型展览平台,第二层平台延展至室内,形成了工作台面,三四层平台延展成书架,整体空间形成了剖面模型展示与平面工作室的格局。立面为整扇可开启窗,当打开时,院子作为第八个标高纳入到剖面中来,完成了剖面从外到内,由下及上的连续变化,形成了与胡同房屋屋顶曲线呼应的走势。室内平台以及门窗雨棚都采用钢板与方钢焊制完成,外边统一刷水性灰色涂料,与胡同色彩协调。
▼立面图,elevation ©鲍威建筑工作室
▼剖面图,section ©鲍威建筑工作室
The design responds to sectional and elevational challenges to hutong houses. Seven consecutive levels of planes are introduced into the space, forming multiple platforms for models display, bookshelves and working tables, a layout that is exhibition in section and office in plan. The facade is a single window that opens fully to the patio, forming a glass canopy that covers the ground plane, blurring the inside and outside. This final sectional array condition echos the roof curve that is typical of a courtyard house.
▼室内一瞥,a glance to the interior ©鲍威建筑工作室
▼立面窗户整扇开启,the single window is fully open ©鲍威建筑工作室
▼模型空间,model space ©鲍威建筑工作室
▼模型空间背后的办公空间,working space behind model space ©鲍威建筑工作室
▼办公空间细部,details ©鲍威建筑工作室
节省预算的考虑
Built to a Budget
改造的许多设计决策都是出于预算的考虑:之前房屋拆除墙体垃圾回填成150高地面;原房屋立面拆除后被用作院门和栅栏;院子铺地为之前胡同改造项目拆除后回收留下来的老砖;工作室的凳子为隔壁胡同因疫情而关闭的饭店所赠等。这些元素都在新的项目中获得了新生,增加了胡同的故事性。
Several design decisions are made to a budget: the ground is infilled to a height with demolition debris; previous facade to the house is reused as frames for patio gate and fence; patio is paved with historical bricks recycled from a previous hutong project; the office stools are donated from a restaurant in the hutong that went bankrupt due to COVID. However, all these elements are reborn in the new project and add up to the richness of hutong story.
▼新旧元素,new and old elements ©鲍威建筑工作室
开放的课题
Ongoing Project
改造后的空间为2021年北京国际设计周提供了展览空间,成为水彩画家作品展出的场地,实现了空间多功能应用的场景。现有改造空间以及院子剩余空间如何被更好的利用将是在接下来几年中继续探讨的课题。
The newly renovated space debuted in Beijing Design Week 2021, providing exhibition space for a watercolor painter, fulfilling one of the scenarios that it was designed for. How it will be used otherwise, together with the rest of the courtyard when emptied out, is yet to be discussed in the years to come.
▼北京国际设计周展览,beijing design week exhibition ©鲍威建筑工作室
▼平面图,plan ©鲍威建筑工作室
客服
消息
收藏
下载
最近





















