查看完整案例

收藏

下载
今天的生产已经不仅仅是产品的生产,而同时是消费欲望和消费激情的生产,是消费者的生产。——鲍德里亚
Production today is not merely the production of products, but also the production of consumer desire and consumer passion as well as the production of consumers. —— Baudrillard
随着消费的迭代,消费者层级的持续异化,新的语汇以及新的符号不断被创造,继而被消费。上世纪六十年代,居伊·德波笔下的“景观构建已经成为消费主义社会的关键环节,物质生产方式中的决定性结构开始转向以影像方式为主导的景观生产方式。”而时隔五十年后,随着移动互联网的普及以及信息的爆炸使得景观的构建变得越来越快速,越来越多元;也使得每个到场的人已不仅仅是消费景观的参与者,同时也是景观的构筑者。
With the iteration of consumption and the continued alienation of consumer hierarchy, new words and symbols are continuously created and then consumed. In the 1960s, Guy Debord wrote that spectacle construction has become a key link in a consumerist society and the decisive structure in the mode of material production has started to shift to the image-oriented mode of spectacle production. 50 years later, the popularization of the mobile internet and the explosion of information make spectacle construction increasingly fast and diverse and make everyone present a participant and builder of consumption spectacle.
▼广州北京路店项目概览©曾喆 overview of the Beijing Road Store©ZENG Zhe
ZIPLAB 是“ONION GLOBAL 洋葱集团”业务生态下的跨境电商线下体验店,力图打造“年轻态”用户的潮红经济圈。广州北京路店和海口万达店两个门店作为同一个系列的呈现,旨在探讨当代语境下如何通过符号的暗喻、景观的构筑来建立人与商品的链接,人与人的交互,人与场景的融合,从而创造更大的流量价值和更具体验性的社交消费。
ZIPLAB is a cross-border e-commerce offline experience store within the business ecosystem of Onion Global and tries to create a brand-new economic circle for young users. Beijing Road Store in Guangzhou and Haikou Wanda Store, as the presentations of the same series, aim to explore how to build the link between people and products, establish the interaction between people and achieve the integration between man and scene, thus creating greater traffic value and generating more experiential social consumption, through symbols, metaphors and spectacle construction in the contemporary context.
▼海口店项目概览©曾喆 overview of the HaikouStore ©ZENG Zhe
跨境电商从线上走到线下,是一个类似于文件压缩的过程,需要在一定的空间里,尽可能装入多的商品和文化;而在实体店里,从线下的体验引导回线上的流量,则是一个解压的过程,这不仅使消费者了解到品牌背后强大的背书,还可以在线上给消费者提供更为海量的选择。
▼方案概念©加减智库设计事务所
Concept©PMT Partners
Cross-border e-commerce going from online to offline is a process similar to file compression, which needs to put as many as products and cultures as possible in a space; while in bricks-and-mortar stores, leading offline experience back to online traffic is a process of decompression, which makes consumers learn about the powerful endorsement behind the brand and offers consumers with more choices online.
▼广州北京路店门头外观©曾喆
Façade of the store ©ZENG Zhe
▼入口悬空的 LED 流媒体亚克力柱©曾喆
LED streaming acrylic column at entrance ©ZENG Zhe
广州北京路店
Beijing Road Store, Guangzhou
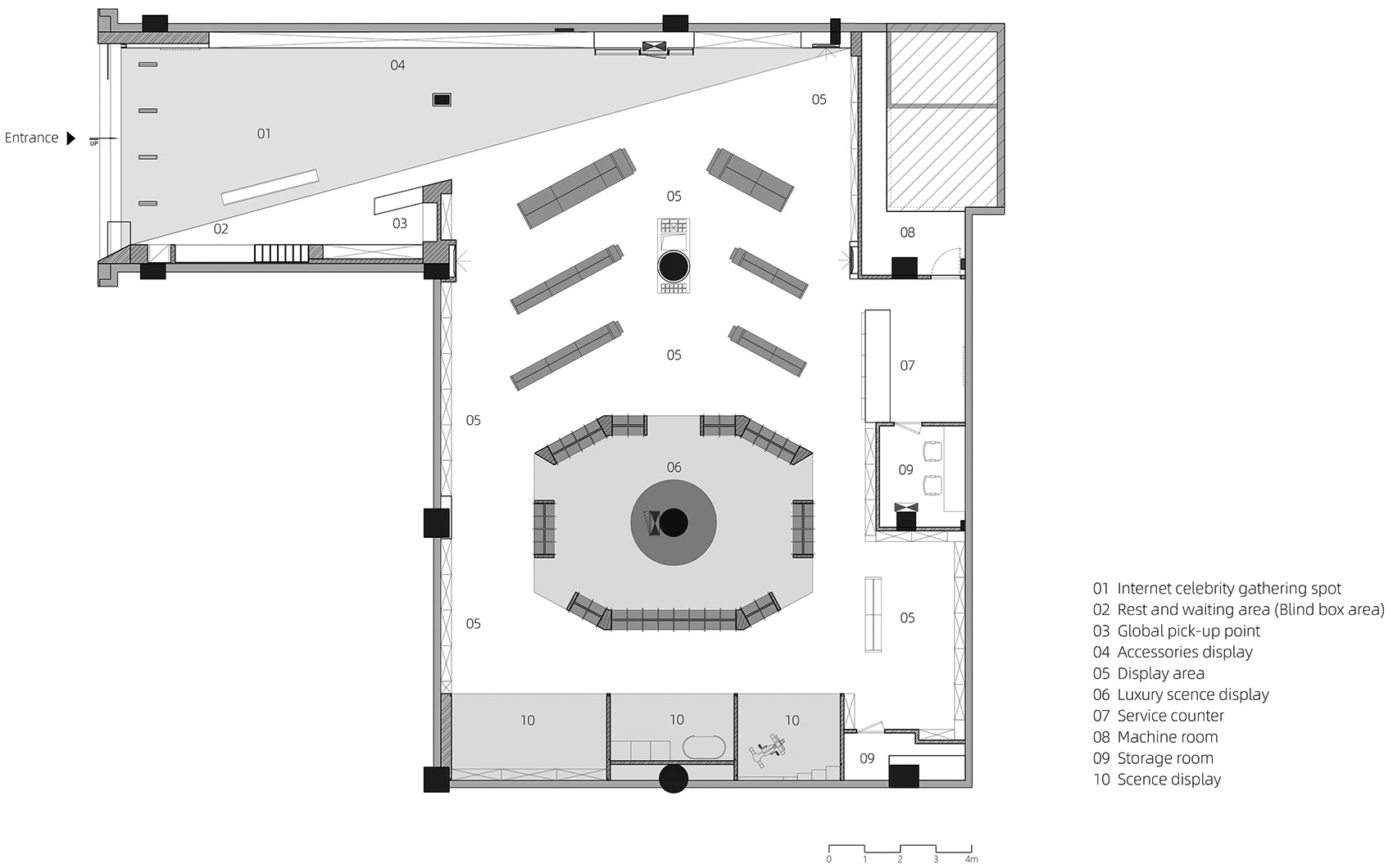
ZIPLAB 广州北京路店围绕“潮红数据库”的概念展开设计,将门店的体验路径和品牌故事线并行。店面划分为三大区域:潮红 ARCHIVE HALL,潮能 CHARGING TOWER,潮云 DATA VAULT。
▼ZIPLAB 广州北京路店轴测图©加减智库设计事务所
axon drawing of Beijing Road Store ©PMT Partners
ZIPLAB Beijing Road Store in Guangzhou is designed based on the concept of “Database”, and parallels in-store experience path and brand storyline. The store is divided into three zones: Archive Hall, Charging Tower, and Data Vault.
▼ZIPLAB 广州北京路店入口空间©曾喆
Entrance area ©ZENG Zhe
潮红 | ARCHIVE HALL
进门通高的 archive hall,潮红的亚克力墙在垂直方向上撑起整个大厅;而水平方向上延展的饰品柜则贯穿整个店面的进深。
In the towering archive hall in the entrance, the acrylic wall vertically supports the entire hall; while the jewelry cabinet horizontally extends through the entire store.
▼入口通高的亚克力墙©曾喆
Acrylic wall in entrance hall ©ZENG Zhe
▼水平延展的饰品柜©曾喆
Jewelry cabinet horizontally extending©ZENG Zhe
这面被压缩的首饰墙作为入门空间的主角,就像是游戏中炸开的“武器库”,“玩家“根据自己的喜好属性来挑选自己的“装备”。这里除了承载销售功能之外,整个空间赋予了消费者以自主探索的全新场景。
As the protagonist of the entry space, this compressed jewelry wall, as the leading part in the entrance, is like the “arsenal” blown open in a game, where players choose their own equips according to their preferences and attributes. Besides sales function, the entire space offers consumers a brand-new scene for independent exploration.
▼入口等候休息区©曾喆
Waiting area in entrance hall ©ZENG Zhe
▼入口盲盒抽取区©曾喆 blind box area ©ZENG Zhe
垂直亚克力墙面与水平不锈钢柜体形成的两个轴向错动,使远端收窄并带有强烈的指向性,加上天地灯带的引导,从而有效消解 L 型平面转折的导流问题,带动人们继续深入体验。
The two axial dislocations formed by the vertical acrylic wall and the horizontal stainless-steel cabinet make the far end seem to narrow and strongly directive. Coupled with the guidance of light strips, it effectively resolves the diversion problem of the L-shaped plane turning and leads people to deeper experience.
▼入口取货区与陈列柜©曾喆
Pickup area and jewelry Display Cabinet©ZENG Zhe
而由于角度的错动和亚克力墙的分隔,前厅巧妙的形成了前后两个空间,使得等候、取货、盲盒等彩蛋空间得以隐藏其后;一旁悬空的 LED 屏幕则持续的展现着 ZIPLAB 浓缩研选世界好物的态度。
The antechamber ingeniously forms a front section and a back section through angular dislocation and the partition of the acrylic wall, enabling waiting area, pickup area, blind boxes and other extra spaces to hide behind; the impending LED screen aside continuously shows ZIPLAB’s attitude of selecting the best things in the world.
▼入口通高的天花©曾喆
Ceiling of entrance hall ©ZENG Zhe
▼细部©曾喆
Details©ZENG Zhe
潮能 | CHARGING TOWER
潮能 CHARGING TOWER 是整个门店的中部核心,是步入保险库前的序厅;这里是压缩包被解压的过程,是商品条码爆炸散落的地方。
▼中岛货柜区天花造型结构分析图©加减智库设计事务所
Structure diagram of the ceiling installation in central area ©PMT Partners
The Charging Tower is in the center of the entire store and is the lobby to the vault; here is the process of unzipping a compressed file and the place where the product barcodes explode and scatter.
▼中岛货柜区©曾喆
Middle cargo area ©ZENG Zhe
顶部碎片化的装置造型犹如被炸开的能量板,簇拥并聚焦在粗壮的发光柱体上。两旁的货架对称排开,层层堆叠,节节递升,成山丘之势。
The fragmented installation on the top is like an exploded energy board, clustering and concentrating in the burly illuminant cylinder. The shelves on both sides are placed symmetrically, layer upon layer and ascending like a hill.
▼形似光伏板的中岛区天花造型©曾喆
Ceiling installation in shape of photovoltaic panels ©ZENG Zhe
潮云 | DATA VAULT
进入潮云 DATA VAULT 区域,这个被发光体包围的神秘空间仿佛一个珍品的保险库。空间的核心是象征时空的数据传输塔,它就像一个连接线上线下的精密仪器。发光的墙体通过上下的镜面形成虚拟的映像无限延伸,暗示着线上世界无穷无尽的商品编码,以及在云端数据库里没有容量上限的虚拟空间。
▼轻奢区中央装置结构分析图©加减智库设计事务所
structure diagram of the display installation in light luxury area ©PMT Partners
Into the Data Vault, this mysterious space surrounded by illuminants is like a treasure vault. The center of the space is a data transmission tower which symbolizes time and space, and it is like a precision instrument that connects the online and the offline. The luminous wall generates a virtual image that extends infinitely through upper and lower mirrors, implying the cyberworld.
▼轻奢品陈列区©曾喆
Light luxury product display area ©ZENG Zhe
▼轻奢品陈列区©曾喆
Light luxury product display area ©ZENG Zhe
海口万达店
Haikou Wanda Store
▼ZIPLAB 海口秀英万达广场店轴侧图©加减智库设计事务所
axon drawing of Haikou Wanda Store ©PMT Partners
For Haikou Wanda Store, under the same series as ZIPLAB Guangzhou Road Store, its plane layout further interprets the shopping experience where online and offline, zipping and unzipping are interconvertible. The treasure vault in the central position is like a zipped file and is unzipped into folders of story scenes after downloaded, which contains a vast number of product files in different formats where consumers search and consult matched data according to their preferences, then make a purchase and form images and upload to the lab for cloud sharing.
▼轻奢品陈列区©曾喆
Light luxury product display area ©ZENG Zhe
▼中央装置©曾喆
Central installation©ZENG Zhe
▼金属货架中的视角©曾喆
View from the metal shelves©ZENG Zhe
珍品数据库 |Treasure Database
犹如对文件夹数据的逐层搜索,顺着层层递高的货架踏入四周镜面环绕的珍品数据库;这个极致压缩的空间里透过多重反射呈现出一种略带超现实色彩的场景,给人一种穿越未来的沉浸式消费体验。
It is like searching data from folders layer by layer, then following the ascending shelves into the treasure database embosomed by mirrors; this extremely compressed space presents a slightly surreal scene through multiple reflections and brings people immersive and futuristic consumer experience.
▼珍品数据库展陈区©曾喆
Light luxury product display area ©ZENG Zhe
成分研究所 |Ingredient Lab
ZIPLAB 将专业供应链品类精选进行“研选”与“放大”,按照产品的化学成分进行细分,形成独特的消费圈层。这部分的空间设计进一步强调了“LAB”这个理念,实验室主题的场景表现了 ZIPLAB 持续保持对世界商品选品上的进化力。
ZIPLAB “selects” and “amplifies” related categories in the professional supply chain, and subdivides them according to the chemical composition of products, forming a unique consumer group. The space design of this part further stresses the concept of “LAB”, and the lab-themed scenes display ZIPLAB’s ability to continuously improve its selection of products worldwide.
▼成分研究所展示区©曾喆
Ingredient Lab ©ZENG Zhe
国际物种仓 |International Species Warehouse
At the end of the experience, a space called “International Species Warehouse” is set up to link offline and online images, so that the offline experience can effectively generate online traffic. Through the columnar transmitter and explosively dislocated streaming media, the consumers offline can see the punch-in images uploaded by consumers online. According to the preferences of offline consumers, the cloud pushes more online choices of categories.
▼国际物种仓通道©曾喆
The channel towards to the international species warehouse ©ZENG Zhe
▼国际物种仓©曾喆
International species warehouse ©ZENG Zhe
我们每一个人已不可避免的成为景观图像的参与者和构建者,也不可避免的共同影响甚至决定了未来的景观。
ZIPLAB 是我们针对当代消费社会的景观图像所作出的思考,我们试图用一套闭环的消费视角,去创建一个线上线下、压缩解压无限循环,首尾追逐的贪吃蛇实验游戏。
Each of us has inevitably become a participant and builder of spectacle image, and will inevitably influence and even determine the landscape of future together. ZIPLAB is our reflection on the spectacle image of the contemporary consumer society. We try to use a closed-loop consumer perspective to create an infinite loop of online and offline and compression and decompression, just like an experimental tail-eating gluttonous snake game.
▼细部©曾喆
Details©ZENG Zhe
▼ZIPLAB 海口店平面图©加减智库设计事务所
Floor plan of Haikou Store ©PMT Partners
▼ZIPLAB 广州北京路店平面图 ©加减智库设计事务所
Floor plan of Beijing Road Store ©PMT Partners
项目名称:ZIPLAB 跨境电商线下体验店
设计公司:加减智库设计事务所
主持建筑师:胡彦,曾喆,赵炜昊
项目主管:顾振琳,林冕仕
设计团队:关灏正、林泳君、庞程、陈宜辉
摄影:曾喆
委托机构:洋葱集团
广州北京路店面积:350 平方米
海口万达店面积:750 平方米
客服
消息
收藏
下载
最近



















































