查看完整案例

收藏

下载
曼谷TRYP是一个位于市中心的混合住宅项目,绿地空间十分有限。因此,建筑师希望用“垂直花园”整合建筑方案,为住户和邻里创造出绿色环境。项目中,大堂、spa、停车区域布置在1层,对外的公寓式酒店是二到四层,公共设施在五层,业主的私人住宅则安排在六和七层。
Bangkok TRYP is a mixed residential project, and located in the city center with slight green space. Thus the design aims to create green environment for its residents and neighbors, by integrating a ‘vertical gardens’ into the building while expressing building programs; lobby, spa and parking area are on 1st floor, service apartment units on 2nd-4thfloor, common facility on 5th floor and owner’s private residences on 6th and 7th floor.
▼项目远观,场地位于市中心,绿地空间有限,view in distance, the site located in the city center with slight green space © Ketsiree Wongwan
▼建筑下层为酒店,中间布置公共设施,上层是私人住宅,the lower levels of the building are hotels, with public facilities in the middle, and the upper levels are private residences © Nattapong Pongpibul
▼建筑立面,用“垂直花园”整合建筑方案,the facade, integrating a ‘vertical gardens’ into the building © Nattapong Pongpibul
楼梯、电梯和走廊位于建筑物北侧,对面是一幢高层建筑。建筑师还设计了三层高的半室外单人走廊,作为连接酒店部分的交通空间,可为一层大堂提供自然采光。酒店房间基本上都能够欣赏到西部和南部的美景。建筑立面上配置有高度合适的树与灌木,与铝制的格栅相组合,遮挡住每户的空调外机。建筑立面的设计不仅满足了遮阳的需求,更拉近了景观与客人之间的距离。所有公共设施都位于5楼,分隔开业主居住的上层与下层的公寓式酒店。游泳池一直延伸至建筑边缘,为住户提供了绝佳的视野,健身房位于正前方,视野所及是游泳池和花园的美景。
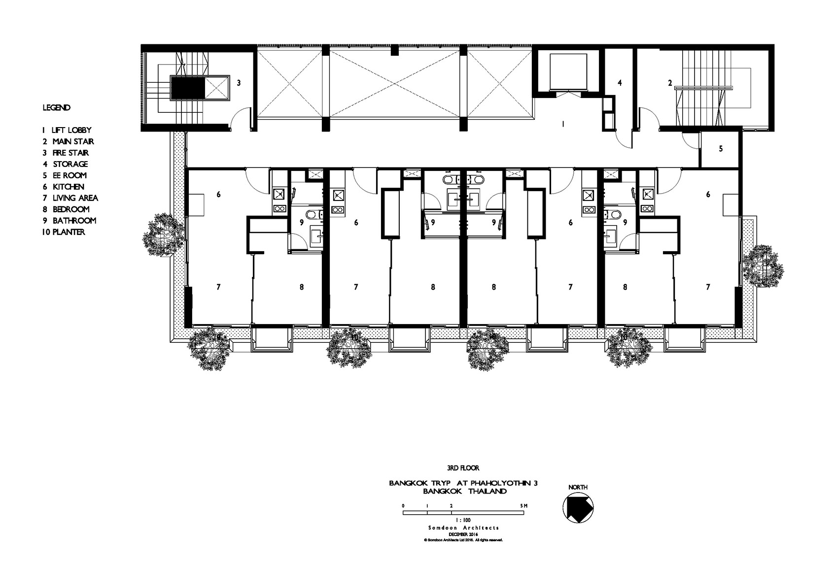
The staircases, lift and corridor are located on north of the building facing with a high-rise building neighbor. The singled loaded corridors on the apartment floors are semi-outdoor space with 3-storey open well, allowing natural light to reach 1st floor lobby. Most of service apartment are open to better view on West and South. The medium-height trees and shrubs are planted along the building façade and mixed with aluminum screens covering the air-condensing units. They are not only act as sun shading device, but also bring landscape closer to the residents. All common facilities are on the 5th floor partitioning the owner’s floors above from the rental units below. The swimming pool is extended to the edge of the building for a pleasant view, while the gym is located at the front to have both swimming pool and garden views.
▼建筑立面,植物与铝制格栅遮挡住空调外机,the facade, plant and aluminum screens covering the air-condensing units © Ketsiree Wongwan
▼位于五层的公共设施,包括游泳池和健身房,common facilities on the 5th floor, the swimming pool and the gym © Ketsiree Wongwan
▼绝佳的泳池视野,a pleasant view from the swimming pool © Ketsiree Wongwan
▼大堂的自然采光,natural light reaching 1st floor lobby © Ketsiree Wongwan
▼通高的交通空间,3-storey well open traffic space © Ketsiree Wongwan
建筑师为私人住宅的两层设计了别致的坡屋顶,看上去就像在大楼顶端放置了小房子。客厅的位置与屋顶形状对应,以保证空间高度最大。房屋主要朝南,需要用铝制格栅完全遮挡。暖棕色的立面格栅不仅为建筑遮阳降温,也保证了业主能够享有私密的空间和开阔的视野。
The 2 top floors present in a distinguished gabled-roof form, like a house sitting on top of the building. The main living room space follows the roof shape to achieve maximum height allowed. As the house mostly facing south, the openable aluminum screens are proposed to cover it entirely. The screen, which is in is in warm wood-brown color, does not only filter the sunlight and heat for the house, but also give the owners privacy with a pleasant view at the same time.
▼位于顶层的私人住宅,别致的坡屋顶,the 2 top floors of private residences, with a distinguished gabled-roof © Nattapong Pongpibul
▼单人走廊,被铝制格栅遮挡,the singled loaded corridors covered by aluminum screens © Ketsiree Wongwan
▼私人住宅,坡屋顶加高起居室,private residence, the living room space follows the roof shape to achieve maximum height © Ketsiree Wongwan
▼房间环境,interior view © Ketsiree Wongwan
▼夜景,nightview © Nattapong Pongpibul
▼分析图,diagrams © Somdoon Architects
▼立面图,elevations © Somdoon Architects
▼剖面图,sections © Somdoon Architects
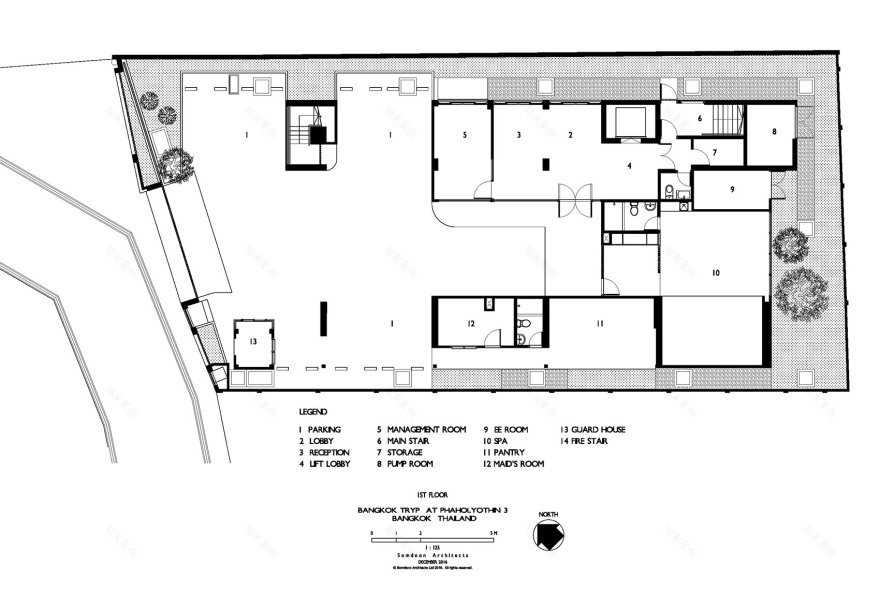
▼首层平面图,1st floor plan © Somdoon Architects
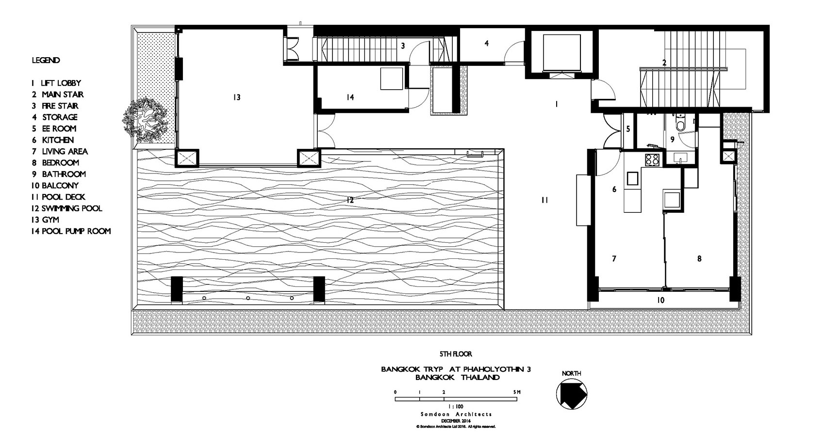
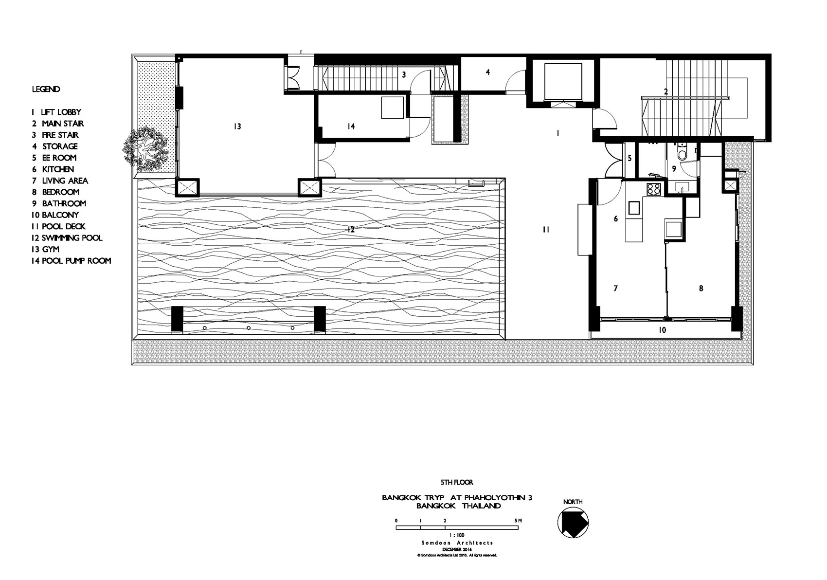
▼公共层(五层)平面图,5th floor plan © Somdoon Architects
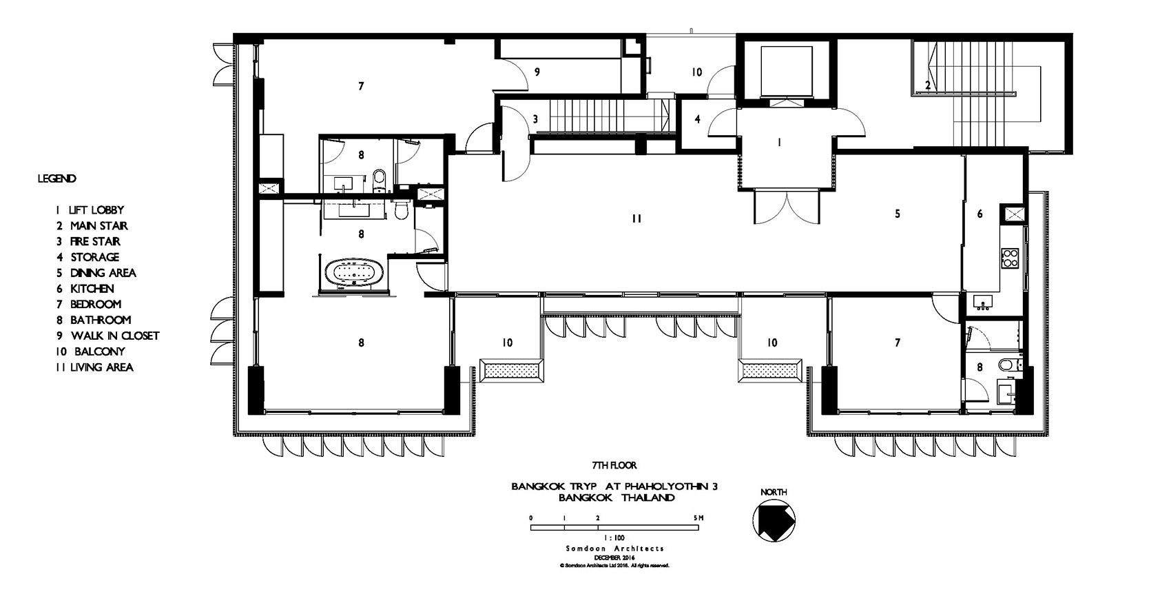
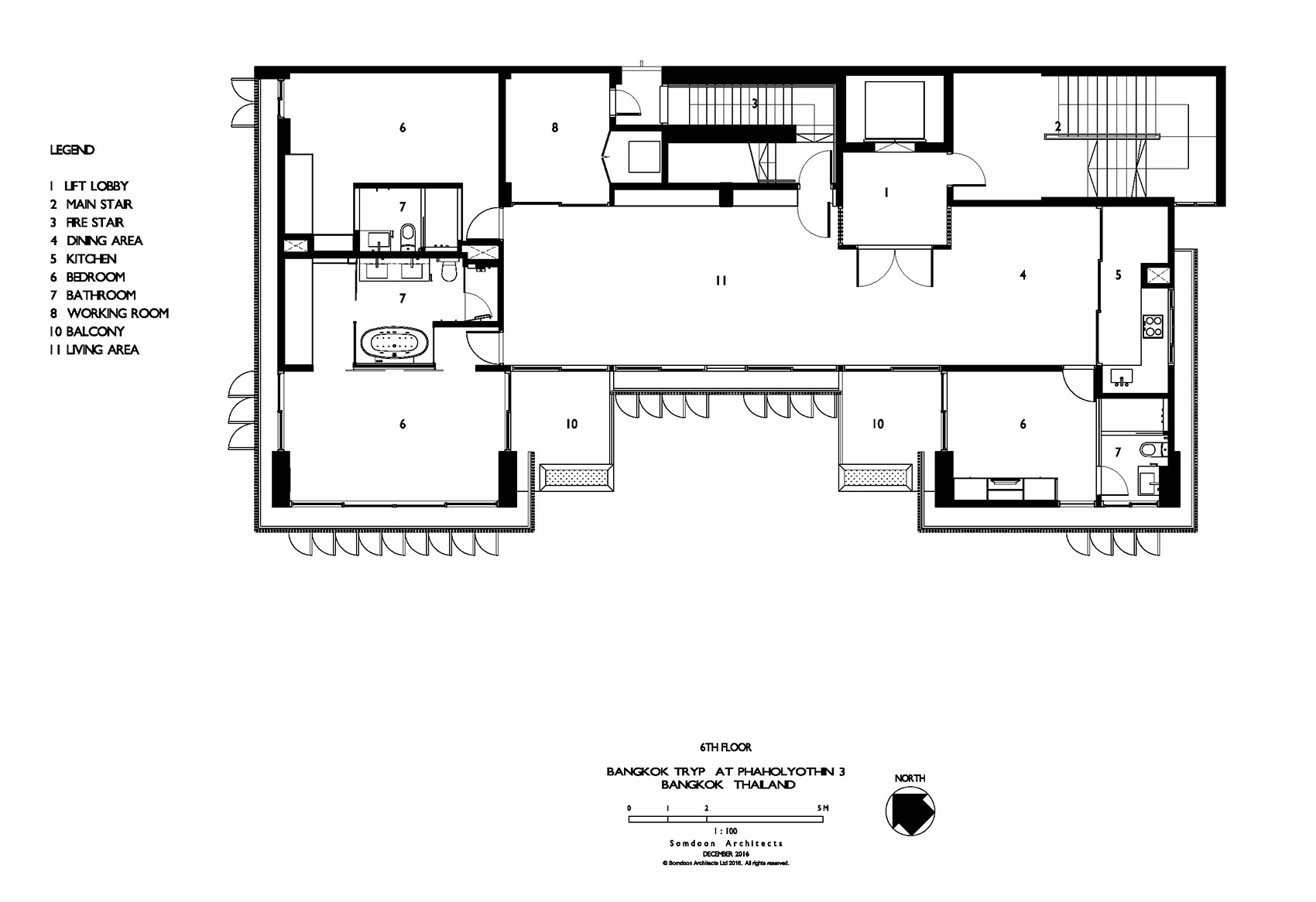
▼顶层(七层)平面图,7th floor plan © Somdoon Architects
客服
消息
收藏
下载
最近































