查看完整案例

收藏

下载
该房屋位于一处沿路开发的待售建筑地块。建筑前侧朝南方位的土地还处于被清理状态,建筑后方位于北部的地块正沿着一条主干道被重新布置。于是,团队在南部设置了开口和缓冲区,试图通过被动式设计来打造舒适的空间。
The house is located in one lot of a building lot for sale which has been developed along a road. The front land is cleared in south and the back land is rearranged in north along a main road. Accordingly, I organized openings and buffer zones in south, and I tried to make passive designs and comfortable spaces.
▼建筑外观,external view of the house © Yuta Yamada
▼屋檐下的乘凉空间,cooling space under the eaves © Yuta Yamada
设计团队在客厅中设置了一个大型开放式天顶空间,南面布置了大型窗户。屋檐下,有一个向内凹陷且被绿意环绕的室外空间可供人享乐休闲。种满针叶树的花园和采用被动式设计的建筑使室内温度冬夏皆宜。
▼客厅中的开放式天顶空间,open ceiling space in the living room © Yuta Yamada
▼客厅一角,corner of the living room © Yuta Yamada
I made a living room, which is a main room, a big open ceiling space, and I organized big windows in south. And then I made a deep space under eaves and full of greenery outside space. I planted needle-leaved trees in the garden, and I organized a deep eaves middle area. By doing so, I made the inside the room cool in summer and warm in winter. I tried a passive design.
▼起居空间概览,the living area overview © Yuta Yamada
▼用餐空间,the dining area © Yuta Yamada
▼造型独特的木制楼梯,unique wooden staircase © Yuta Yamada
通过对阴影和柔和光线的利用,室内的木制台阶被营造出一种特殊的视觉效果。此外,团队还尝试通过户外空气循环系统来营造一个更为舒适的生活空间,让住户尽情享受被动式设计带来的安逸与便利。
I gave the steps an impact by shade and shadow made by soft light. And I tried a more comfortable space by OUTSIDE AIR CYCLE. The clients will be able to enjoy a comfortable life in the passive deigned house with foliage.
▼阶梯细节,staircase details © Yuta Yamada
▼阁楼空间,attic space © Yuta Yamada
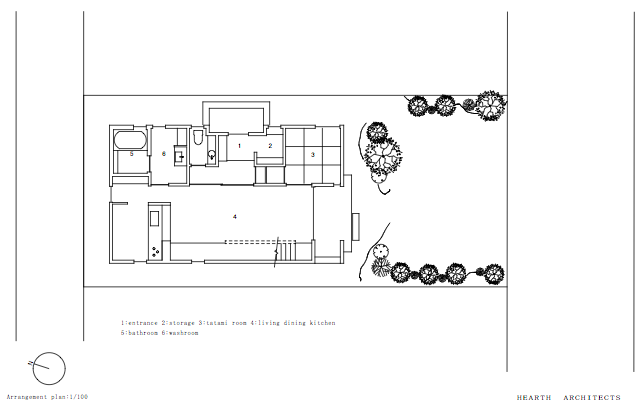
▼总平面图,site plan © HEARTH ARCHITECTS
▼一二层平面图,first and second floor plans © HEARTH ARCHITECTS
▼立面&剖面,elevation and section © HEARTH ARCHITECTS
Construction: built of wood
Number of stories : 2
Gross area: 119.52㎡
Location: shiga /Japan
Completed date: 2019.6
The name of the photographer is “Yuta Yamada”
客服
消息
收藏
下载
最近

















