查看完整案例

收藏

下载
一对来自香港的夫妻, 从事广告片拍摄导演和制片工作达三十年之久, 因工作关系走遍大中国及世界各地, 喜好设计, 喜好佛学, 喜好收藏各式有老灵魂的物件, 空间中充满着老文青生活记忆的用具及摆设。
The clients are a couple from Hong Kong, both are creative professlonas who have been in commercial directing and film producing fields for over 30 years. Through the extensive travels in China and the world as required by their works, they have collected an eclectic selection of Buddhist and design obiects that exude the essence of the intellectuals’ “old soul”.
▼室内空间概览,interior view
环境概况|SITE
八角|8 Angles
在台北新购三十年老宅,坐南朝北, 东侧临敦化南路, 位于八楼, 是栋有林荫大道景观的特殊形体大楼 – 钻石状八角形建筑物;结构是无梁楼板,中心十字柱,东西南北四面承重墙,东北东南二侧玻璃帷幕墙临林荫大道,西北角是外凸阳台临巷,西南是入口大门。克拉(Carat),色泽(Color),净度(Clarity),切割(Cut)是钻石的鉴定准则,从建筑外形钻石衍生的想法是希望空间可以从钻石4C准则找到灵感;所以藉由不同的雕刻方式在空间展现如钻石不同的切割形式与重量感;透过迴游动线安排产生的行为流动与视觉流动来演绎如钻石色泽的纯净与透澈感。
The property is an 8th floor unit in a 30 year old building. Calling to mind the shape of a diamond, this unique space is in the shape of an octagon, with the east side facing the tree lined duen-hua south road. Without any beams above, the structure is supported by a cross column In the center and structural wall of four orientations east, west, north and south. Full height glass curtain wall occupy the north-eastern and south-eastern walls while a balcony extends out from the north western side with an an opening at the south-western as the main entrance. Carat, color, Clarity and cut are the 4+ crlterla in evaluating a diamond. Inspired to apply the same criteria, the concept is to sculpt the space in different ways to create various circulating and reflecting lines for physical and perspective movement, mimicking the different cuts of diamond to accentuate Its purity and transparency.
▼最好的景观(treetop)留给主要的生活空间,the best landscape (treetop) is reserved for the main living space
▼以视觉流动决定公私领域,以十字柱为轴心,外扩与之垂直平行墙面界定内外,the public and private spheres are determined by visual flow, with the cross pillars as the axis, and the walls extending vertically parallel to them to define the interior and exterior
概念|CONCEPT
三线|3 Lines
以十字柱为轴心,外扩与之垂直平行墙面是私密空间与开放空间界线,此内侧墙线与建筑外侧承重墙帷幕墙形成宽约四至五米的环形区块的生活起居空间;本案设计概念便由此三条线展开。
Using the cross column as axis, three interior walls parallel to north-eastern, south-eastern and southern exterior walls respectively, establish the private quarter and form a 4-5 meter wide ring shaped living area. The design concept of the space is cultivated along the following three lines.
▼三线整体设计概念,design concept of 3 Lines
线1. 建筑外墙:
以凿墙或浮雕不同雕刻方式创造不同肌理质感,也保留承重墙结构感,是砖石重量的表现;帷幕墙透入的光线与下望的敦南绿荫如同钻石般的纯净透澈;以上两者共同形成包裹空间外皮的表情。
Line 1 Exterior walls constitute the first line:
Employing chiseling or embossing technique to create different textures, the power of the structural walls is emphasized like the weight of a finely cut diamond. The natural light coming through the glass curtain walls and the greenery below on dun-nan road not only lighten but also purify. Both walls wrapped the exterior facade.
▼线 1. 以凿墙,浮雕,视觉穿透组成,Line 1. Composed of wall chiseling, relief and visual penetration
▼外墙-帷幕墙透入的光线与下望的敦南绿荫如同钻石般的纯净透澈,the natural light coming through the glass curtain walls and the greenery below on dun-nan road not only lighten but also purify
▼外墙-以凿墙或浮雕不同雕刻方式创造不同肌理质感,也保留承重墙结构感,是砖石重量的表现,exterior wall employ chiseling or embossing technique to create different textures, the power of the structural walls is emphasized like the weight of a finely cut diamond
线2. 起居内墙:
10x10mm金属方管以透空雕刻手法,形成不规则直横向分割结构立于被温润桦木板包覆的起居内墙前,上方架着层板与方盒承载着主人生活的点滴收藏, 从入口延展至修佛区, 是生活起居空间的背景。
Line 2. Interior walls constitute the second line:
Clad with the minimal yet warm birch panels, the walls are further covered by a custom shelf made with 10 x 10mm square metal tubes, forming display areas for the clients collection. Extending from the main entrance to the meditation area, these walls serve as the background of the living area
▼线 2. 以透雕方式制作出一道可留存记忆的墙,Line 2. Create a wall to retain memory through hollow carving
▼内墙-10x10mm金属方管以透空雕刻手法,形成不规则直横向分割结构立于被温润桦木板包覆的起居内墙前,clad with the minimal yet warm birch panels, the walls are further covered by a custom shelf made with 10 x 10mm square metal tubes
▼墙面形成收藏空间,display areas for the clients collection
线3. 环形动线:
生活起居动线,以镀锌钢板如纸般折出的门板是入口第一印象,H型钢立柱界定玄关,从架高磨石地坪转折向上形成的中岛。
Line 3. The flow of the ring shaped are constitutes the third line:
The movement starts with the galvanized steel door that opens effortlessly like a piece of paper gliding across the floor. Steel H post sets the boundary of the foyer.
▼线 3. 以生活的行为流动持续蔓延贯穿整个空间,Line 3. the living behavior flow forms a continuous flow of behavior penetrating the entire space
▼镀锌钢板如纸般折出的门板是入口第一印象,the movement starts with the galvanized steel door that opens effortlessly like a piece of paper gliding across the floor
▼石材墙面与桌子细节,stone wall and table details
空间中另一H型钢与直立式拉帘付予此区弹性-业主手写心经,以阴刻处理露出混凝土定字迹的黑铁墙面与黑铁桌板是环形动线的端景,是男主人沉思修佛的小天地。
A second H steel post marks the final a section of the movement: the husband’s meditation corner where the transcribes buddhist text on a black iron clad desk that extends up to the entire wall with relief carving of Chinese writing.
▼环形动线空间,circular movement spaces
▼环形动线空间-起居空间,circular movement spaces-living area
生活起居空间可观赏室外绿荫,内部有可品茶、阅读、工作、用餐的大桌与随意坐卧的单椅。藉由以上三条线连结,形成一生活动态的场域,与八角建筑形体产生对话关係,生活的一切行为都有绿色林荫相伴,生活仿佛漂浮在树梢上。
From the island that erects from the raised stone platform to the multi-purpose communal table, the line continues to the living room decorated sparsely with chairs that can turn into loungers for anyone to enjoy the greenery outside. The interaction of three lines forms the living environment, engages in dialogue with the octagonal shape of the structure. All activities in the space are accompanied by the greenery outside, as if living on tree top.
▼可品茶阅读工作用餐的大桌,from the island that erects from the raised stone platform to the multi-purpose communal table
▼可观赏绿荫的生活起居空间与随意坐卧的单椅,the line continues to the living room decorated sparsely with chairs that can turn into loungers for anyone to enjoy the greenery outside
私人空间界定|PRIVATE SPACE
开放区内侧界线的层架从入口延展至修佛区前,刻意脱出一个缝, 是往私密区的入口;从建筑西北角外凸阳台延伸到建筑中心十字柱是主人生活的私密空间;是主人睡眠更衣沐浴的空间,此区透过不同动线让空间产生延伸感;其一,透过可完全敞开的落地窗,连结至可以呼吸的阳台,感受到林荫树梢景色;其二,透过更衣室连结入口区的衣帽间至大门入口处,可让整个室内形成一迴游的动线,让主人在生活中完全感受到建筑原始的八角空间感!
▼私人空间设计概念,concept of private space
As the display shelf extends from the entrance to the meditation corner. There is a break that serves as the entrance to the private quarter. The entire north-western quadrant of the space encompasses the master bedroom, master bathroom, and walk-in closet. The extension to the balcony through the accordion door and to the main entrance through the walk-in closet that connects to the powder room provides a returning movement, allowing owners to experience the spacial ambiance of the octagon.
▼通向私密空间的入口,entrance to the private area
▼卧室及露台,bedroom and the balcony
▼通过更衣室连结入口区的衣帽间至大门入口处,可让整个室内形成一迴游的动线,the extension to the balcony through the accordion door and to the main entrance through the walk-in closet that connects to the powder room provides a returning movement
一方|1 Square
八角建筑南面承重墙另连结一方形空间,所以设计之初就把此空间独立一方,做为客房及服务空间,藉由入口H型钢侧的拉门开閤与其连接,让主客可各有独立完整的空间及隐私,环形的开放空间是主客卧房的中介空间;起居内墙与建筑外墙的双轴线之间,顺应而生一抹弧线般的生活轨迹,三道曲线对映跃于窗外的绿荫葱茏,渗出悠悠人文底蕴。
▼一方设计概念,concept of 1 square
The southern weight bearing wall connects to a square space that is designed to feel as an independent space from the main living area. It serves as a guest room, entered through a discreet sliding door, thus providing privacy to both owners and guests.The ring shape living area is an intermediary between the master and quest bedroom. With the parallels between interior and exterior walls implying the trajectory of life, the three lines, reflecting the verdant scenery from the outside, emanates the essence of humanities.
▼客房服务空间,the guest room and service space
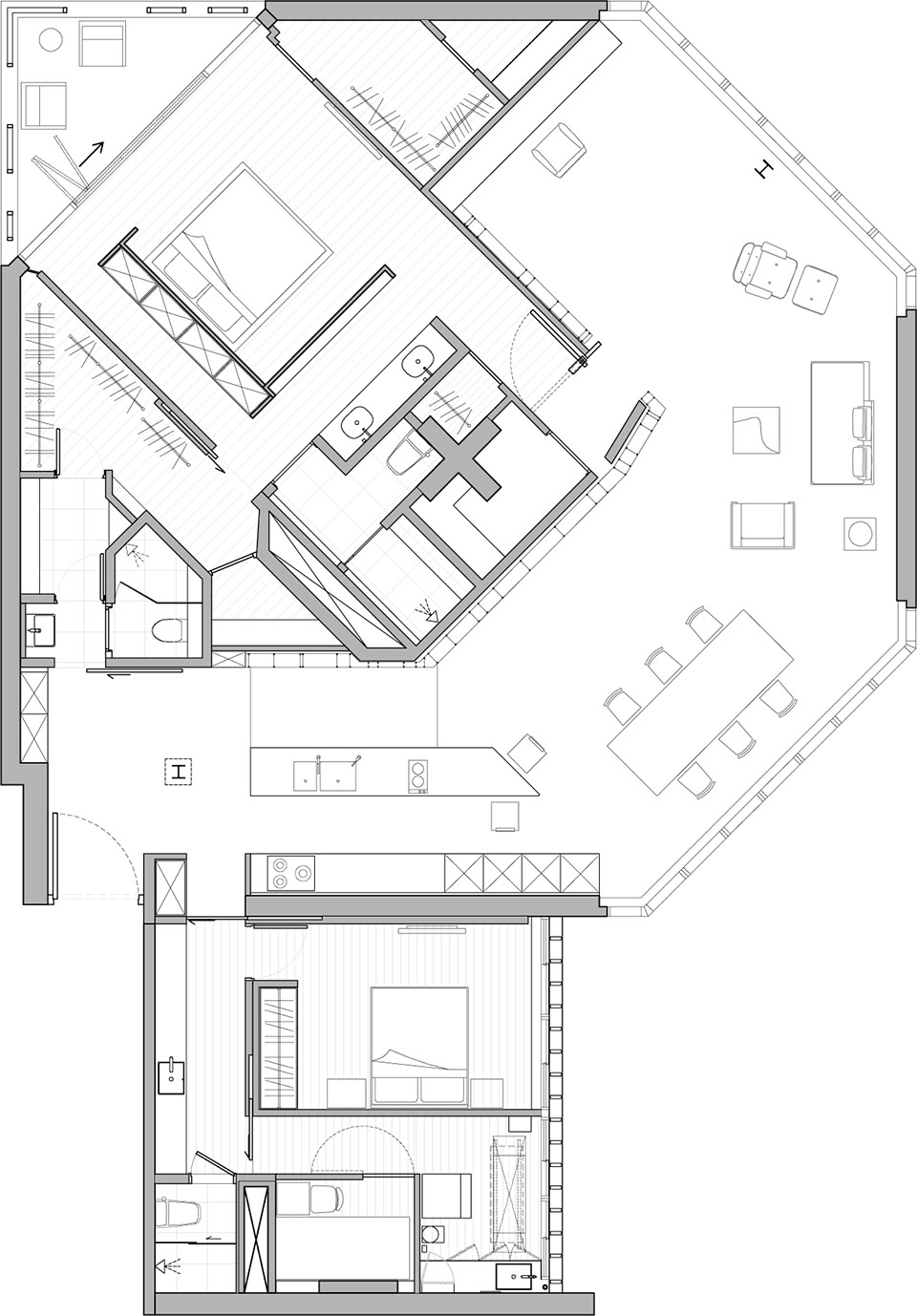
▼平面图,plan
客服
消息
收藏
下载
最近




















































