查看完整案例

收藏

下载
这座独栋住宅位于东京郊区,是为一对年轻的夫妇设计。业主夫妇每周会在家中工作三天以上,考虑到这一点,建筑师希望建立一种新的(或非现代化的)住宅类型,来满足该项目作为郊区住宅以外的功能需要,并且将建造成本控制在与周围房屋相同的范围内。该住宅需要在不增加总面积的前提下提供更加多样化的空间,以满足业主的工作需求和丰富爱好(室内和室外)。
A single-family house designed in suburbia of Tokyo. Instead of regarding a suburb as a subordinate of metropolis, this young couple’s suburban life could be truly centered by working more than three days a week from home. This change made us to come up with a new (or non-modern) house-type with the same budget as the neighboring mass-produced houses. It required much more diverse spaces to accommodate their working environment and places for multiple hobbies (indoor-outdoor), without increasing total floor area.
▼住宅外观,exterior view
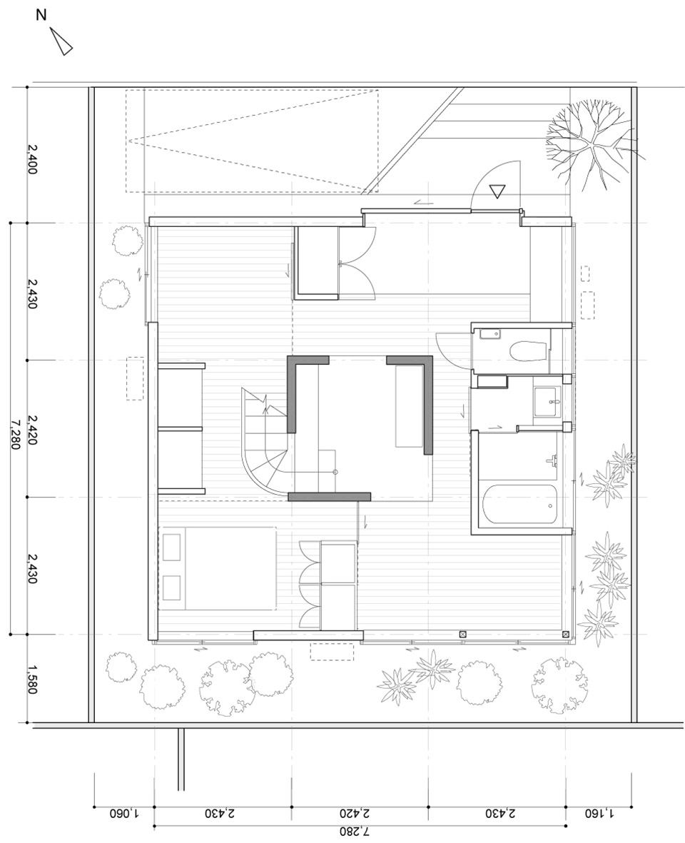
建筑基于一个九宫格的平面建成,其尺度参考了日式建筑中以2430mm和1820mm为单元的两种模块:地面采用了2430mm的模块,墙壁使用了1820mm的模块( 2430×3与1820×4的乘积仅相差10),巧妙地迎合了成本与建造标准的需要。与此同时,总平面由包含不同功能的零碎空间组合而成,并没有遵循模块的尺寸(2430mmx 2430mm的空间作为卧室太小,作为单人活动空间又有些大)。这样一来,实际的空间和功能都没有因为网格的存在而受到限制,因此也能够激发居住者对于空间的想象力,将他们在室内和室外的活动随时随地联系起来。
▼一层平面图,plan level 1
The tiny nine square grid plan is applied, whose dimensioning is based on two kinds of modules in Japanese construction; 2430mm module and 1820mm module. 2430 x 3 = 1820 x 4 = 7280. 2430 became the module of floors, while 1820 became the module of walls, dealing and playing with economy/convention of dimensions in construction. The overall plan is made as a collective of fragmented places for different behaviors throughout the stacked grid. 2430 x 2430 is too small as a room, but too big as a spatial unit for one person’s activity. The grid corresponds neither to behaviors nor to rooms. Therefore, this house with rigid tectonics would invoke one’s imagination for the production of space, linking one behavior to another, inside and outside, without fitting too much to what can happen inside time to time.
▼入口区域,entrance area
▼实际的空间和功能没有因为平面网格的存在而受到限制,the square grid plan corresponds neither to behaviors nor to rooms
入口大门借鉴了日本旧式排屋/农舍的样式,可以以两种方式开启:平时作为普通铰链门使用,偶尔也可作为推拉门来连接入口区域和室外空间。
Learning from the old townhouse / farmer’s house type in Japan, the entrance door has two way opening system, normally working as a hinged door, occasionally working as a large sliding door to connect the “doma” space with the outside.
▼室内外过渡区域,“doma” space
▼门厅区域,entry hall
建筑师试图在保持施工简洁度的前提下尽可能地提高空间质量。屋顶被划分出一个呈45度倾斜的坡面,为二楼赋予变化的空间高度,并为起居室和餐厅带来南向的自然光。裸露的混凝土基座看上去与周围建筑类似,但室内的地面高度被降低,从而使住宅的窗户与周围建筑形成落差。
Without losing the simplicity of construction, the design accumulates decisions to hybridize its spatial qualities. For instance, the roof plan is separated in 45 degrees to create low/high ceiling space at 2F, as well as inviting the southern light towards the living-dining area. The concrete exposed to the interior is constructed as a foundation. The foundation looks similar to neighbors from the outside, but the floor levels inside are shifted closer to the ground, creating the level difference from surrounding windows.
▼从门厅望向屋顶,view to the roof from the entry hall
▼室内概览,interior overview
▼上下层空间关系,the spatial relationship between 1F and 2F
▼倾斜的屋顶为起居室和餐厅带来南向的自然光,the roof is separated in 45 degrees to invite the southern light towards the living-dining area
▼工作空间,working space
▼从楼梯间望向餐厅,view to the dining area from the stair
▼室内细部,detailed view
设计师基于业主的需求对日本郊区生活进行了非现代的构想,使住宅成为自然环境和城市环境的交叉点,同时从新旧风格、历史遗迹建筑语言中汲取灵感,以将这种构想充分地呈现出来。
The clients brought us a non-modern imagination of the suburban life in Japan, as a hybrid of natural and urban environment, and as a middle point between metropolis and nature. Our attempt in this project is to respond to it with non-modern architecture to amplify the imagination, learning from new and old lifestyles, histories, and architectural languages.
▼屋顶平台,roof terrace
▼住宅夜景,night view
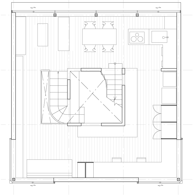
▼二层平面图,plan level 2
▼屋顶平面图,roof plan
客服
消息
收藏
下载
最近



















