查看完整案例

收藏

下载
该项目位于一条交通繁忙的公路旁边,其附近是业主运营的工厂,以及一座供业主父母居住的传统日式住宅。由于场地环境给人一种混合的印象,建筑师决定打造一座能够在延展视觉的同时保证私密性的住宅。
The site is located along a highway with large volume of traffic. A field expands around the site that is adjacent to the concrete factory run by the client, and a traditional Japanese house where the parents reside. Because the environment gives somewhat mixed-up impression, a house was sought that would produce visual expansion while blocking eyes from surroundings.
▼住宅及周边环境,the house in its context
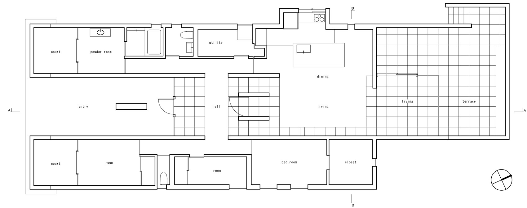
首先,住宅的轴线与场地的北部边缘垂直,以获得最宽的视野,使从入口到后院的每个空间都尽可能变得宽敞。住宅入口位于对称立面上的凹陷处。一座厚实的墙壁竖立在入口中央,增加了空间的深度感。与此同时,这面墙还起到了“视觉屏障”的作用,使屋内的景象不容易被外界看到。
Thus, I planned a house that aligns its axis with the north side where you can obtain the widest view, while laying out the spaces that have their own extensity from the entrance through the backmost terrace. The recess of the symmetric façade composed of the volumes is made into the entrance. The thick and heavy wall positioned at the center adds more sense of depth. It also plays a role of “Eye Stop” that keeps eyes outside from easily coming through.
▼建筑外观,一座厚实的墙壁竖立在入口中央,exterior view: a thick and heavy wall is positioned at the center of the entrance
▼东立面,east facade
▼一座能够在延展视觉的同时保证私密性的住宅,a house that would produce visual expansion while blocking eyes from surroundings
进入门厅后,从顶部投下的柔和光线表达出欢迎之意。这一高大的空间通过无缝的玻璃侧墙实现分隔,为远处空间的视野提供了透视的效果。两面粗犷的高墙带来特殊的指引感和重量感,在中间形成一条通往客厅的通道。通道中安装有一扇可以灵活开关的门,能够引发不同的空间体验。
When entering the hall, the space created by the tall volumes welcomes guests with watery light from the top light. The space is divided by seamless glass sidewalls, which give a perspective effect to visibility of the space beyond. The two rough-textured walls have been provided to give special direction and weighty impression, as well as to make the space in between as a passage to the living room. In the passage, a door has been positioned that can be flexibly opened/closed to develop diverse space experiences.
▼入口空间,entrance area
▼两面粗犷的高墙带来特殊的指引感和重量感,在中间形成一条通往客厅的通道,two rough-textured walls have been provided to give special direction and weighty impression, as well as to make the space in between as a passage to the living room
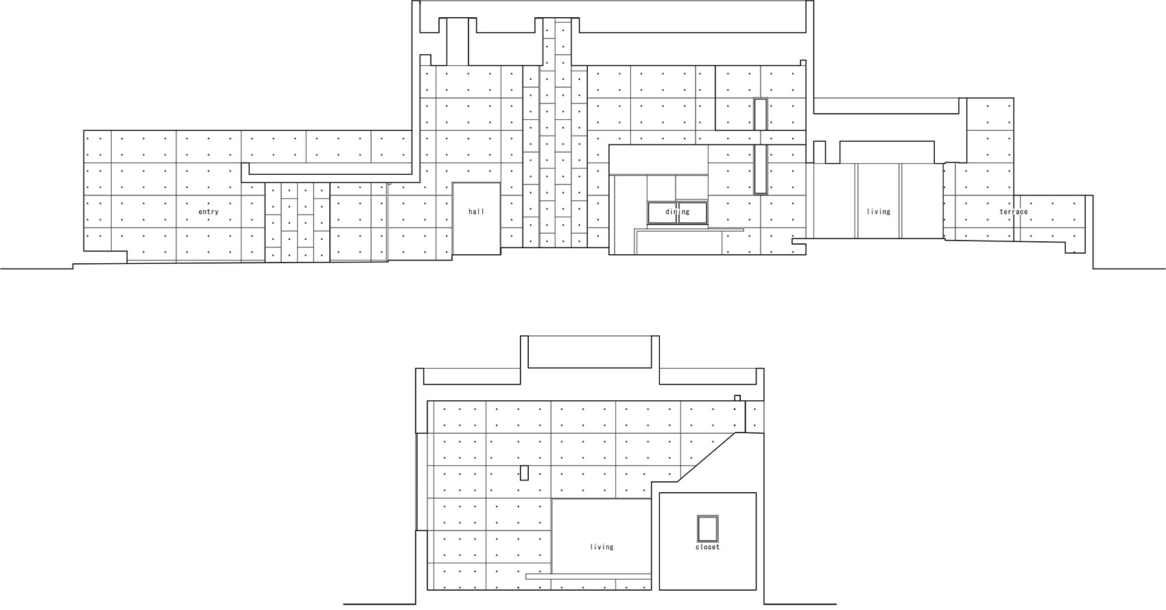
客厅和餐厅相互连接,位于一个十分宽敞的体量当中。变化的天花板高度和地面高度起到了分割空间的作用。精心设置的窗户带来丰富的光线、阴影和纹理,进一步强化了空间的深度。
The living and dining spaces that are connected with each other are encompassed within a large volume embraced by the space. An attempt has been made to segment the space by differentiating ceiling height and floor level. At the same time, the light from a carefully-planned opening has produced changing shadow and texture, and created a deep space.
▼从客厅望向入口,view to the entrance from the living room
▼客厅,精心设置的窗户强化了空间的深度,living room: a carefully-planned opening has created a deep space
▼餐厅和厨房,dinging room and kitchen
▼变化的天花板高度和地面高度起到了分割空间的作用,an attempt has been made to segment the space by differentiating ceiling height and floor level
▼从客厅望向室外平台,view to the open space that is connected with the living room
在住宅的尽头,建筑师引入了一个视野优美且光线充裕的室外开放空间,作为客厅的延伸。开放空间的外围设有露台,二者使用了相同的铺地瓷砖,强调了室内与室外空间的连续性。北侧的玻璃墙与水平的混凝土墙壁共同框选出横向的风景,给人留下难以忘怀的印象。
At the end of the area continued from the entrance, I wanted to realize an open space that incorporates scenes or lights. Therefore, I laid out a room that can be used as an extension of living room, and provided a terrace that surrounds the room. The tiles that are used for the room are also used for the terrace to produce expanding feel while enhancing continuity between inside and outside of the room. Through the glass wall at the north side, you can enjoy the view clipped out by the horizontal line of the wall, making the house impression far richer.
▼视野优美且光线充裕的室外开放空间,the open space that incorporates scenes or lights at the end of the area
空间的序列沿着轴线一路展开,营造出舒适而宁静的氛围,为业主的日常生活带来精致的美感。
The sequence of spaces, which are unrolled along the axis, generates comfortable tranquility that gives exquisite aesthetics to daily life.
▼开放空间外围的露台, the terrace that surrounds the room
▼入口空间细部,detailed view of the entrance
▼平面图,plan
▼剖面图,sections
Architects: FORM / Kouichi Kimura Architects
Location: Shiga,Japan
Client: Private
Construction Year: 2019
Site Area:845,69㎡
Constructed Area:158,65㎡
Photographs: Norihito Yamauchi, Yoshihiro Asada
客服
消息
收藏
下载
最近

























