查看完整案例

收藏

下载
金陵幼儿园位于江苏省徐州市,甲方是一个非常有意思而又有情怀的大叔,项目原本已经施工到一半,又觉得“好像没有做出令自己感动的设计”而另委托我接手接下来的设计。而设计师更是一个极其理想主义而不顾一切的青年。在拿到我的设计稿的时候,甲方第一反应便是:原本只是想通过装修稍微做一下改变,现在看来好像是全部从头再来了。。。非常幸运甲乙双方能够互相认可与支持,才有了这样一个项目。
Jinling Kindergarten is located in Xuzhou City, Jiangsu Province. The client is a very interesting and affectionate man. Originally, the project was half done, but it seemed to him that “the design that made did not touch him”, therefore, he entrusted me to take over the following design. And the designer is also a very idealistic and desperate youth. When I got my design draft, the first reaction of the client was: Originally, I just wanted to make a little change through decoration, but now it seems that I have to start it all over again…It is very lucky that both parties can recognize and support each other, therefore, we have such a project.
▼教室内部主要采用木色和白色色调,明亮又温馨,the materials inside the classroom is the palette of wooden and white color, creating a bright and warm environment
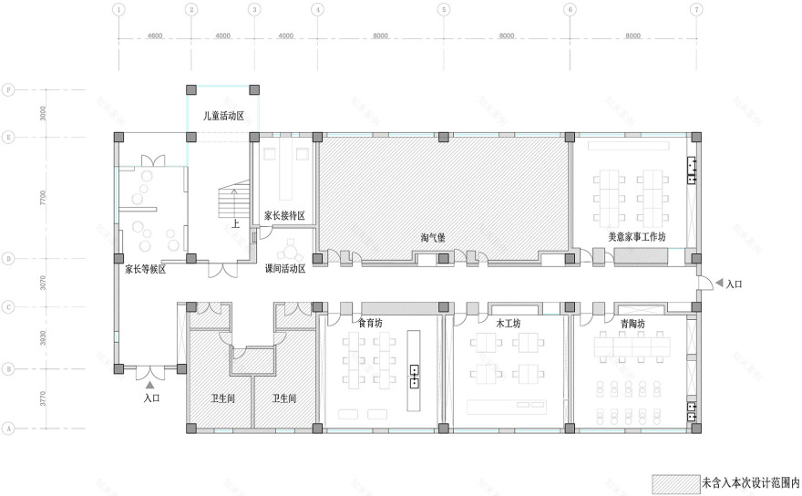
金陵幼儿园建筑面积14000平米,此次设计内容只涉及到其中的一小部分,五间教室(分别为:食育坊、木工坊、青陶坊、家事坊、绘本室)和走廊,除绘本室外,其他均在一楼。建筑原有分隔比较传统,走廊与教室隔绝开来,互不打扰。而学校对于这五部分的课程给了孩子极大的自由,他们可以根据自己的兴趣而自主选择,所以在设计上,将连接这4间教室的走廊设计成一个开放而自由的“连接器”。每个教室有两个大小不同的门,几乎所有的小朋友都会好奇而自觉地通过小门进入教室。墙面局部的圆形洞口成为小孩子玩耍、看书的小世界,而通过这些圆形的洞口、门上的圆形玻璃又可以使走廊与教室形成视觉上的交流,在走廊便可以看见小朋友上课的情形。墙面通过一面的倾斜而打破了原有对称的沉闷感。
▼连接4间教室的走廊充当一个开放而自由的“连接器”,the corridor connecting the four classrooms is designed as an open and free “connector”
Jinling Kindergarten is expected to have a building area of 14,000 square meters. The design content of this time only covers a small part of it, i.e., five classrooms (they are food and education workshop, woodworking workshop, green pottery workshop, housework workshop and picture book room respectively) and corridors, and all except the picture book room are on the first floor. The original division of the building is relatively traditional, with corridors and classrooms separated from each other. The school gives the children great freedom for these five parts of the curriculum, and they can choose their own courses according to their own interests. Therefore, the corridor connecting the four classrooms is designed as an open and free “connector”. Each classroom has two doors of different sizes, and almost all children entering the classroom through the little gate are conscious and curious. The circular holes in the wall become a small world for children to play and read. Through these circular holes and the circular glass on the door, the communication between the corridor and the classroom can be formed visually. In the corridor, children can be seen having classes. The wall has broken the original and symmetrical depressing feeling through the inclination of one side.
▼墙面一面倾斜,从而打破了原有对称的沉闷感,the wall has broken the original and symmetrical depressing feeling through the inclination of one side
▼每个教室有两个大小不同的门,each classroom has two doors of different sizes
▼走廊和门上的圆形玻璃又可以使走廊与教室形成视觉上的交流,the circular glass on the wall and door forms the communication between the corridor and the classroom
教室内部材料主要采用木色+白色,明亮又温馨。墙面增加了大面积的柜子用以储存手工课程各种各样的工具。
The materials inside the classroom mainly adopt wooden color + white color, which is bright and warm. And a large area on the wall has been left for installing cabinets, which can be used to store various tools for the craft course.
▼墙面局部的洞口成为小孩子玩耍、看书的小世界,the holes in the wall become a small world for children to play and read
▼食育坊,food and education workshop
▼木工坊,woodworking workshop
▼青陶坊,green pottery workshop
▼青陶坊入口,entrance for green pottery workshop
▼家事坊,housework workshop
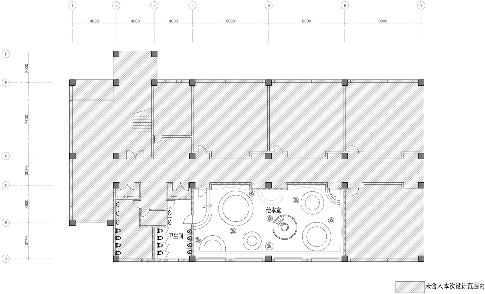
绘本室位于二楼,相对安静。将原本的地面抬高,形成犹如星球表面的坑洞般一个个下陷的圆洞,孩子可以在里面看绘本、讲故事。中间圆柱内部为旋转楼梯,孩子可以在里面玩耍。
The picture book room is on the second floor, which is relatively quiet. The original ground surface is raised and has formed one after another round sunken holes like the holes in the surface of the planet, where children can read picture books and tell stories. Inside the center cylinder is a spiral staircase where children can play.
▼位于二楼的绘本室,将原本的地面抬高,形成下陷圆洞作为阅读和讲故事空间,the original ground surface of picture book room on the second floor is raised and forms round sunken holes for reading
▼中央圆柱内部为旋转楼梯以供孩子在里面玩耍,inside the center cylinder is a spiral staircase where children can play
▼一层轴测图,1F axon
▼二层轴测图,2F axon
▼一层平面图,1F plan
▼二层平面图,2F plan
客服
消息
收藏
下载
最近























