查看完整案例

收藏

下载
Métropole诺曼底鲁昂总部大楼在塞纳河畔构成了一道别致、显著而和谐的风景线。它的与众不同之处在于,新的建筑与鲁昂的周边景观显得和谐一致。大楼动态的造型与主港口寻常的扁平设计形成了对比,而其轮廓剪影则与右岸翻新过的工业建筑相互呼应。倾斜的形状使人联想到起重机和港口中的其它事物,还有经过的轮船的船首……
The headquarters of Métropole Rouen Normandie is a unique, memorable and fitting image on the banks of the Seine in Rouen. What makes it so unique is how the new building fits in with the surrounding landscape of Rouen. The building’s dynamic profile contrasts with the omnipresence of horizontal designs found along the major port, while its silhouette echoes the renovated industrial buildings on the right bank. The oblique shapes are reminiscent of the silhouettes of cranes and other objects in the port and the bows of the passing ships…
▼建筑外观,external view
▼动态的造型与港口的扁平设计形成对比,the building’s dynamic profile contrasts with the omnipresence of horizontal designs found along the major port
建筑充分展示并利用了场地的特征,突显了左岸的都市气息。作为未来公园扩建的一部分,大楼充当了生态区域建设中的领头项目。尽管这是一座明显的当代都市建筑,但它却早已与周围的教堂、福楼拜大桥等建筑融为一体,同时将码头的独特景观和港口的历史结合起来。多面而透明的体量与诺曼底上空不断变化的光线、河水的反射以及天气带来的色彩变化形成互动。建筑表面覆盖着精致的彩色玻璃,看上去宛如鱼的鳞片。
The building showcases and utilises the site’s strong presence to enhance urban life on the left bank. As an extension of the future park, the building is the figurehead of the future eco- district. It is a contemporary metropolitan icon, but already forms part of the surroundings, much like the cathedral and the Gustave Flaubert bridge. It blends in with the unique visual landscape of the quays and the history of the port. Its multi-faceted, transparent architecture plays with the changing light of the Normandy sky, reflections from the water, and the colours of the climate. The building is covered with fish-like ‘scales’ made of subtly coloured glass.
▼该建筑是未来公园扩建的一部分,as an extension of the future park, the building is the figurehead of the future eco- district
▼多面、透明的体量,the multi-faceted, transparent architecture
▼建筑表面覆盖着“鱼鳞”般的彩色玻璃,the building is covered with fish-like ‘scales’ made of subtly coloured glass
玻璃鳞片同时反射和折射着阳光,下方河流的反射使光晕的色彩变得愈发明艳。这一效果的设计灵感来源于印象派的画作,尤其是莫奈的作品。玻璃表面包覆着一层金属氧化物,使建筑外表产生彩虹色的光芒,同时保证了内部的采光不受阻碍,可谓是对莫奈笔下的鲁昂大教堂的色彩变化进行的一次当代性的阐释。双层的立面为建筑带来了被动式的热防护系统。屋顶的鳞片为太阳能板让出空间,大大促进了建筑的能量自给自足。这些太阳能板制作于欧洲,其设计十分具有现代感,在保障能源产量的同时更带来微妙的色彩变化。
Reflecting and refracting the light of the sun, the glass scales cover the building with hints of colour that are further enhanced by the reflections from the river below. The effect is inspired by impressionist painting, and in particular Claude Monet. The glass is covered with a layer of metal oxide creating a colourful iridescent reflection from the outside, but disappearing on the inside leaving the light in work areas unaffected. These changing colours are a contemporary interpretation of the chromatic variations in Claude Monet’s many paintings of Rouen Cathedral. The double layered façade provides the building with passive thermal protection. On the roof, the glass scales make way for solar panels that provide a considerable contribution to the building’s energy self-sufficiency. Manufactured in Europe, the panels are modern in design and provide varied nuances of colour while ensuring high energy yield.
▼建筑表皮的光影变化,the chromatic variations of the glass scales over the building
▼屋顶装置着太阳能板(右侧), on the roof, the glass scales make way for solar panels (on the right)
▼立面细部,detail of the facade
立面的透明度和深度丰富了光照的层次,消除了建筑的体量感。建筑的外观在白天不断改变,随着阳光的透入,呈现出漂浮在码头上空的姿态。在印象派的表皮内部,按功能排布着一系列工作空间。首层的接待处提供了直接通往各层的路径。除接待处外,会议室、服务设施与活动空间皆位于地面层。在屋顶层,宽阔的露台向入口所在的方向延伸,带来城市与河流的全景视野。
The transparency and depth of the double façade enhance the variations of light and prevent the building from appearing overbearing. The building’s appearance transforms throughout the day. With the light shining through, it appears to float on the quay. Under the impressionistic outer layer, the work spaces are arranged according to their use. The ground-floor reception area provides direct access to the floors above. The floor on the quay-level provides reception areas, meeting rooms, services and support activities. On the building’s roof, the large terrace extends the reception areas and offers a panoramic view over the city and river.
▼屋顶平台带来城市与河流的全景视野,the roof terrace offers a panoramic view over the city and river
▼贯穿上下楼层的天井将自然光引入建筑核心,a gap that stretches from top to bottom separates the building in two and brings natural light to the heart of the building
不同的办公室分布于不同的楼层,拥有优越的采光条件。一条贯穿上下楼层的天井将建筑一分为二,并将自然光引入建筑的核心。在个别楼层,这条缝隙的宽度有所增加,形成可供参观者进入的中庭空间。基于高效舒适的设计目的,建筑同时具备了创新性和示范性。大楼内部的体验十分轻松便捷,工作空间和公共区域同时得到了强调。
The offices are spread over the floors and enjoy excellent lighting. A gap that stretches from top to bottom separates the building in two and brings natural light to the heart of the building. It widens to form patio spaces on certain floors, creating terraces accessible to visitors. Designed with the aims of efficiency and comfort, the building is both innovative and exemplary in nature. Navigating your way through the building is easy and intuitive, and the emphasis is placed both on the work spaces and community areas.
▼接待处,reception
▼明亮的办公和公共空间,work spaces and community areas with excellent lighting
▼夜景,night view
▼立面色彩变化分析图,chromatic variation diagram
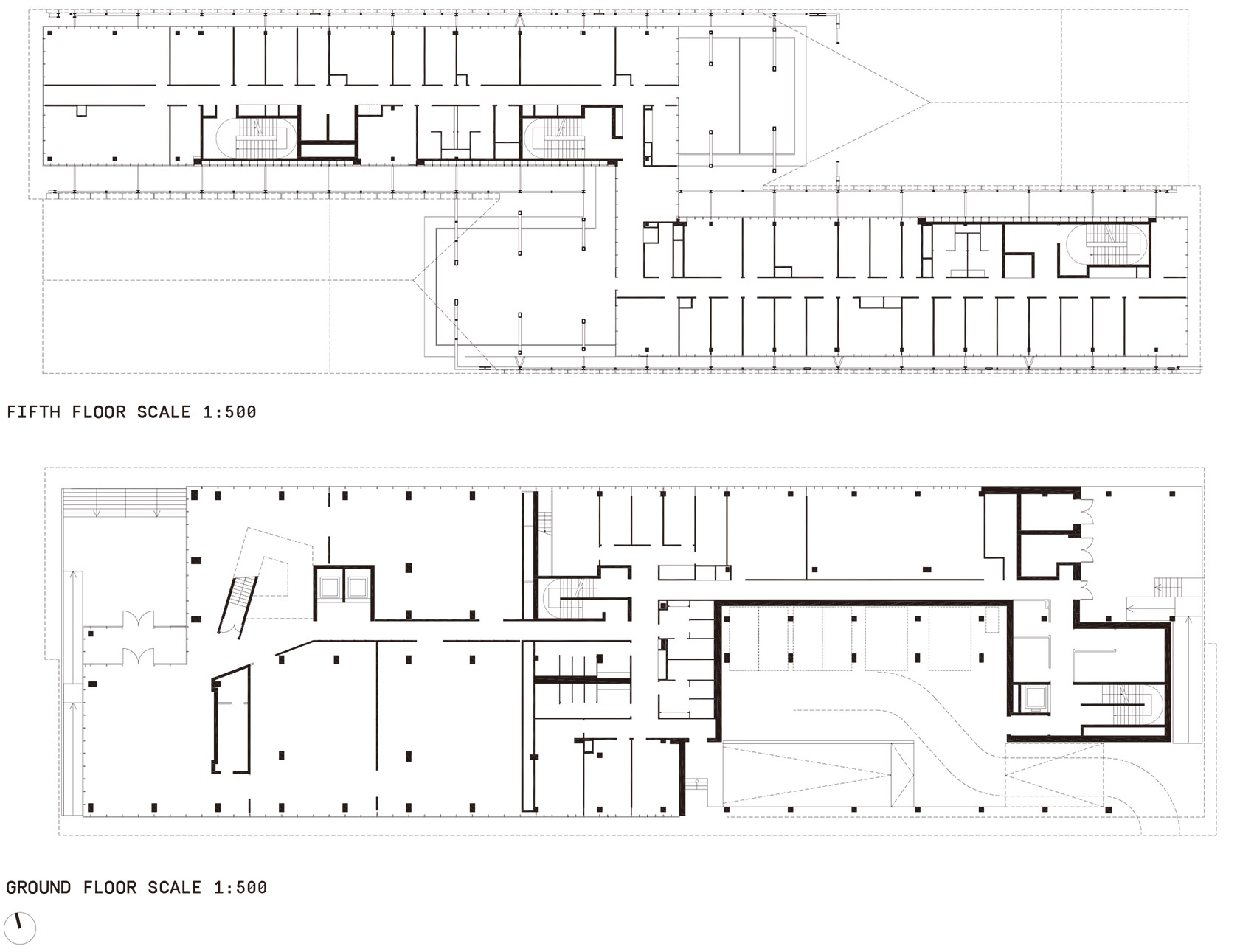
▼一层及六层平面图,ground floor plan and fifth floor plan
▼北立面图,north elevation
▼纵剖面图,longitudinal section
▼横剖面图,cross section
Headquarters of Métropole Rouen Normandie
Architectural team:
Jacques Ferrier Architecture: head architect
Studio Pauline Marchetti and Sensual City Studio: signage,
design and scenography of the hall
C&E ingénierie: structural engineering
SOGETI: engineering of fluids and economical construction
ACV: acoustics
Client: Métrople Rouen Normandie
Area: 8300 m2
Cost: 25 000 000 € HT (year 2017)
Delivery: July 2017
Labels: Bepos & PassivHaus.
Address: 108 Allée François Mitterrand, 76000 Rouen, France
Programme:
Headquarters of Métropole: offices, meeting spaces, reception
and exhibition areas.
Photography © Luc Boegly
客服
消息
收藏
下载
最近

































