查看完整案例

收藏

下载
建筑坐落于湿地旁的沙丘之上,顺着水岸蔓延的沙滩带来开阔的景观视野。这座季节性使用的度假屋最多可以容纳3对伴侣同时使用,而在旅游季节之外的时间则可以长时间租用。间歇性的使用期和与世隔绝的区位让建筑师将其视作旅馆与度假小屋两个截然不同的模型的叠加。旅馆客房是与外界直接相连的独立空间,而度假小屋中的公共空间则营造出独有的凝聚力。四个空间被中部的共享厨房连接在一起,形成紧凑而高效的空间格局,而在空间的外侧,立面隔板可随需要或开或合,赋予了空间更多的灵活性。
This project is by a long, open beach, on a desert dune rising in front of a wetland. It is a seasonal house to accommodate up to three couples, and can be leased or bartered the rest of the year. Its intermittent occupation and isolated location led us to think of it as a superposition of two models: the motel and the cabin. The motel suggests self-sufficient rooms served from the outside by a second access, while the cabin presumes a centralized space that brings the community together. A set of 4 rooms come together in a shared central kitchen, forming a larger compact structure enclosed by mobile panels, which open different possibilities of use according to their position.
▼ 海岸边,沙丘上的建筑,The building is locates on a desert dune by the beach
在建筑的最外侧,72扇木门附着于井然有序的柱子之上,包围着建筑空间。当木门全部打开,每一间住宅庭院便是一个与外界相连的独享空间,而木质结构则框起了一幅幅壮阔的风景画。当木门全部关闭,则形成了一个个不受外界风雨与视线干扰,但又与其邻居通过外围廊道相连的私密空间。打开木门,外向的风景突出了客房空间的独立性,关闭木门,内向的空间则将促进内部公共空间的使用。
Outside these rows of pillars, 72 wooden doors enclose the house. When opened outward, each room-courtyard is a private space connected to the outside by a row of portals framing the horizon. When closed, instead, they become an intimate space, protected from the wind and the views, but opened to its neighbors through a perimeter porch. Opening the views foster independence. Closing some doors can open common uses.
▼ 建筑立面隔板完全关闭,形成封闭的空间,The wooden doors close to form an intimate space
▼ 建筑立面隔板完全打开,形成开放的空间,The wooden doors open to form a private space connected to the outside
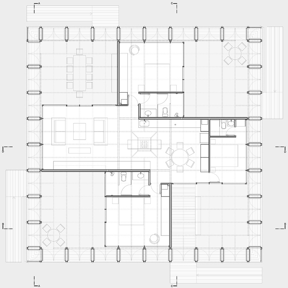
在客房的外侧,横梁在与房间空间大小相差无几的私家庭院中投下交错的阴影。庭院的两侧面朝着外侧辽阔的原野,而另一侧则用墙体与相邻空间划分开来。四个空间垂直相交,在正方形的建筑基础上形成一个十字相交的空间体量。而在建筑的一侧,与厨房、餐厅相连形成公共空间的起居室坐拥着开阔的海景,遥望着远处的天际线。另一侧的客房则眺望着一望无际的湿地,而在空间的左右,两间大小尺度完全一致的庭院客房则坐看沙滩两侧向外延伸的半岛。
Each room consists of an interior space connected to an equivalent-sized courtyard, both covered by a common beamed ceiling, with two sides open to the outside and a wall separating them from the adjoining unit. These four structures are placed together in a perpendicular axis from one another, conforming a cross plan over a squared base. The tip of this form, which faces the horizon, hosts a living room connected to a kitchen and dinning room in one common area. The opposite end contains a guest room with views to the wetland. At either side, two units host equal master bedrooms-courtyard facing the peninsulas located at both ends of the beach.
▼ 建筑结构,Building Structure
▼ 连接内部各空间的内廊,The perimeter porch connects the neighbors
▼ 横梁在与房间空间大小相差无几的私家庭院中投下交错的阴影,The courtyard is covered by a common beamed ceiling
为了避免金属连接构建被因海风侵蚀、氧化进而影响到建筑结构的稳定性,这座以松木打造的建筑结构完全以胶水粘合。梁柱结构的天花系统被划分为四个独立的长方形结构,下层与天花系统相连的承重墙体与外围门廊则免去了斜向支撑构建的出现。呈螺旋状分布的四个结构单元在中心处交汇,在中央厨房空间的上空留下了一个方形天窗。而与天窗中轴相错半个模块的外围立面隔板系统则形成了斜向的视野空间,让外部的景观仿佛一幅变幻不定的风景画。
The construction is entirely conceived in pinewood with glued joints managed without metal pieces exposed to the sea oxide. The beamed ceiling is developed in four separate rectangular structures, settled over the walls and a perimeter porch avoiding diagonal main beams. The rotated disposition of these four structural units leaves a skylight above the central kitchen. By shifting the openings of the exterior structure by half a module from the axis of this skylight, a diagonal view is generated from the kitchen’s center, fostering the perception of the exterior as a moving panorama.
▼ 公共空间,The common area
▼ 从客房看向庭院与外部壮丽的风景,View from the bedroom to the courtyard and the landscape
▼ 封闭式与开放式平面图,Plan with closed and opened doors
▼ 屋顶平面,Roof Plan / 屋顶结构,Roof structure
▼ 立面与剖面,Elevation and section
Architect: Cristián Izquierdo
Structure: Cristián Izquierdo
Structural consultancy: Osvaldo Peñaloza
Constructor: Danilo Saldibar
Project Date: January – June 2015
Construction Date: August 2015 – May 2016
Materials: – Laminated pine wood structure
– SIP walls of 116 mm. width
– Pine wood doors, interior and exterior claddings
Photos: Tomás Rodríguez.
客服
消息
收藏
下载
最近




















