查看完整案例


收藏

下载

翻译
Located between Brickfields, a former colonial neighborhood, and Bangsar, an up-and-coming area of Kuala Lumpur, the project is situated at the junction between these two districts, old and new, a conceptual linkage between the past and the present. The hotel occupies the ground floor and the top eight floors of a new tower, with five levels of guest rooms and three levels of public areas, with Neri&Hu responsible for both architecture and interior design. A rigid structural grid defines the project from outside to inside, signaling its presence on the façade, while acting as a framework within which each function of the hotel is contained.
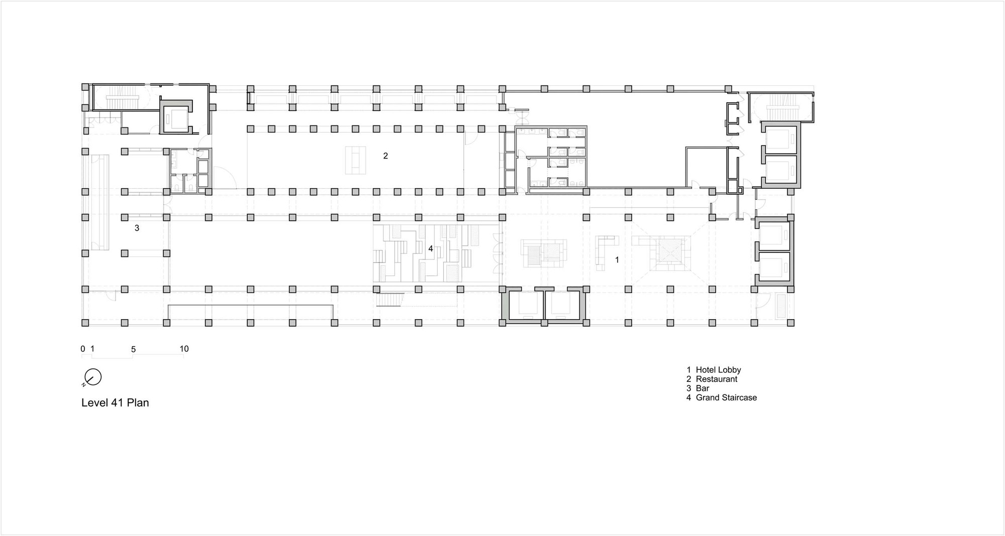
On the ground floor the guest is guided along the building and into the lower lobby through the regular intervals of the structural grid which form the entry doors as well as a protective canopy. Upon entering, the concept of an “urban oasis” is immediately present through the lush tree plantings throughout the interiors. Arriving at the upper lobby on level 42 the guest is welcomed into a double height space, a lantern open to the surrounding city which allows the maximum natural light.
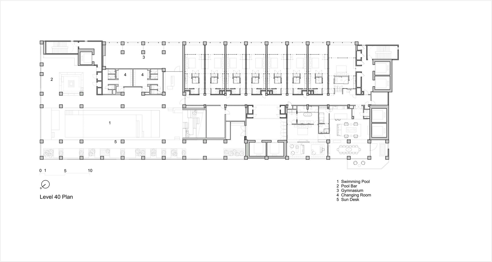
Adjacent to this is the swimming pool, connected by a theatrical grand staircase, which becomes a stage to see and be seen. In this moment the boundary between interior and exterior blur, while the structural grid breaks open to form a courtyard, around which all activities within the hotel are centered.
The public areas of the hotel center around the open exterior courtyard, spanning three stories high, defined by the regular grid of columns and beams which frames views of the stunning panorama but also protects the inserted courtyard from the crowd of the surrounding metropolis. The notion of landscape continuing in from exterior to interior, of nature being inserted into the architecture, is the key element which ties all the public spaces together and defines the urban oasis.
Located on the top two levels of the courtyard are the specialty restaurant, the cocktail bar and the outdoor rooftop bar. All the venues converge around the courtyard to activate this space in unexpected ways at all hours of the day. Custom furniture and crafted bronze details compliment the simple material palette of gray stone, white plaster and Balau wood.
For the guestrooms, the concept was to define the layout with two different elements: “the hut” and “the indoor courtyard”. Following the analogy of a small village the hut is the indoor space where the functions of daily living are enclosed. The bathroom is inserted as a floating box in the hut structure and allow for free-flowing circulation around the space.
The indoor courtyard at the end of the room, close to the window, becomes a private sanctuary to take in the beautiful view of Bangsar and beyond.
客服
消息
收藏
下载
最近



















































