查看完整案例


收藏

下载
ARGILE
MatteoBrioni
源于意大利,原材料是精心预选的来自不同地区的黏土和骨料,并混合在一起以获得适合的色彩、触感。一种质感艺术且带有侘寂感、松弛感很强的原泥。
在最初了解项目时我们便十分兴奋,两个有趣的品牌放在一个100平米左右的空间展示,正是我们非常想尝试的不同的空间感受,面积不大,既要体现两个品牌的涂料特色又要融合两个品牌展成空间;
两个来自不同国家的顶级涂料,不同风格,不同质感,不同的性格画像,但有着相同的
理念出发点,艺术赋能,将大自然作为灵感,共存于一个空间之中,不是难题,反而是突破点
,会产生怎样的对话与碰撞。
穿/越
我们将这次的空间概念定义为“穿/越”,不是时间上,而是空间上的一种穿插和对话。
通过
精致的经典法式线条凸显高贵和复古
,通过
极简意式返璞归真的纹理和质感
,将法式
复古艺术和意式自然艺术
在一个小小的展厅空间中呈现。
空间效果图
入口内侧,我们使用意大利侘寂肌理做底面,结合法国涂料开放式的橱窗展示,将他们可爱的小小的涂料罐作为装饰品一样呈现在入口位置,让人一眼就了解到涂料展厅的展品特色。
端头采用argile涂料绿灰色为主调的洽谈室,安静私密十分方便沟通待客。
最终实景呈现
面向商场的开放式门头,我们将三分之二的面积用一面引导墙引导人们走入展厅,墙面局部开洞的处理,让人在商场的过道走动时依稀看到内部的空间,但是只有真正进入才能一睹真容,同时曲面的墙体也将整个空间划分出入口和内厅空间,入口处两面墙展示涂料特色。
步入空间,两面意大利MatteoBrioni的艺术肌理墙面 ,通过三到四层的肌理覆盖出极具质感和艺术感的墙面,转角的艺术品展示与墙面很好的结合出空间场域。
进入到内厅,一面干净的白墙镶嵌着简约的法式线条,抬头向上顶部法式花卉线条造型,挂下一盏灯照亮台面。
我们使用法国涂料,结合空间设计的中岛桌,在极致的空间下尽量多的展示涂料的特性,尤其是好的涂料不仅仅是墙面,地面和桌面也可以
同时使用,使空间更加干净整体。
在线条的背后还隐藏了一个展示通道,能够看到地面也是如此。
从不同的角度看都能透过去,看到再里面的法式空间,也能看到外面的意大利艺术墙面,这里像是个空间穿越的通道一般神奇。
内厅的白色墙面周围及背后使用意大利产品的拉槽纹理,手工控制纹理,不像机械般的死板,何时断开,轻微抖动变化都来自于意大利师傅的审美,这就是意大利涂料的艺术感呈现,一种会呼吸的线条感。
最里面相对窄长的法式复古感的空间,角落是双拼色块呈现出argile涂料的特色,分色涂刷。
顶面的简约复古和地面的黑色石材人字拼互相衬托出这个
空间的分量。
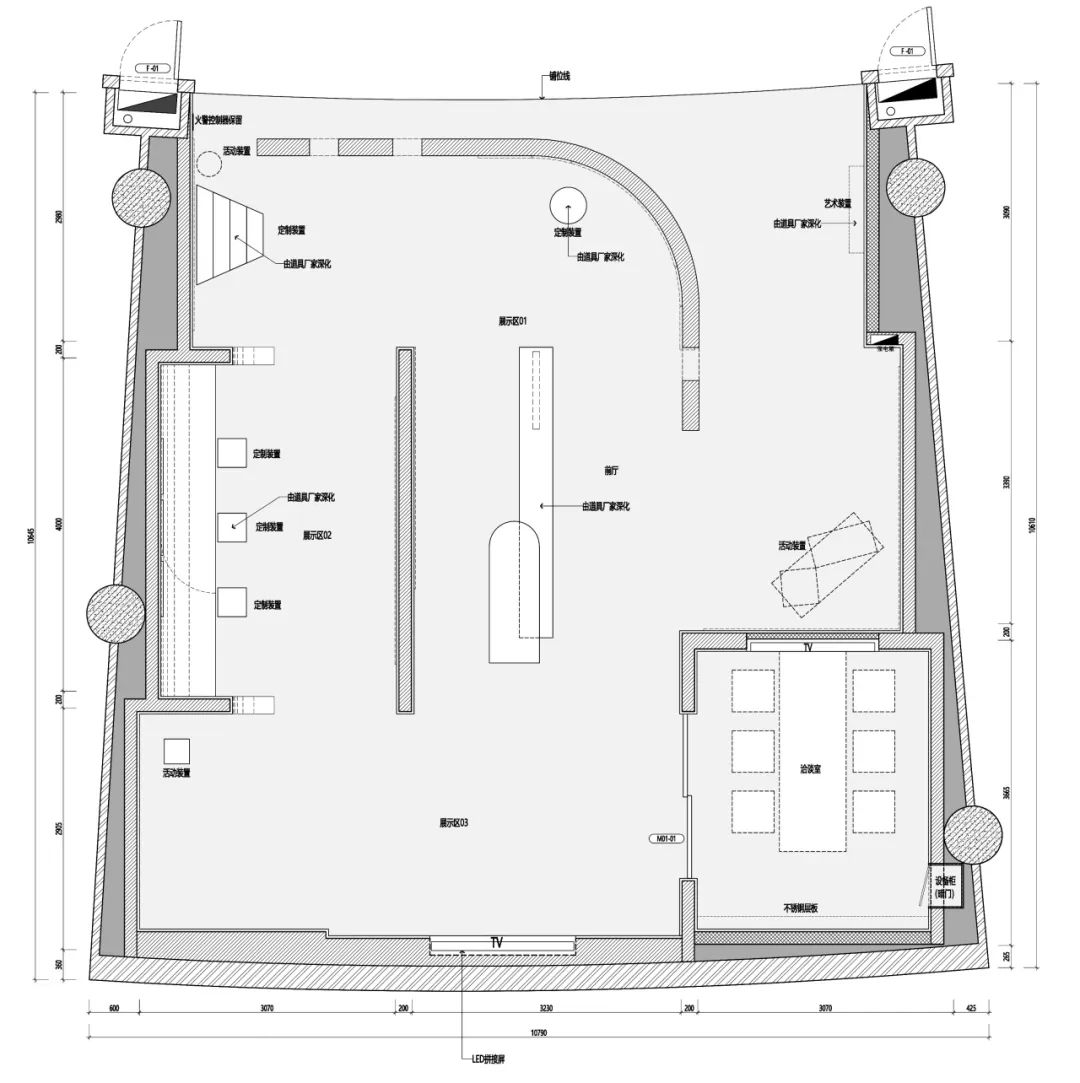
空间平面图
我们更多的是在小空间里延伸出展示面,
展示面之间互相穿透,你中有我,我中有你
的感受。我们觉得最好的展示一定是
对话,一定是大大方方的展示自己优势,就像是法国的典雅感,边上出现意大利的质感姹寂,我相信这两个优秀的品牌放在一起会让人难以抉择,谁都爱哈哈。当空间通过穿插和视觉互通后移步异景,在小小的空间就会有更多更丰富的视觉体验。
UDstudio(unoduestudio)
客服
消息
收藏
下载
最近













































