查看完整案例

收藏

下载
我们觉得,做设计,差异化是很重要的。幸运的是,克凡夫妇也给了我们这样一个自由发挥的机会。
We feel that it is important to differentiate ourselves by doing design. Fortunately, Mr. and Mrs. Kevan also gave us such a chance to play freely.
▼咖啡店外观概览,overview of the coffee shop’s exterior ©何博
在这样一个繁华又忙碌的城市,找到一个悠闲自由的地方是不太容易的。可以坐在窗前看着日起日落,看着微风中摇曳的狗尾巴草,喝着咖啡,带着宠物度过一个慵懒的下午,选择蛇口这个创意园也是这个原因。
In such a busy and hectic city, it’s not easy to find a place to relax and be free. You can sit in front of the window and watch the sunset, watch the dogwood swaying in the breeze, drink coffee and spend a lazy afternoon with your pet, and this is the reason why we chose this creative park in Shekou.
▼咖啡厅室内空间概览,overview of the coffee shop’s interior ©何博
长期以来,我们不仅聚焦设计语言和设计手法本身,也在更多思考消费者场景,为他们创造更好的消费记忆画面,同时也希望弱化空间里设计的存在感,更多体现空间与人的融合感,赋予空间自由理解的艺术性。这次的选址在一个闲置的玻璃厂,通过改造它,想要赋予店铺本身比较强的社区属性。
For a long time, we not only focus on the design language and design approach itself, but also think more about the consumer scenario to create a better consumption memory picture for them, and at the same time, we hope to weaken the presence of design in the space, reflect more the integration of space and people, and give the space the artistry of free understanding. The site was chosen in an idle glass factory, and by renovating it, we wanted to give the store itself a strong community attribute.
▼咖啡店受到了当地社区的欢迎,the coffee shop is popular in local community ©何博
所以在吧台手冲位的距离,室内卡座位的舒适度,户外场景和室内的融合性,以及空间的灵活利用度上面,我们都做了大量的思考。
Therefore, we have done a lot of thinking about the distance of the bar, the comfort of the indoor seating, the integration of the outdoor scene and the indoor scene, and the flexible use of space.
▼咖啡店室外座椅,the outdoor seats of the coffee shop ©何博
▼由入口处看向室内用餐区及咖啡吧台,a view from the entrance to the main dining area and the bar ©何博
▼咖啡吧台及主餐区,the coffee bar and the main dining area ©何博
▼室内座椅近景,close shot of the indoor seats ©何博
原有的长方体空间,我们拆除了原有墙体,重塑立面,做一个新的“绿盒子”。正立面采用大面积折叠窗,室内室外可以通过开关窗的不同状态达到内外交错的效果,模糊空间分割,创造“屋内人屋外景”的交流感。深圳有台风以及夏季高温时,折叠玻璃也可以将室内外分区,达到功能上的灵活性。
We removed the original rectangular space and reshaped the façade to make a new “green box”. The front façade adopts large folding windows, so that the interior and exterior can be intertwined by opening and closing the windows in different states, blurring the spatial division and creating a sense of communication between “people inside and outside the house”. When there are typhoons in Shenzhen and high temperatures in summer, the folding glass can also partition the indoor and outdoor areas to achieve functional flexibility.
▼咖啡店入口处夜景,night view of the coffee shop entrance ©何博
▼室外咖啡区夜景,night view of the outdoor dining area ©何博
同时,为了较好的控制施工预算,我们选择将普通材料(镀锌板和多层板)根据不同用途进行处理。比如生产镀锌板的时候,控制好电解工艺,使得镀锌板冰花纹较小、密集、均匀。多层板表面压合了一层树脂复合材料(这个材料也是特地研发出来的)使得多层板道具特别的同时,抗指纹,耐用。
At the same time, in order to better control the construction budget, we choose to treat common materials (galvanized sheet and multi-layers) according to different purposes. For example, when producing galvanized sheets, the electrolytic process is controlled so that the galvanized sheet ice pattern is small, dense and uniform. The surface of the multi-layer board is laminated with a layer of resin composite material (this material is also specially developed) making the multi-layer board props special and at the same time, anti-fingerprint and durable.
▼镀锌板及多层板近景,close shot of the special galvanized sheets and multi-layer board ©何博
设计手法上,采用阴阳面的做法。从左至右45度视角看去,大部分材料呈奶明黄和牛油果绿,而从右至左45度视角看去,大部分材料则呈多层板本身的木质颜色,从而带来两种不同的感官体验。在颜色、建筑造型以及比例方面,不难看出在致敬经典——包豪斯。颜色上运用牛油果绿、原木、奶明黄结合的配色,复古清新,正门大胆运用红色,与绿色对撞,打造减压、放松、清新的主题,逃离喧嚣,让情感得到更好的释放。
Design approach, the use of the yin and yang approach. From left to right 45 degree view, most of the material is milk bright yellow and avocado green, while from right to left 45 degree view, most of the material is the wood color of the multi-layer board itself, thus bringing two different sensory experience. In terms of colors, architectural shapes and proportions, it is easy to see the tribute to the classic – the Bauhaus. The color combination of avocado green, raw wood and milky yellow is used in the color scheme, which is retro and fresh. The main entrance boldly uses red, which collides with green to create a theme of decompression, relaxation and freshness, escaping from the hustle and bustle and allowing for better emotional release.
▼咖啡店外观夜景,night view of the coffee shop’s exterior ©何博
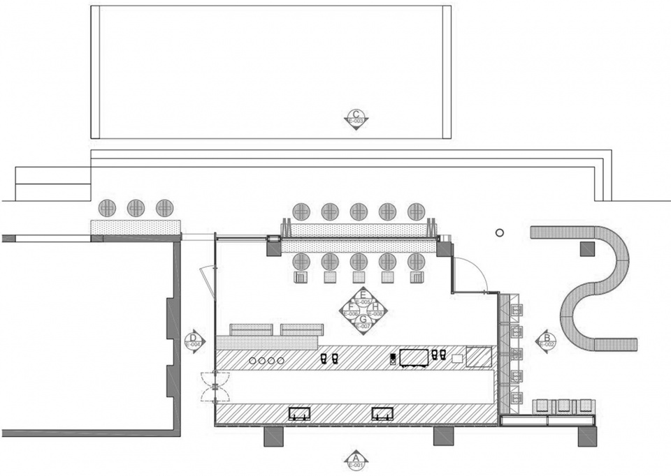
▼平面图,plan ©晓鸥设计事务所
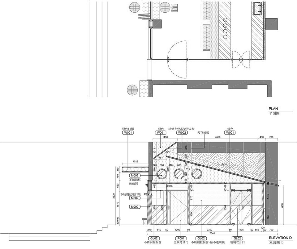
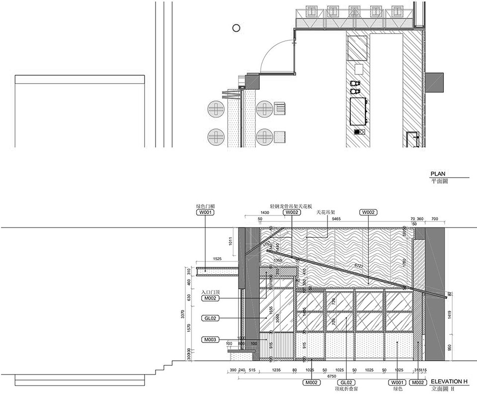
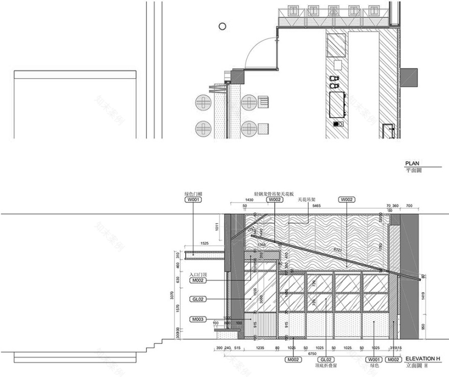
▼立面图,elevation ©晓鸥设计事务所
客服
消息
收藏
下载
最近






















