查看完整案例

收藏

下载
博科尼大学的新城市校区位于米兰市中心附近的开阔场地上,与既有大学校园相邻。
The new Urban Campus for the Bocconi University is located on a large site close to the city center of Milan, adjacent to the existing university.
▼项目概览,Overall view © SANAA
项目由数座建筑构成,并且各自拥有自己的功能布局,包括教学和行政楼(一系列相互连接的单元)、宿舍楼和一个娱乐中心。建筑群坐落在一个新建的公园内,同时向大学学生和一般公众开放。
The project comprises several buildings, each with its own program: the teaching and administration building (a number of interconnected cells), dormitories and a recreation center. These buildings sit in a new park that is open to both the university population and the general public.
▼建筑体量近景,A close view to the building volumes © Filippo Fortis
▼餐厅区域,Restaurant area © Filippo Fortis
▼行政会议厅,Executive pod- meeting area © Filippo Fortis
构成教学和行政楼的体块彼此轻触,便于学生和老师在不同单元间穿行。每个楼层的边缘都设有阳台,并遮挡以起伏的金属网,与城市形成相互渗透的关系。每个体块都包含一个室内庭院,符合米兰建筑的一贯特征。不同的庭院有着不同的设计特点,同时又充当着更大系统中的一部分。
The volumes that compose the teaching and administration building touch one another lightly, allowing for a flow of students and professors from one cell to the next. Every floor has balconies along its perimeter, screened by an undulating metal mesh that creates a porous relationship with the city. Each volume has an interior courtyard, typical in Milanese architecture and each is designed to have its own distinct character while being part of a larger system.
▼楼层边缘遮挡以起伏的金属网,Every floor has balconies screened by an undulating metal mesh © Philippe Renault
▼从室内望向公园绿地,View towards the green area of the park © Philippe Renault
▼通透的建筑立面,The permeable facade © Philippe Renault
除了庭院外,地面层还设有多处门廊,为社交、学习和户外聚会提供了宁静的环境。
These are lined with porticos at ground level offering peaceful environments for socializing, studying and gathering in the open air.
▼户外空间,Outdoor space © Philippe Renault
室内空间以一系列立柱、透明的空间和树木为特征,人们在进入它时便能体验到建筑整体的通透感。
Once inside, the architecture is permeable throughout and characterized by a sequence of columns, transparent rooms and trees.
▼咖啡厅区域,Cafe – seating area © SANAA
▼教室,Classroom © Philippe Renault
▼娱乐中心 – 体育馆,Recreation center – sports hall © Filippo Fortis
▼娱乐中心 – 游泳馆,Recreation center – swimming pool © Philippe Renault
公园也拥有自己的多个庭院,它们由一系列门廊构成,使花园小路免受日晒雨淋。
The park presents courtyards of its own, formed by a series of porticos that shelter the garden pathways from sunshine and rain.
▼城市街道视角,View from the urban street © Filippo Fortis
▼场地平面图,Site plan © SANAA
▼一层平面图,Ground floor plan © SANAA
▼二层平面图,Second floor plan © SANAA
▼地下层平面图,Basement floor plan © SANAA
▼一层平面图(细节),Ground floor plan – Detail © SANAA
▼标准层平面图(细节),Typical floor plan – Detail © SANAA
▼立面图,Elevation © SANAA
▼剖面图,Section © SANAA
▼墙面结构细部,Details © SANAA
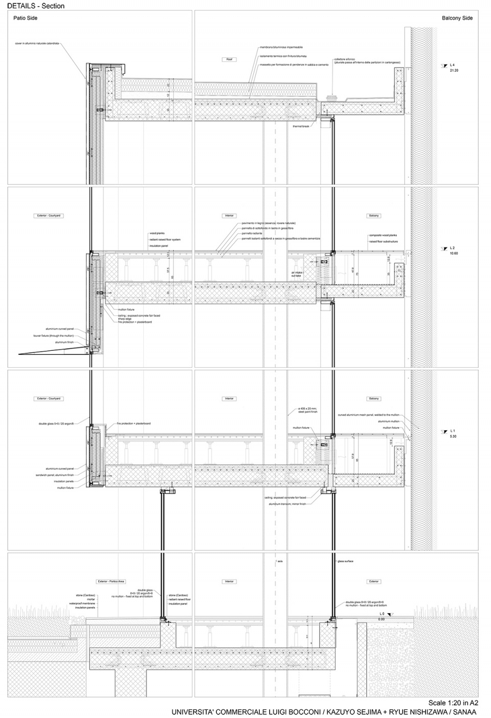
▼剖面细部,Details -section © SANAA
NEW URBAN CAMPUS FOR BOCCONI UNIVERSITY
NUOVO CAMPUS URBANO UNIVERSITA’ BOCCONI
Cliente / Client: Universita’ Commerciale Luigi Bocconi, Milano
Architetto / Architect: SANAA / Kazuyo Sejima + Ryue Nishizawa
Team di progetto / Design Team: Yoshitaka Tanase, Francesca Singer, Nicolo Bertino, Lucy Styles, Enrico Armellin, Serena Di Giuliano
Architetto Locale / Architect of Record: Costa Zanibelli Associati
Architetto Esecutivo / Executive Architect: Progetto CMR Engineering Integrated Services s.r.l.
Masterplan e Progetto Urban / Urban Project: FOA – Federico Oliva Associati
Concept Strutture / Structural Concept: SAPS
Ingegnere Strutture / Structural Engineer: Studio di Ingegneria Pereira
Supporto Scientifico / Scientific Support: Politecnico di Milano
Ingegnere impianti / Mechanical Engineer: Advanced Engineering s.r.l.
Antincendio / Fire Safety: Ing. Silvestre Mistretta
Sicurezza / Safety Coordination: Soluzioni s.r.l.
客服
消息
收藏
下载
最近

























