查看完整案例

收藏

下载
小宅空间
Dubkova
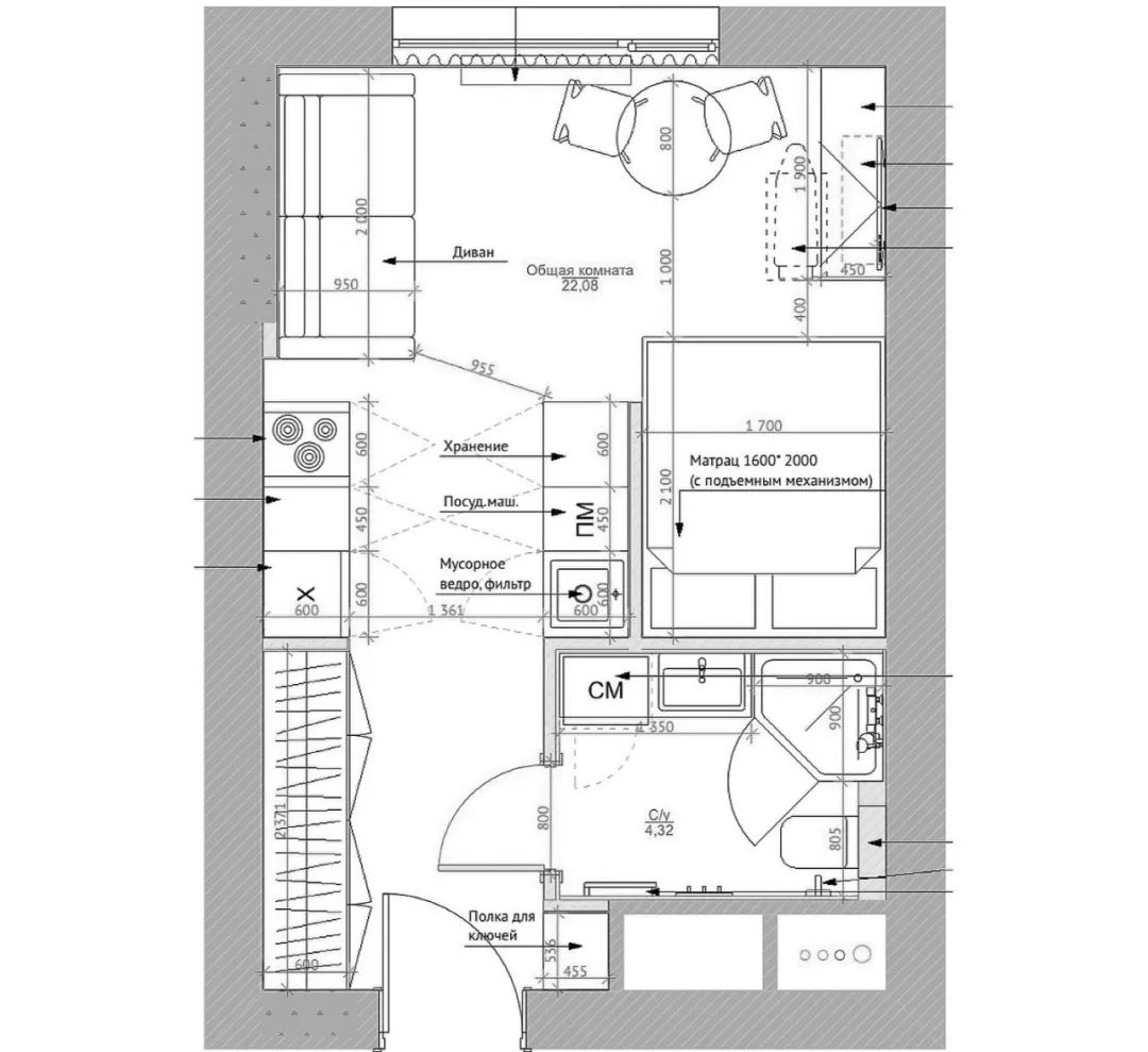
新作,一套26
㎡
公寓的设计项目,
一个生
活区
配有步入式厨房和壁龛中的一张床。
一位年轻的女生的新家,这个相当独特的环境光线和增强是业主的最初要求,创造一个真正的生活空间。
空间布局
▽
方形的空间布局,
容纳一个厨房,有一个用餐区,一个紧凑的沙发,一个完全单独的睡觉区,一个走廊和一个浴室。在小空间内,最大化利用空间布局,实现多重功能。
厨房是开放式一体设计,
卧室被安置在厨房后面的一个壁龛里
,空间虽小但功能也是非常齐全的。整面墙上下装了两排柜子,储物空间非常充足。
设计师巧妙地将洗衣机放置在卫生间里,洗漱台用了挂墙式柜子。
客服
消息
收藏
下载
最近













