查看完整案例


收藏

下载
MEFine 觅范首发|设谷新作:穿透时光阀门·光屿
01SPATIAL NARRATIVE
空间叙事
设谷设计深刻注重品牌自身内涵,通过简约而优雅的建构语言,不仅创造了一个独特的空间,更与现代人追求的精神需求相契合。穿越时光阀门,仿佛进入了一个灵感的殿堂,这里不仅仅是一个场所,更是一段情感的旅程,是对内心深处的直面,通过美学的视角推导着空间的精致叙事。
Shigu design deeply pays attention to the connotation of the brand itself, through simple and elegant construction language, not only creates a unique space, but also fits in with the spiritual needs of modern people. Through the valve of time, as if entering a palace of inspiration, here is not only a place, but also an emotional journey, is the face of the heart, through the aesthetic perspective to deduce the exquisite narrative of space.
自然与光感被巧妙结合,植物与空间相互交融,这份和谐不仅提升了整体的透气性,也给予人一种归属感,在外壳包裹下的空间内仍然能够感受到与自然的情感共通,让整个前厅成为一个充满活力、自然氛围的空间,为“穿越时光”的光屿旅程奠定了美妙而独特的开端。
Nature and light are cleverly combined, and plants and space blend with each other. This harmony not only enhances the overall breathability, but also gives people a sense of belonging. In the space wrapped by the shell, people can still feel the emotional connection with nature, making the whole front hall a space full of vitality and natural atmosphere. A wonderful and unique start to the journey "through time" to Kwangyu.
通过巧妙的分流规划,会所和办公区间得以互不相扰。这不仅打破了传统空间中尴尬的交流氛围,更贴合了当下人与人之间的交流屏障,为空间增添了独特的社交氛围,充分发挥了其实际作用属性。这样的设计不仅仅是一种空间的划分,更是对人们在不同场景下需求的细致体贴。分流设计的背后是对人性和社交需求的深刻理解,让空间成为了更具有包容性和适应性的场所。
Through clever diversion planning, the club and the office area can not disturb each other. This not only breaks the awkward communication atmosphere in the traditional space, but also fits the communication barrier between people at present, adding a unique social atmosphere to the space and giving full play to its practical properties. Such a design is not only a division of space, but also a careful consideration of people’s needs in different scenes. Behind the diversion design is a deep understanding of human and social needs, making the space a more inclusive and adaptable place.
会客厅成为一个光影艺术的舞台,墙面、窗和天光通过分割的形式,营造出变化丰富的空间光影。而鲜明撞色的亚克力装置则在其中独具特色,为整体空间增添了一抹生动的色彩。
The living room becomes a stage of light and shadow art. Walls, Windows and sky light create a variety of light and shadow in space through the form of segmentation. The contrasting acrylic installation is unique in it, adding a touch of vivid color to the overall space.
光影建构与艺术家具相互交融,呈现出包容又多元的生活场景。空间更富有层次感的同时也创造了一种独特的氛围。在这里,不同年龄段、不同审美取向的人们都能够在空间中建立起深刻而和谐的关系,实现交融与共情的美妙状态。
Light and shadow construction and art furniture blend with each other, presenting an inclusive and diversified life scene. The space is layered and creates a unique atmosphere. Here, people of different ages and aesthetic orientations can establish a profound and harmonious relationship in the space, and achieve a wonderful state of integration and empathy.
02NATURAL VITALITY
自然生机
植物与空间相辅相成,木色家具柔和颗粒感的墙面和地面共同构成了一处静谧的灵动休闲区域。植物在这里不仅仅是装点,更是与空间相融合,为环境注入了自然的生机。木质家具的柔和颜色和质感与墙面、地面相得益彰,形成了一种和谐的氛围。
The plants complement the space, while the soft grainy walls and floors of the wood furniture create a tranquil and playful recreation area. Plants are not only decorative here, but also integrate with the space and inject natural vitality into the environment. The soft colors and textures of the wooden furniture complement the walls and floors, creating a harmonious atmosphere.
宣纸的运用为空间增添了独特的质感,与植物的清新相呼应,共同打造出一种清雅的氛围。自然光透过窗户洒入,与柔和的灯光相辅相成,使整个休闲区域更显温馨宜人。这种设计手法让人在空间中感受到光与影的变化,为休闲区域带来了更加舒适的氛围。木质家具的温暖与颗粒感使得这里成为一个放松身心、感受自然之美的角落。
The use of rice paper adds a unique texture to the space, echoing the freshness of the plants to create a clean and elegant atmosphere. Natural light pours in through the Windows and complements the soft lighting, making the whole leisure area more warm and pleasant. This design technique allows people to feel the change of light and shadow in the space, bringing a more comfortable atmosphere to the leisure area. The warmth and graininess of the wooden furniture make it a place to relax and feel the beauty of nature.
设计师办公室通过网格装置,与外部世界建立紧密联系。采用圆形天井设计,打破了空间的限制,创造出与外界互动的通道。这种看似规则的设计实际上是对传统规则的巧妙突破,在有限的空间内延伸出无边的灵感世界。
The designer’s office is connected to the outside world through grid installations. The circular patio design breaks the limitations of space and creates a channel for interaction with the outside world. This seemingly regular design is actually a clever break from traditional rules, extending an endless world of inspiration within a limited space.
这个空间不再被定义为传统的办公场所,而更像是一个充满艺术氛围的领域,成为人们情感流动的场所。它不拘泥于过去的展厅模式,而是融合了现代极简主义和永恒优雅的元素,实现了对传统框架的颠覆。这不仅仅是在空间布局上的巧思,更是一种对生活和工作方式的革新。通过引入艺术元素,这个空间成为了创意和灵感的源泉,让人们在其中感受到自由、创新和情感的流动,为现代工作空间注入了新的活力和意义。
The space is no longer defined as a traditional office space, but more like a field full of artistic atmosphere, becoming a place for people’s emotional flow. It does not adhere to the showroom model of the past, but combines elements of modern minimalism and timeless elegance to achieve subversion of the traditional framework. This is not only a clever idea in the layout of space, but also an innovation in the way of living and working. By introducing artistic elements, the space becomes a source of creativity and inspiration, allowing people to feel the freedom, innovation and emotional flow in it, injecting new vitality and meaning into the modern workspace.
总经理办公室的每一寸空间都经过精心设计,以创造更为开阔有序的感觉。球体的精巧存在为空间注入了多样性和立体感,其弯曲的形态打破了传统的直线设计,在视觉上创造了丰富的曲线。
Every inch of the general manager’s office space has been carefully designed to create a more open and orderly feeling. The delicate existence of the sphere injects diversity and dimensionality into the space, its curved form may break the traditional straight line design, and the sphere visually creates rich curves.
另一方面,网格和几何元素的巧妙运用则为整体设计带来了现代感和科技感。网格的结构赋予空间一种有序感,而几何元素的运用则为空间增加了几分现代抽象。在色彩、灯光和壁炉的巧妙烘托下,当人们踏入这个空间的瞬间,便被温馨的氛围所包裹,营造出一种安全而隐秘的氛围。
On the other hand, the clever use of grid and geometric elements brings a modern and technological feel to the overall design. The structure of the grid gives the space a sense of order, while the use of geometric elements adds a bit of modern abstraction to the space. In the clever color, lighting and fireplace, when people step into this space, they are wrapped in a warm atmosphere, creating a safe and private atmosphere.
通过几何构建的穿插,搭配温暖柔和的灯光,成功打破了空间中僵硬的规格感,使整个环境更加流动。这种巧妙的设计不仅具有感知力,还起到引导作用,好似舞台上的戏剧效果,引领人们流连忘返,通过移步换景体验空间的变幻。
Through the interpenetration of geometric construction and the warm and soft lighting, the rigid sense of specification in the space is successfully broken, making the whole environment more fluid. This ingenious design not only has perception, but also plays a guiding role, like the dramatic effect on the stage, leading people to linger and experience the changes of space through the change of steps.
肌理感的装置进一步丰富了空间的层次。木质与石材的碰撞,为空间增添了独特的质感。这种装置不仅使空间显得厚重有趣,还通过透光性和灵动性的设计,加深了空间的延伸感。极具现代的设计手法也赋予了人们一种放松和慵懒的居住感,强化了对这个空间的归属意识。
The texture of the device further enriches the level of space. The collision of wood and stone adds a unique texture to the space. This device not only makes the space appear thick and interesting, but also deepens the sense of extension of the space through the transparent and flexible design. The modern design also gives people a relaxed and lazy sense of living, strengthening the sense of belonging to this space.
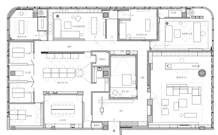
03 FLOOR PLAN 平面图
文章来自平台:MEFine 觅范
ABOUTPROJECT
Case:GOODMAN 杭州店
Produced:瀚墨视觉
Photography:叶松
Photoassistant:梁常秀
Retoucher:叶松
Hard-mounted design |硬装设计:杭州设谷设计事务所
Soft installation design |软装设计:杭州设谷设计事务所
Construction unit |施工单位:舍度装饰
Design director |设计总监:谢银秋
Master plan design |主案设计:谢银秋、陈洋洋、肖珺
Design team |设计团队:黄丽君、吾真吾、周刚、刘泽昊
Project address | 项目地址:中国杭州
摄影总监叶松
设计师 谢银秋
设谷设计事务所创始人
世界华人俱乐部艺术设计顾问
ABOUTPHOTOGRAPHY STUDIO
瀚墨-葉鬆空间摄影工作室
为瀚墨文化传播旗下品牌,提供专业室内摄影、酒店摄影,房产景观摄影、公共建筑摄影等建筑类摄影服务。目前拥有大画幅传统胶片仙娜座机,佳能、尼康广角移轴,苹果后期处理器等专业建筑摄影设备,摄影总监叶松拥有 15 年摄影从业经历,专研建筑空间摄影 8 年。
Ye Song Architectural Space Photography Studio provides professional architectural photography services for the Hanmo Culture communication brand, including indoor photography, hotel photography, real estate landscape photography, public architecture photography, and others. Currently, we possess professional architectural photography equipment such as large-format traditional film, Canon, Nikon wide-angle shift axis, and Apple post-processor. The director of Photography, Ye Song, has 15 years of photographic experience, specializing in architectural space photography for 8 years.
客服
消息
收藏
下载
最近
































