查看完整案例


收藏

下载
✦
吾索
给您创造永久的幸福
✦
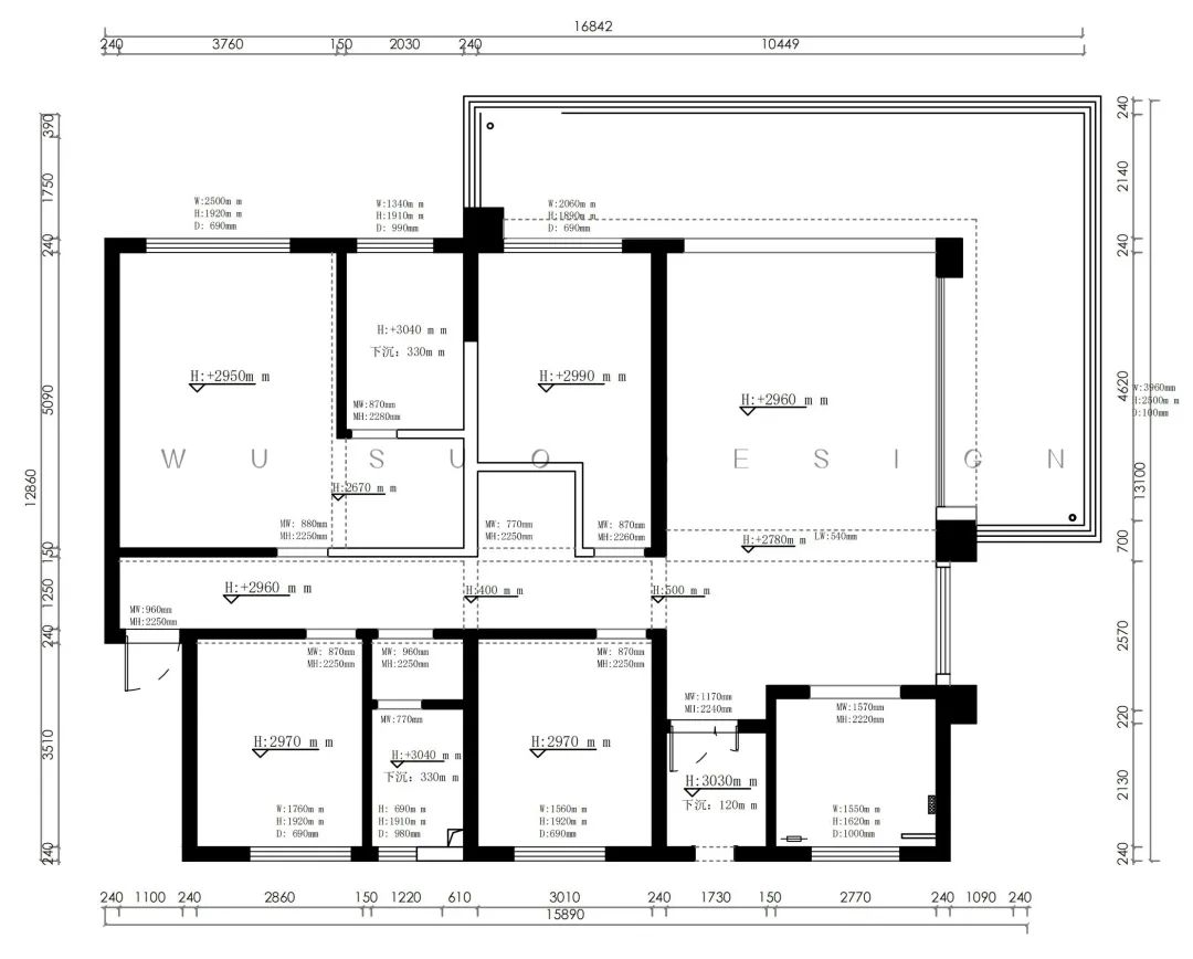
原始结构图
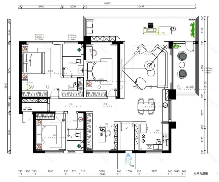
改造后平面布局
项目类型:平层
项目地址:时代滨江
项目面积:180㎡
设计机构:吾索设计
设计团队:张磊团队
设计风格:现代
本案为180㎡的平层设计,风格定义为现代。本次设计服务于一个三口之家,业主夫妇喜欢简洁明了、通透舒适的感觉,所以设计师在前期沟通时,根据业主的需求将本次的设计风格定义为现代,为这个一家三口打造舒适、简单的居家氛围。
客餐厅
客餐厅以柔和自然的浅色系基调作为空间的主色调,无主灯设计在烘托氛围的同时,也赋予了空间简约、高级、内敛且沉稳的舒适感。
原户型中的L型阳台,封掉一半纳为客餐厅空间,扩大视野的同时,也将业主闲适安逸的生活状态体现了出来,茶桌放置于休闲阳台,不仅享受窗外风景,更将完美的采光纳入室内。
厨房
现代风格装修追求自由自在和开放的生活方式,所以在厨房的装修上采用了玻璃移门,让空间动线更加流畅,采用上下统一的白色柜子在满足储物需求的同时也丰富了厨房空间的层次感。
书房
在客厅一侧设置了开放式书房,借光而坐,带来宁静阅读学习区域,靠墙的一体式开合有度的柜体收纳书籍和摆件,提供便捷取阅。
客卫
客卫扩大了洗漱区,给人提供更宽敞、舒适的空间,简单的三分离保证一家人日常使用即可。
主卧及主卫
主卧室以米色调为主,不同饱和度的米色叠加融合,简洁大气又不乏层次感,以开放且层次丰富的设计理念,体现了现代人对生活方式和生活品质的追求,整体体现出一种通透、明亮、宽敞的空间感,给人一种精致且放松的舒缓。
主卫根据空间的大小,合理的规划空间布局,将洗漱区、马桶区、淋浴区进行合理划分,确保各个功能使用起来更加便利。
儿童房
儿童房的风格与整体空间做了区分,整体以轻法式风格为主,PU线条和角花的点缀让背景墙不单调,整体偏柔和色系,在色彩搭配上以轻松、愉悦为主,低饱和度的床品加上小面积亮色的单品点缀,简约的设计给人眼前一亮。
客卧
客卧的设计主要围绕简洁明了、温暖干净的基调来设计,大面积采用留白的方式让整个空间更加通透,简单的装饰搭配也能创造出一种温馨舒适的氛围,让我们在这种环境下得到放松。
设计图纸
客服
消息
收藏
下载
最近















