查看完整案例


收藏

下载
01LIVINGROOM
客厅
墙顶地颜色一体,视觉延伸,有扩大空间的效果。绿植映衬下,营造出一片静雅。
The color of the top of the wall is one, and the visual extension has the effect of expanding the space. The green plants set off, creating a quiet elegance.
黑框玻璃让窗外的风景变成了室内的画卷。半透明纱帘,营造朦胧别致的光影氛围。
The black-framed glass makes the scenery outside the window become a picture scroll inside. The translucent gauze curtain creates a dim and chic atmosphere of light and shadow.
流畅自然的拱门,简单纯粹的电视背景墙。
Smooth and natural arch, simple and pure TV background wall.
屋主闪现,住在喜欢的房子里,过喜欢的日子。
The owner flashes, lives in the house he likes, lives the day he likes.
地台连接茶室与阳台,动线连贯流畅。
The platform connects the tea room and the balcony, and the moving line is coherent and smooth.
02 DINING ROOM/KITCHEN
负一楼 餐厅/厨房
餐岛一体设计,形成以餐岛为中心的环绕式洄游动线,进一步提升空间的贯通性与呼吸感。
The integrated design of the dining island forms a circling migration movement line centered on the dining island to further enhance the connectivity and breathing sense of the space.
拱形门洞将家政区、厨房串联,整齐统一,壁龛展示区丰富了视觉效果。
The arched door connects the housekeeping area and the kitchen in series, neatly and uniformly, and the niche display area enriches the visual effect.
餐厅看向厨房。拱形门洞旁的壁龛区与另侧呼应,形成对称之美。
The dining room looks out onto the kitchen. The niche area next to the arched doorway echoes with the other side, forming a symmetrical beauty.
L 型的厨房布局,动线合理,收纳充足。
L-shaped kitchen layout, reasonable moving line, adequate storage.
03 CHILDREN‘S ROOM 儿童房 屋型床头造型搭配榻榻米的设计,拥有被包围的安全感。
House headboard with tatami design, with a sense of security surrounded.
拾级而上,来到多功能休闲区。舒适躺椅、坐垫,构造出一方惬意天地。
Walk up the stairs to the multi-purpose leisure area. Comfortable recliner, cushion, create a pleasant world.
04MASTER BEDROOM
素净雅致
衣柜“修”平墙面,好看好收纳。
Wardrobe "repair" flat wall, good good storage.
床尾抬高 30cm 打造地台,屋主在此小憩,休闲惬意。
The end of the bed is raised 30cm to create a platform, where the owner can rest and relax.
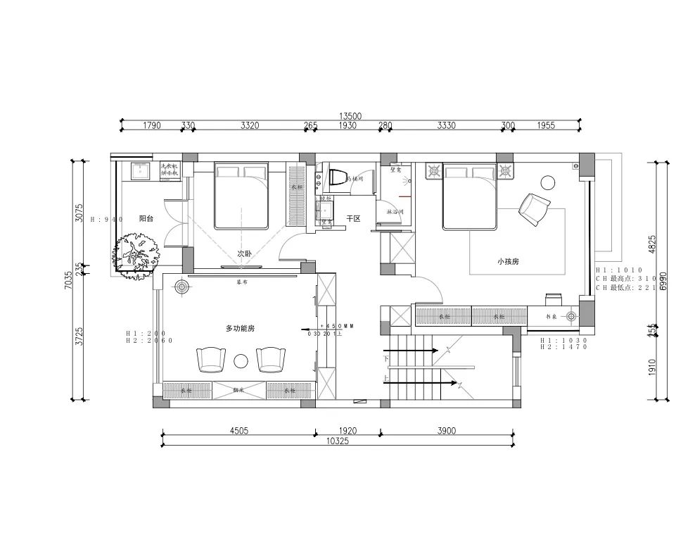
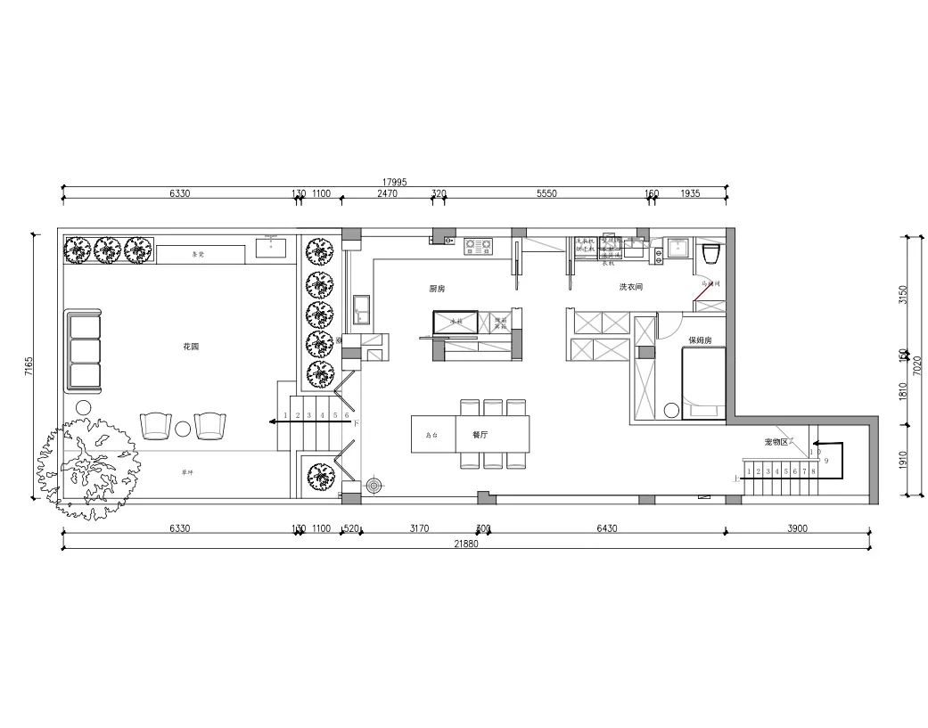
05 APARTMENT LAYOUT DESIGN 户型设计
一层平面布置图
二层平面布置图
三层平面布置图
负一层平面布置图
文章来自平台:陌上设计事务所
ABOUTPROJECT
Case:新湖果岭
Produced:瀚墨视觉
Photography:吴复鹏
Photoassistant:叶昌强
Retoucher:袁金龙
Designer |设计团队:杭州陌上设计
Project address | 项目地址:中国杭州
摄影师 吴复鹏
ABOUTPHOTOGRAPHY STUDIO
瀚墨-葉鬆空间摄影工作室
为瀚墨文化传播旗下品牌,提供专业室内摄影、酒店摄影,房产景观摄影、公共建筑摄影等建筑类摄影服务。目前拥有大画幅传统胶片仙娜座机,佳能、尼康广角移轴,苹果后期处理器等专业建筑摄影设备,摄影总监叶松拥有 15 年摄影从业经历,专研建筑空间摄影 8 年。
Ye Song Architectural Space Photography Studio provides professional architectural photography services for the Hanmo Culture communication brand, including indoor photography, hotel photography, real estate landscape photography, public architecture photography, etc. Currently, we have professional architectural photography equipment such as large-format traditional film, Canon, Nikon wide-angle shift axis, and Apple post-processor. The director of Photography, Ye Song, has 15 years of photographic experience and has specialized in architectural space photography for 8 years.
客服
消息
收藏
下载
最近





































